← London Borough of Ealing

Status

Awaiting Legal Agreement Change of use
Received
25 Nov 2025
New homes
2

Summary

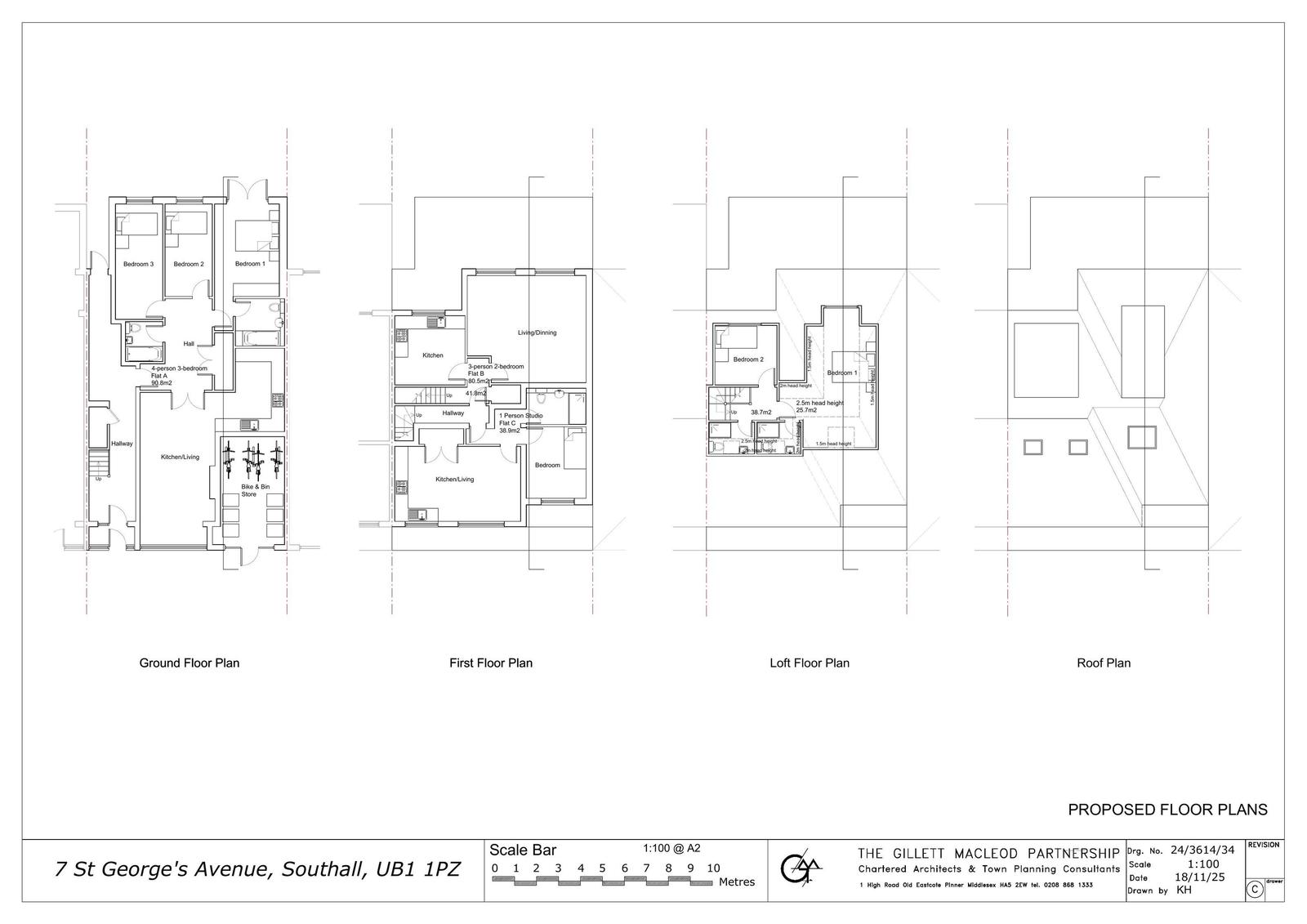
Convert dwellinghouse into 3 flats with extensions, dormers, rooflights and bin/bike store conversion.

Full proposal

Conversion of a dwellinghouse into 3 self-contained flats; conversion of garage into a cycle store involving the insertion of a new door with sidelight windows; single storey side/ rear extension; installation of two dormer rear roof windows; installation of three rooflights to front roofslope

Documents

254460FUL SM.PDF
Site Notice
Not yet archived · Original link
APPLICATIONFORMREDACTED
Application Form - Without Personal Data
Not yet archived · Original link
DESIGN AND ACCESS STATEMENT
Drawing
Not yet archived · Original link
DRAFT DECISION NOTICE
Decision
Not yet archived · Original link
EXISTING ELEVATIONS
Drawing
Not yet archived · Original link
EXISTING FLOOR PLANS
Drawing
Not yet archived · Original link
Drawing
Archived · Original link
LOCATIONPLAN
Drawing
Not yet archived · Original link
NEIGHBOUR SITE NOTICE
Site Notice
Not yet archived · Original link
NEIGHBOUR SITE NOTICE
Site Notice
Not yet archived · Original link
NEIGHBOUR SITE NOTICE
Site Notice
Not yet archived · Original link
OFFICERS REPORT
Officer Report
Not yet archived · Original link
PROPOSED ELEVATIONS
Drawing
Not yet archived · Original link
Drawing
Archived · Original link
PROPOSED SECTION
Drawing
Not yet archived · Original link
Drawing
Archived · Original link
REVISED FLOOR PLANS
Drawing
Not yet archived · Original link
Drawing
Archived · Original link

Have your say

Your comment matters. Councils must consider every representation that raises material planning considerations.

Write a comment