← London Borough of Ealing

Status

Pending Consideration Change of use
Received
10 Dec 2025
New homes
1

Full proposal

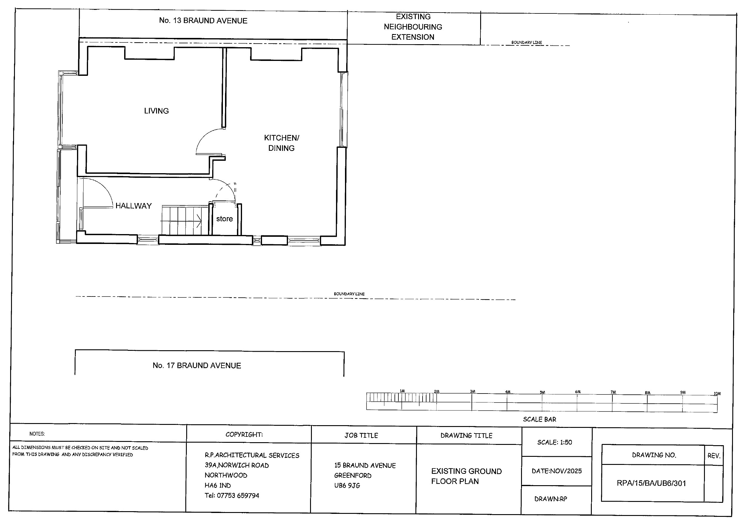
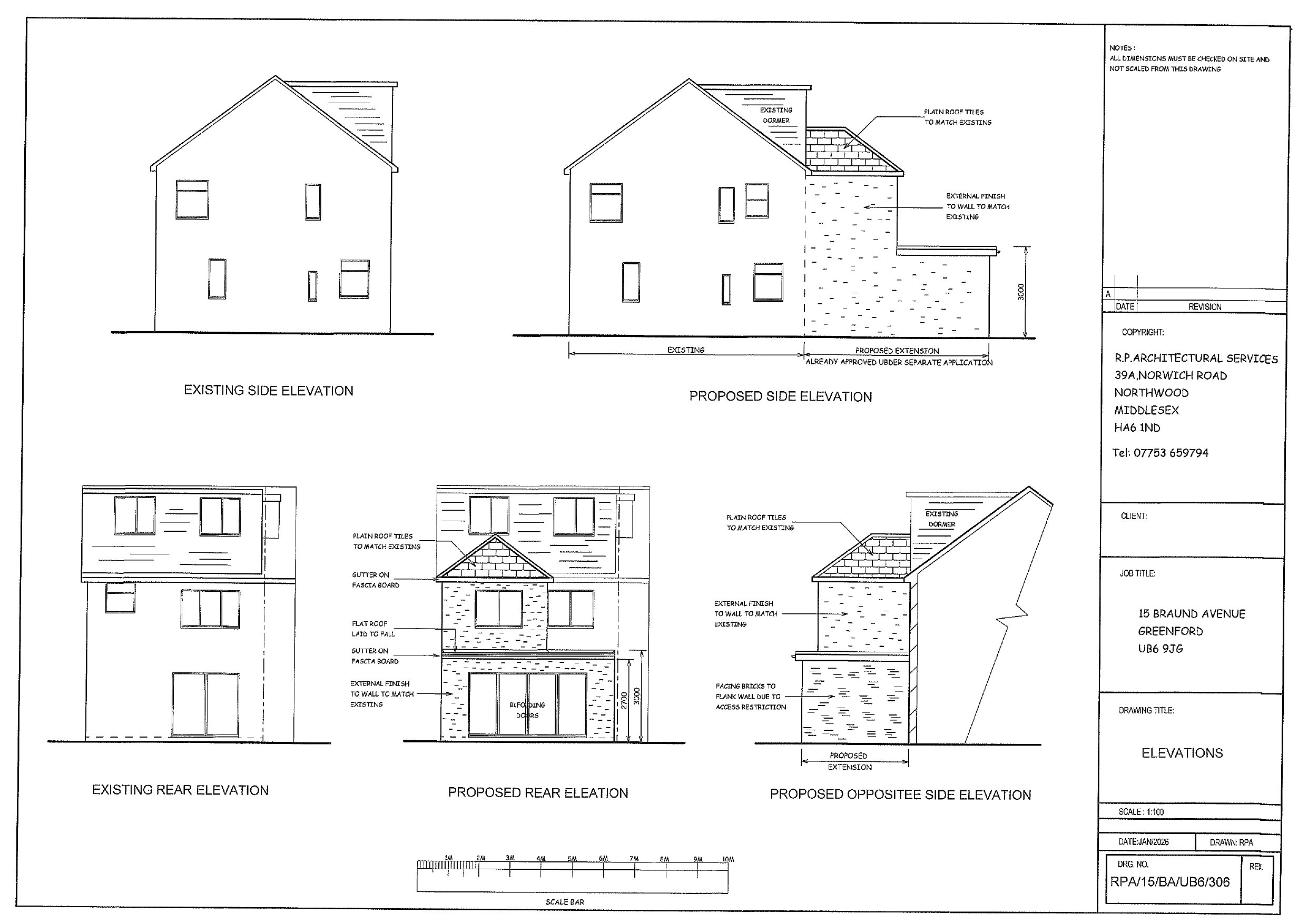
Conversion of existing residential dwelling to provide 1x3 bedroom and 1x4 bedroom self contained flats; Single storey rear and first floor rear extension

Documents

Application Form - Redacted
Archived · Original link
Drawing
Archived · Original link
Site Notice
Archived · Original link
Site Notice
Archived · Original link
Drawing
Archived · Original link

Have your say

Your comment matters. Councils must consider every representation that raises material planning considerations.

Write a comment