← London Borough of Ealing

Status

Pending Consideration Other
Received
07 Jan 2026
New homes
2

Full proposal

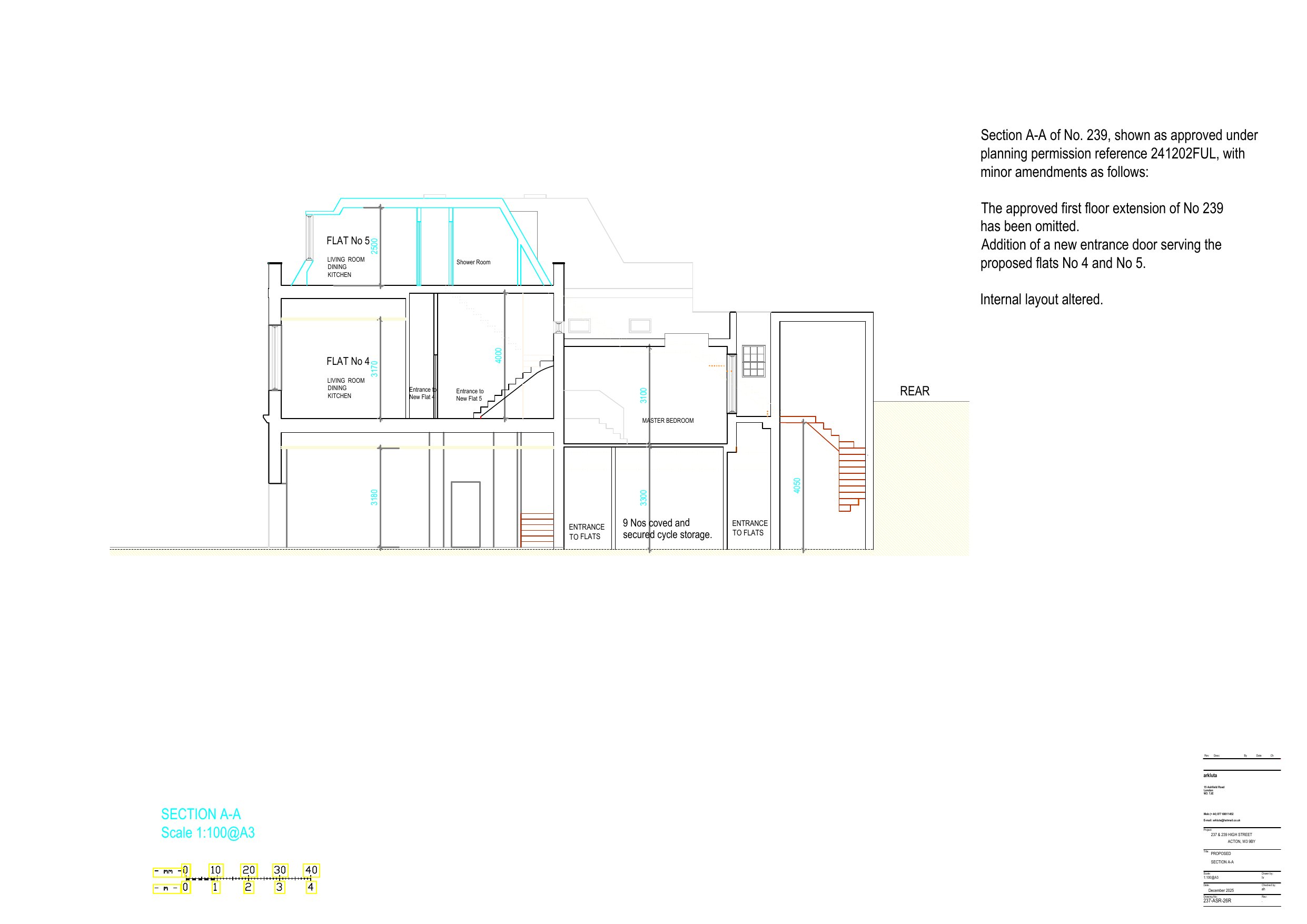
Part two-storey rear/side extension at No 239 High Street; construction of mansard roof extension at Nos 237 and 239 High Street to accommodate two self-contained residential flat (Use Class C3) and office space (Use Class E(g)(i)); alterations to fenestration on side and rear elevations, including installation of two additional windows on side elevation; provision of cycle and refuse storage (revised)

Documents

Supporting Documentation
Archived · Original link
Supporting Documentation
Archived · Original link
Draw - Exist Elevation (Front)
Archived · Original link
Draw - Exist Elevation (Rear)
Archived · Original link
Supporting Documentation
Archived · Original link
Application Form - Without Personal Data
Archived · Original link
Site Notice
Archived · Original link
Daylight Assessment
Archived · Original link
Design and Access Statement
Archived · Original link
Heritage Statement
Archived · Original link
Site Notice
Archived · Original link
Draw - Location Plan
Archived · Original link

Have your say

Your comment matters. Councils must consider every representation that raises material planning considerations.

Write a comment