← London Borough of Ealing

Status

Pending Consideration Change of use
Received
07 Jan 2026
New homes
0

Full proposal

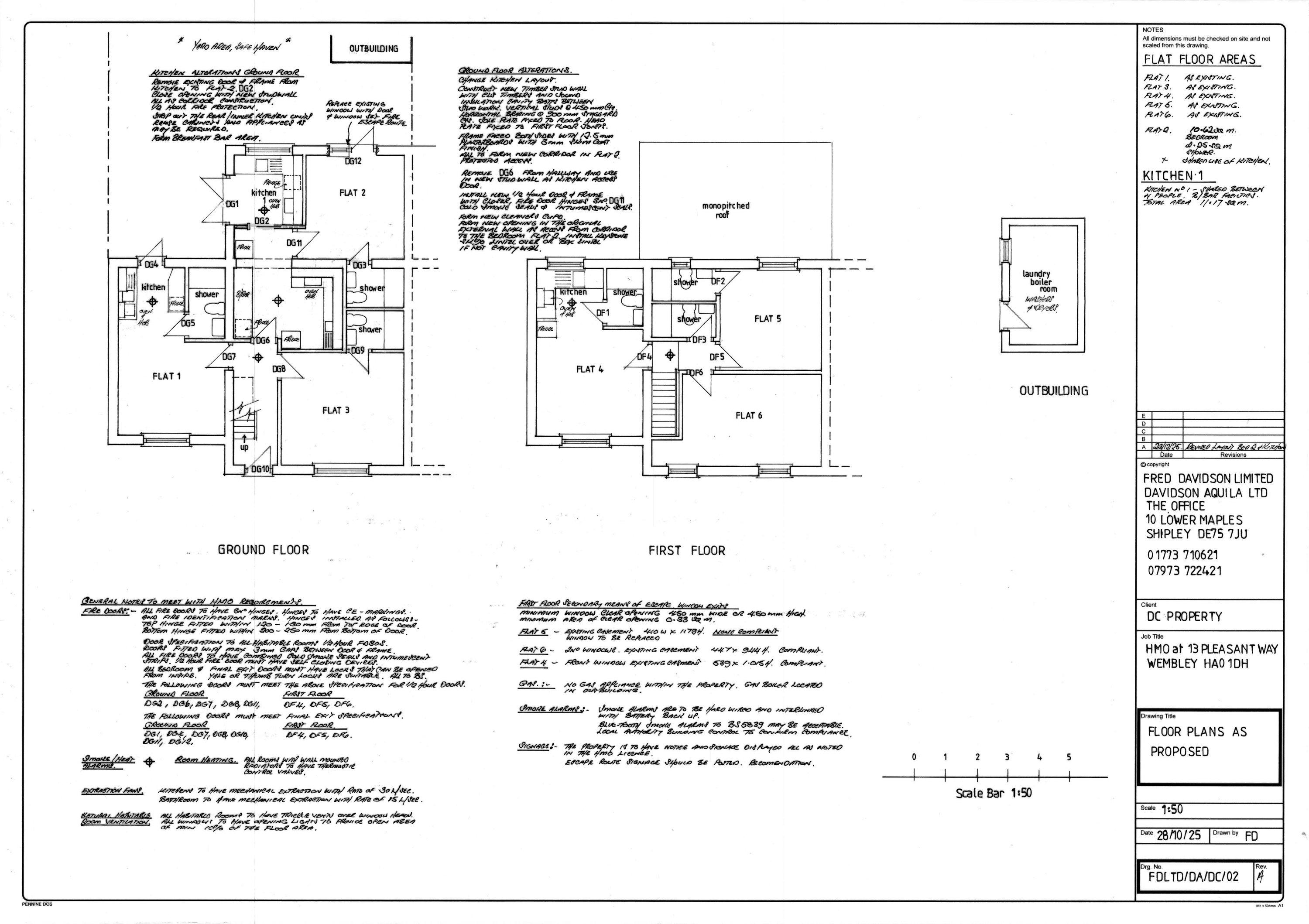
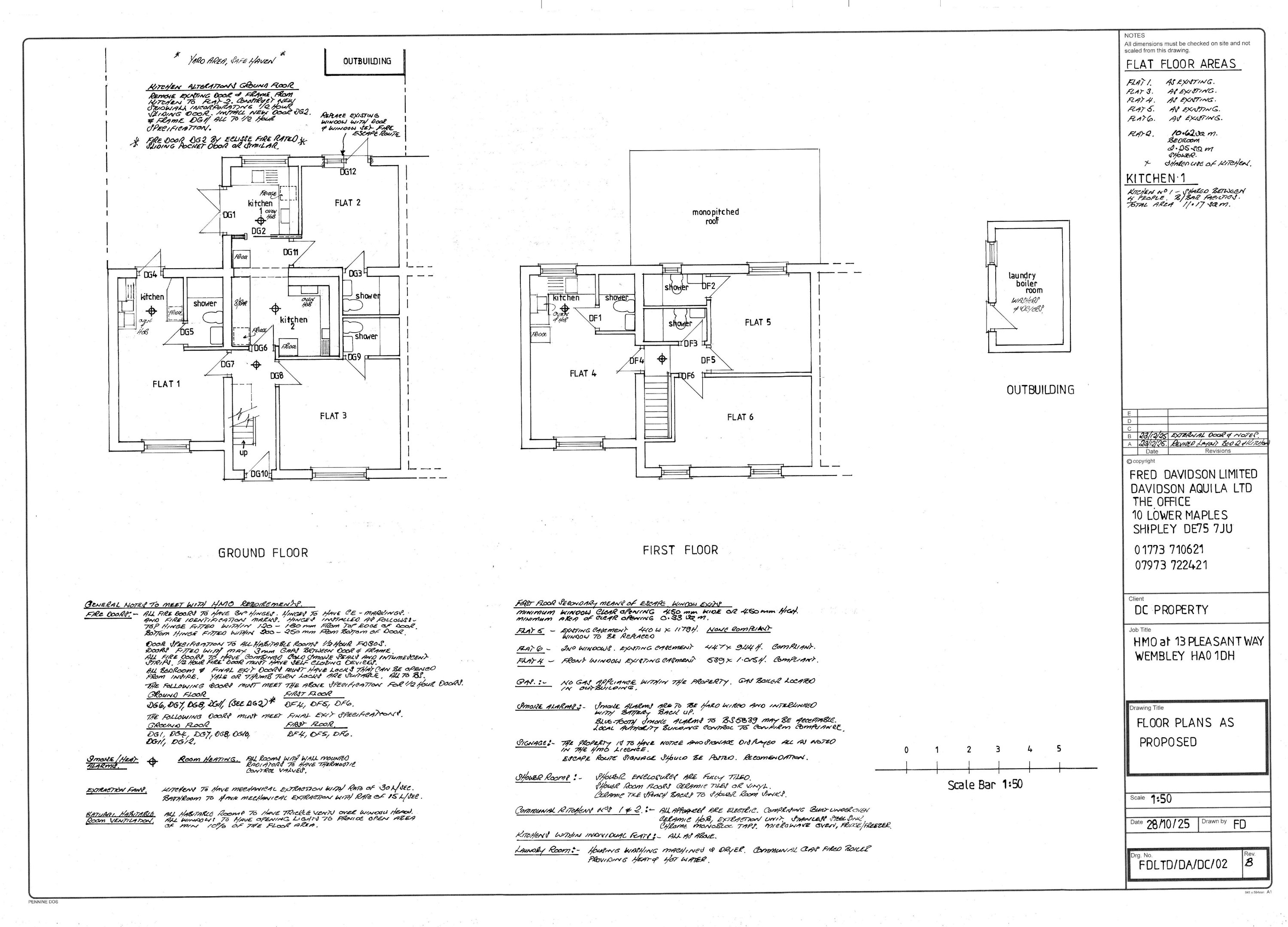
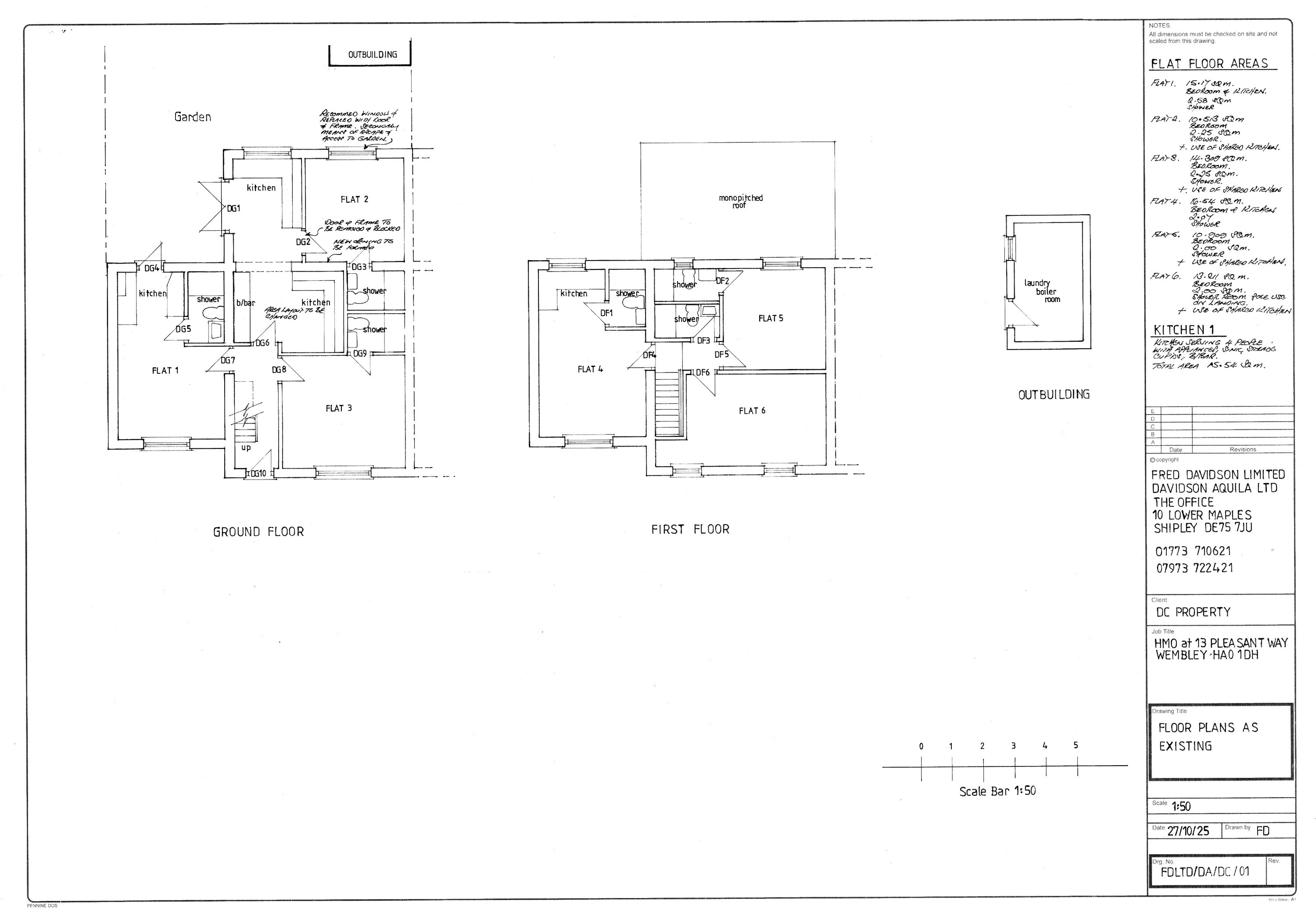
Change of use of single family dwellinghouse (Use Class C3) to House in Multiple Occupation (Large HMO) (Use Class Sui Generis) for 6 occupants (Retrospective)

Have your say

Your comment matters. Councils must consider every representation that raises material planning considerations.

Write a comment