← London Borough of Ealing

Status

Pending Consideration House extension
Received
08 Jan 2026
New homes
0

Full proposal

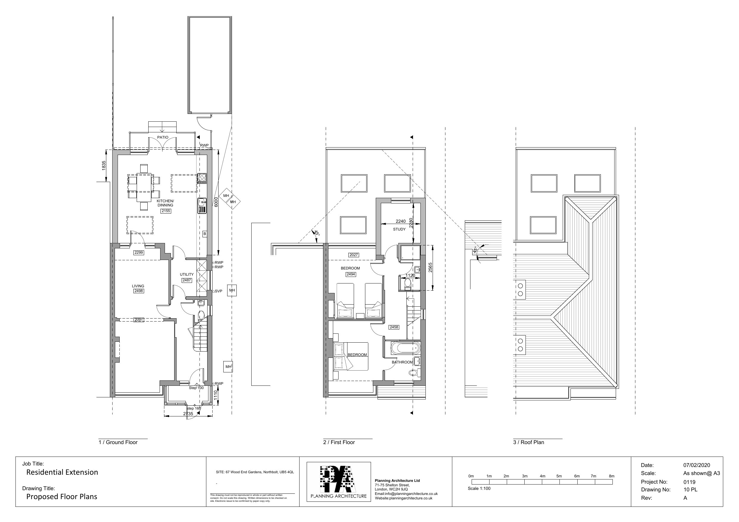
Single storey rear extension with patio (following demolition of existing extension); first floor rear extension

Have your say

Your comment matters. Councils must consider every representation that raises material planning considerations.

Write a comment