← London Borough of Ealing

Status

Pending Consideration Change of use
Received
13 Jan 2026
New homes
1

Full proposal

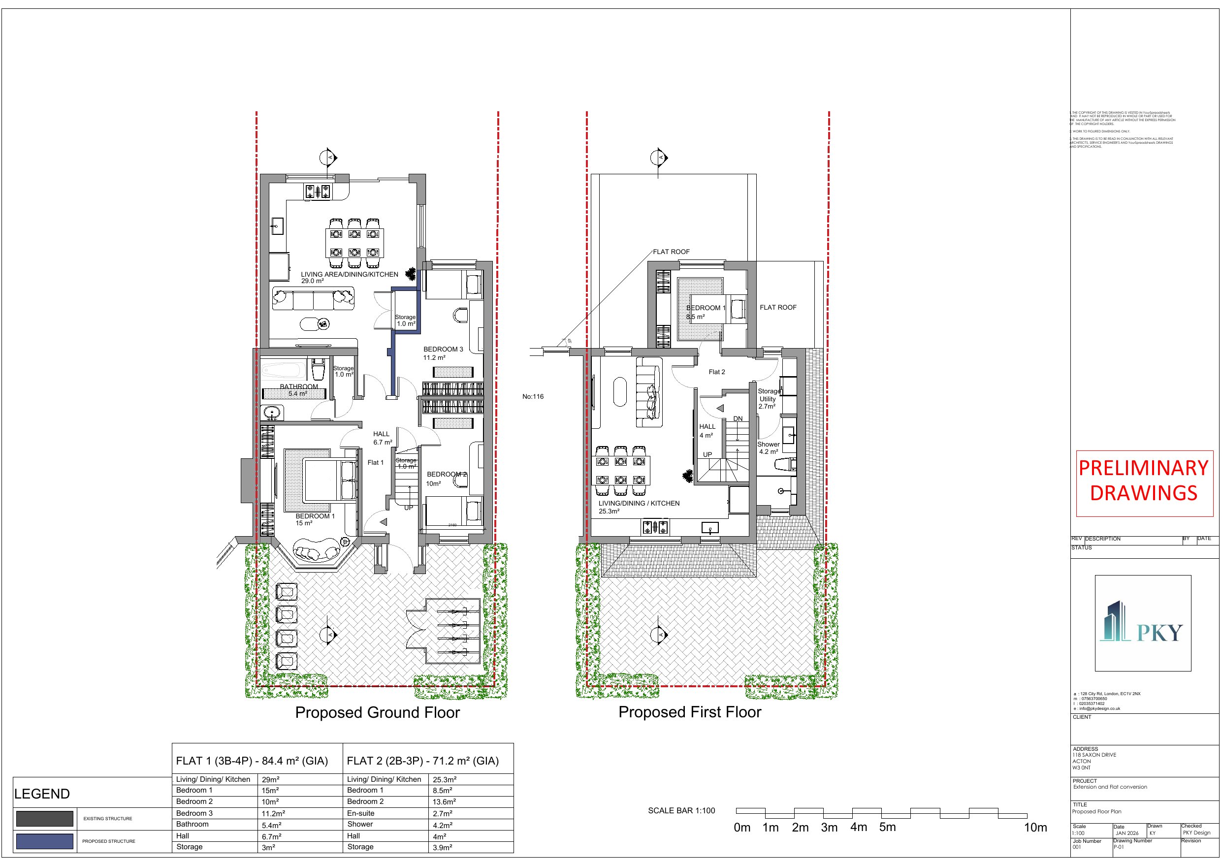
Conversion of single dwellinghouse into two self-contained dwellings; and provision of associated cycle and refuse storage

Documents

Application Form - Without Personal Data
Archived · Original link
Fire Statement
Archived · Original link
Site Notice
Archived · Original link
Design and Access Statement
Archived · Original link
Supporting Documentation
Archived · Original link

Have your say

Your comment matters. Councils must consider every representation that raises material planning considerations.

Write a comment