← London Borough of Ealing

Status

Awaiting decision House extension
Received
19 Jan 2026
New homes
0

Full proposal

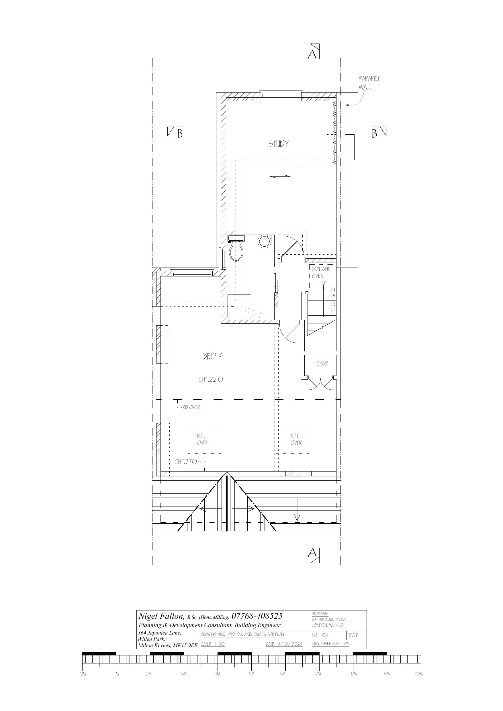
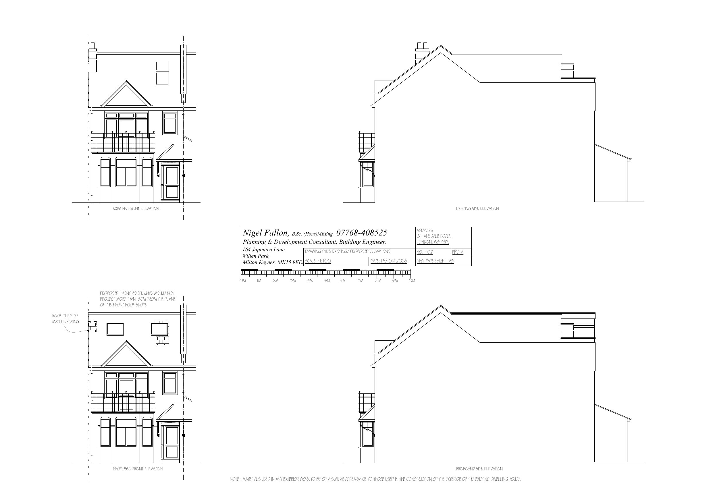
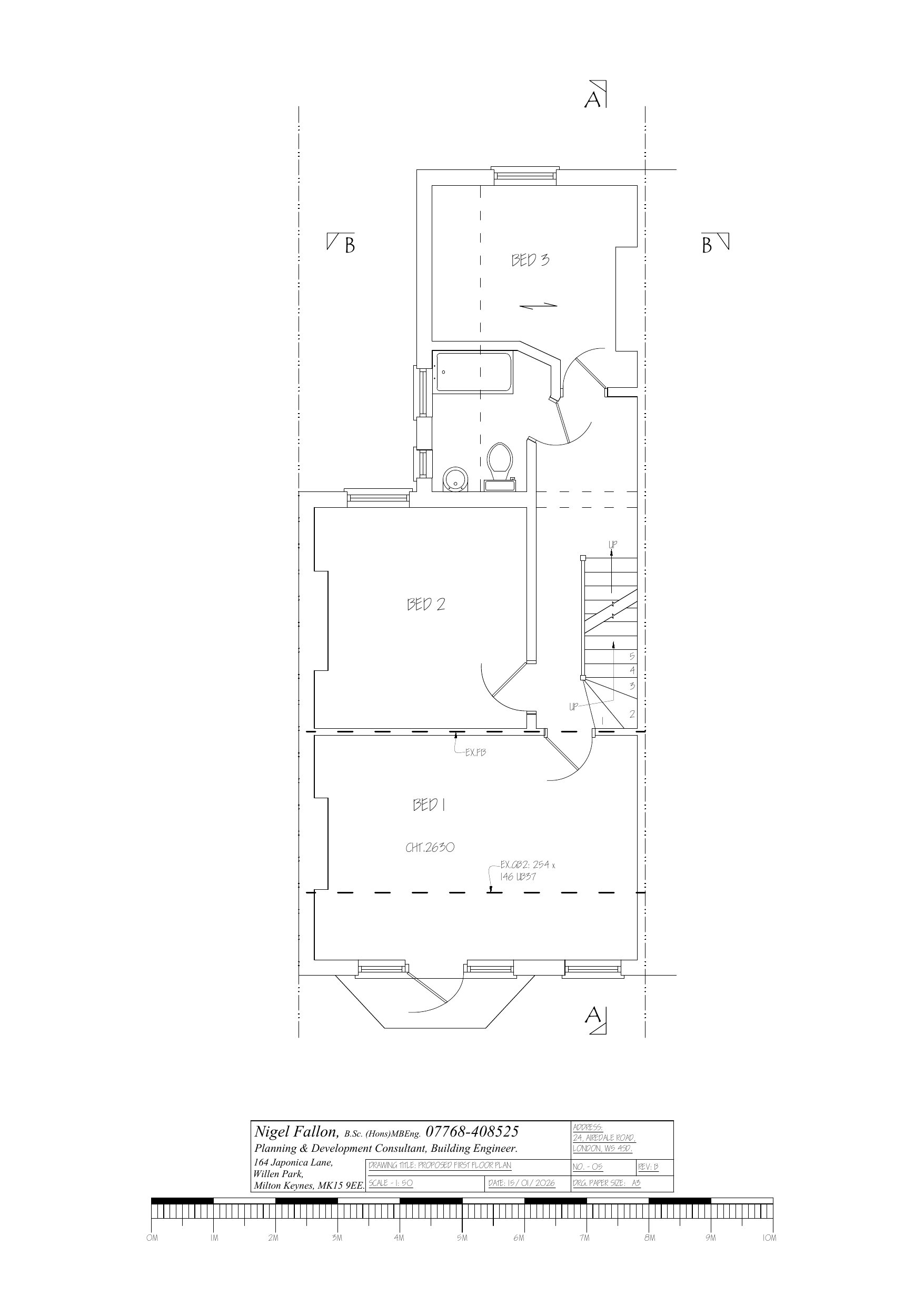
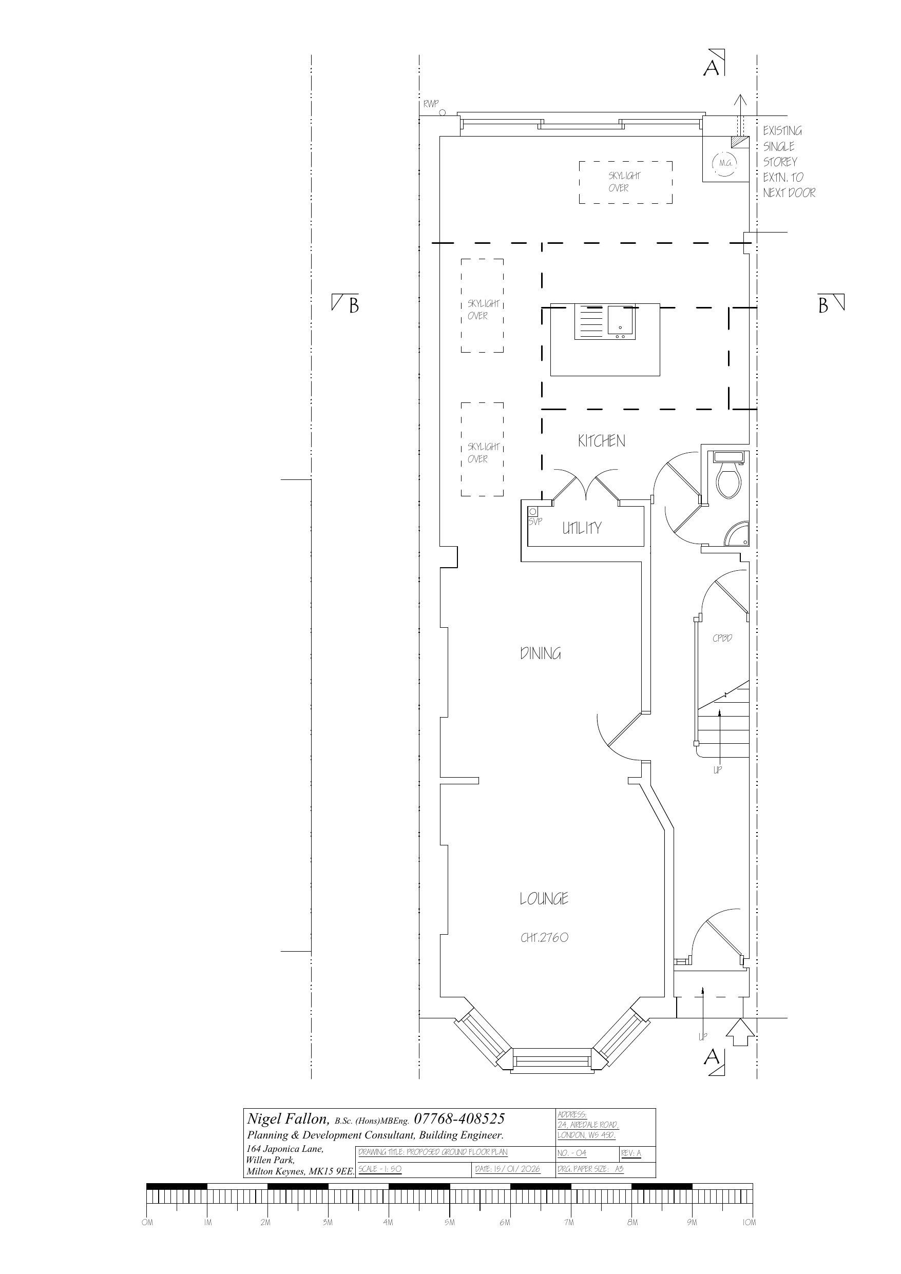
Rear roof extension; rear outrigger roof extension (following demolition of existing rear roof extension and outrigger roof extension; installation of two rooflights to front roofslope; removal of window front roofslope

Have your say

Your comment matters. Councils must consider every representation that raises material planning considerations.

Write a comment