← Back to London Borough of Ealing
Application
260186FUL
London Borough of Ealing · IDOX
Status
Pending Consideration
Received
19 days ago
New dwellings
n/a
What you can do
Take Action
Make your voice heard. Authorities need to hear from people who support new homes.
Full Proposal
Construction of a 6-storey building (mixed class use), for provision of 9 residential units; associated cycle and refuse storage (following demolition of existing two storey structure)
Detail pages
- View live detail on council site
- No archived detail page available.
Documents
13 MARCH 2025 DAYLIGHT AND SUNIGHT REPORT
Daylight Assessment
Not downloaded
· Council link
19009-GAA-XX-XX-DA-T-0001 - PART 1
Design and Access Statement
Not downloaded
· Council link
19009-GAA-XX-XX-DA-T-0001 - PART 2
Design and Access Statement
Not downloaded
· Council link
19009-GAA-ZZ-00-DR-T-0102
Draw - Exist Site/Block Plan
Not downloaded
· Council link
19009-GAA-ZZ-XX-DR-T-2104
Draw - Prop Elevation (Front)
Not downloaded
· Council link
19009-GAA-ZZ-XX-DR-T-2105
Draw - Prop Elevation (Rear)
Not downloaded
· Council link
19009-GAA-ZZ-XX-DR-T-2106
Draw - Prop Elevation (Side)
Not downloaded
· Council link
19009-GAA-ZZ-XX-DR-T-2107
Draw - Prop Elevation (Front)
Not downloaded
· Council link
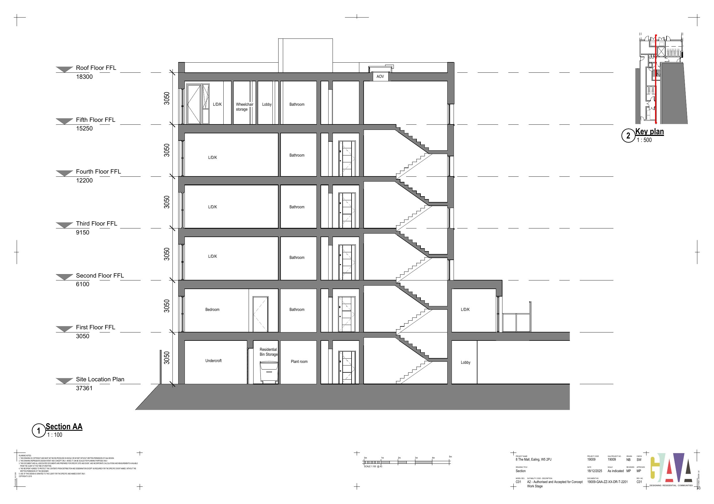
19009-GAA-ZZ-XX-DR-T-2201
Drawing
Not downloaded
· Council link
19009-GAA-ZZ-ZZ-DR-T-2001
Drawing
Not downloaded
· Council link
19009-GAA-ZZ-ZZ-DR-T-2002
Drawing
Not downloaded
· Council link
19009-GAA-ZZ-ZZ-DR-T-2003
Drawing
Not downloaded
· Council link
19009-GAA-ZZ-ZZ-DR-T-2004
Drawing
Not downloaded
· Council link
19009-GAA-ZZ-ZZ-DR-T-2101
Drawing
Not downloaded
· Council link
19009-GAA-ZZ-ZZ-DR-T-2102
Drawing
Not downloaded
· Council link
19009-GAA-ZZ-ZZ-DR-T-2103
Drawing
Not downloaded
· Council link
APPLICATIONFORMREDACTED
Application Form - Without Personal Data
Not downloaded
· Council link
AQ2020 THE MALL (8) AIR QUALITY ASSESSMENT MARCH 2025
Air Quality Assessment
Not downloaded
· Council link
CONSERVATION SITE NOTICE
Site Notice
Not downloaded
· Council link
DELIVERY AND SERVICING MANAGEMENT PLAN V2.0
Site Waste Management Plan
Not downloaded
· Council link
EXISTING_2ND_FLOOR-3806954
Drawing
Not downloaded
· Council link
EXISTING_ELEVATIONS-3806953
Draw - Exist Elevation (Front)
Not downloaded
· Council link
EXISTING_FIRST_FLOOR-3806951
Drawing
Not downloaded
· Council link
EXISTING_GROUND_FLOOR-3806952
Draw - Exist Floor Plan
Not downloaded
· Council link
EXISTING_LOFT_FLOOR-3806950
Draw - Exist Floor Plan
Not downloaded
· Council link
FSSE - D12A FIRE STATEMENT - 8 THE MALL W5 2PJ - V1.0
Design and Access Statement
Not downloaded
· Council link
LAMP POST
Site Notice
Not downloaded
· Council link
LOCATION MAP
Draw - Location Plan
Not downloaded
· Council link
NOISE_ASSESSMENT-3777723
Noise Impact Assessment
Not downloaded
· Council link
TRANSPORT STATEMENT V2.0
Transport Assessment
Not downloaded
· Council link
TRAVEL PLAN V2.0
Travel Plan
Not downloaded
· Council link