← London Borough of Ealing

Status

Pending Consideration House extension
Received
22 Jan 2026
New homes
0

Full proposal

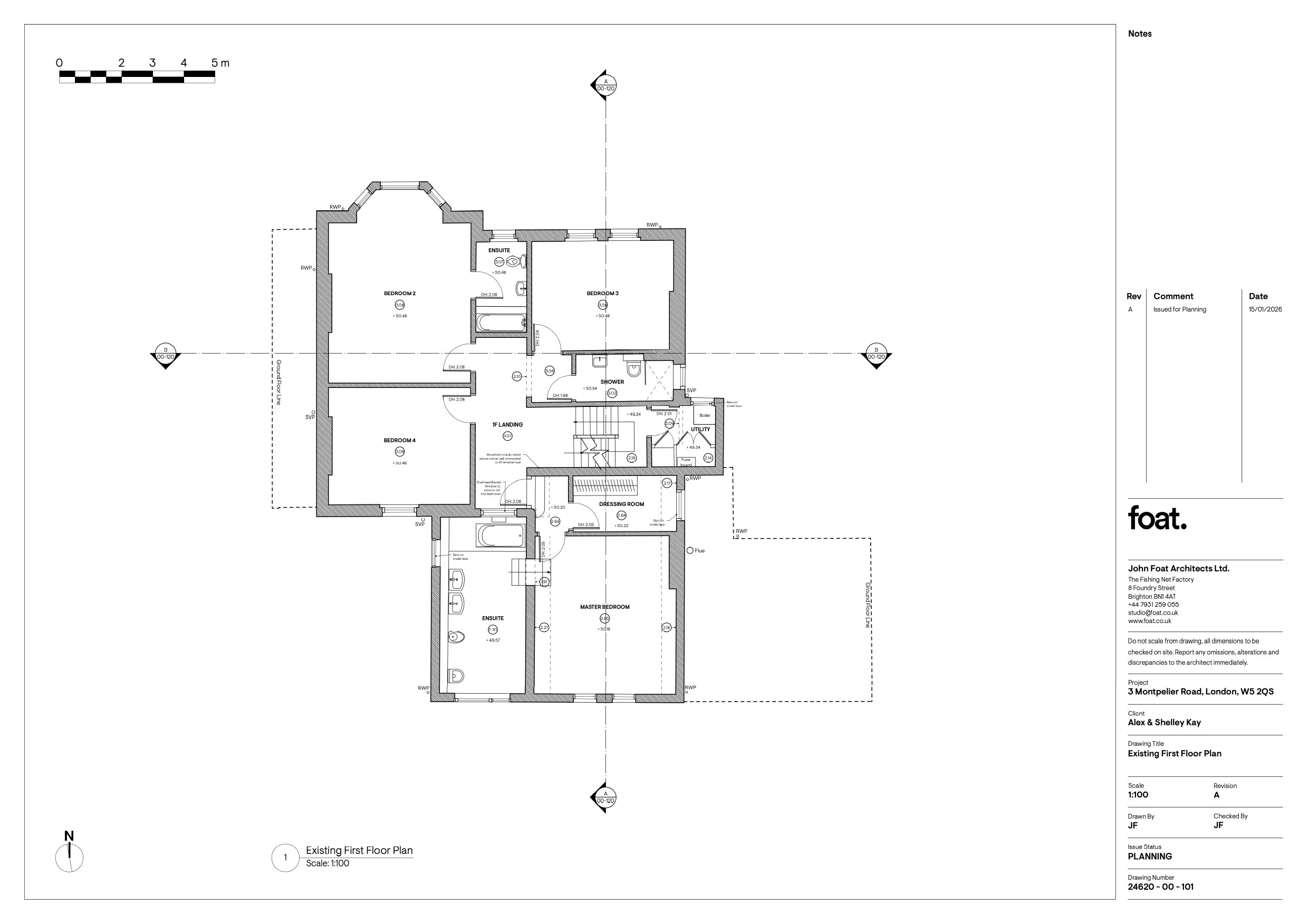
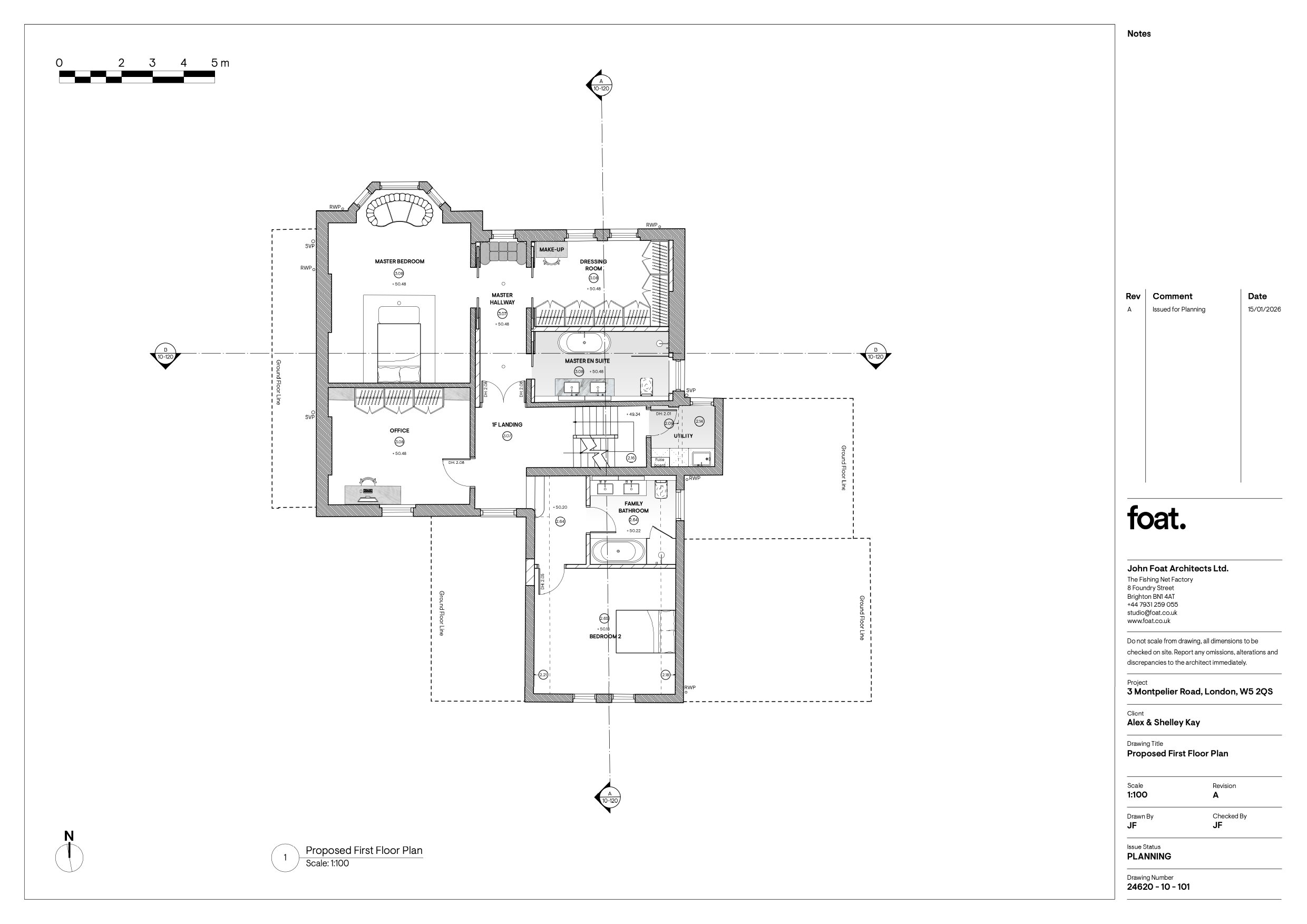
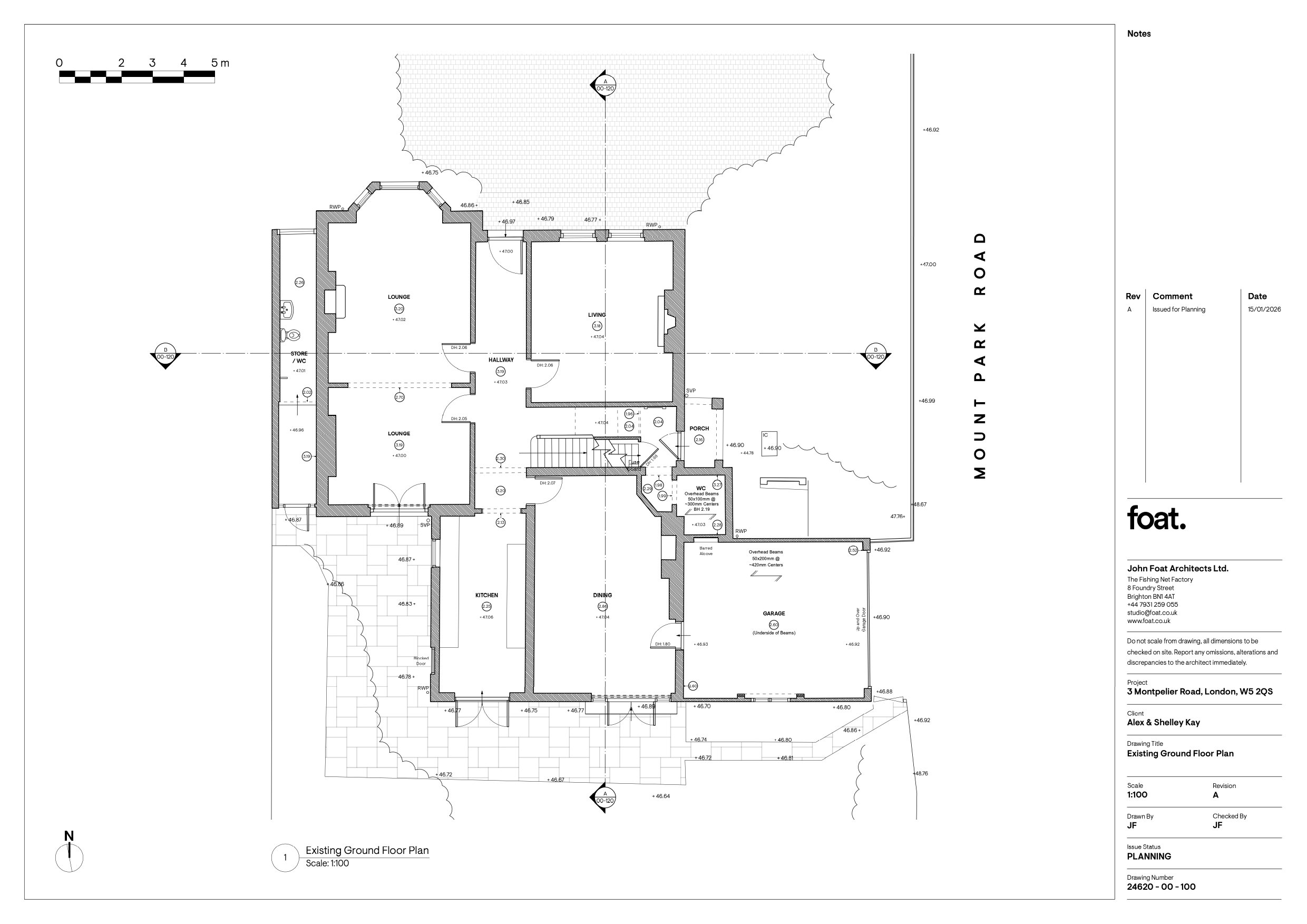
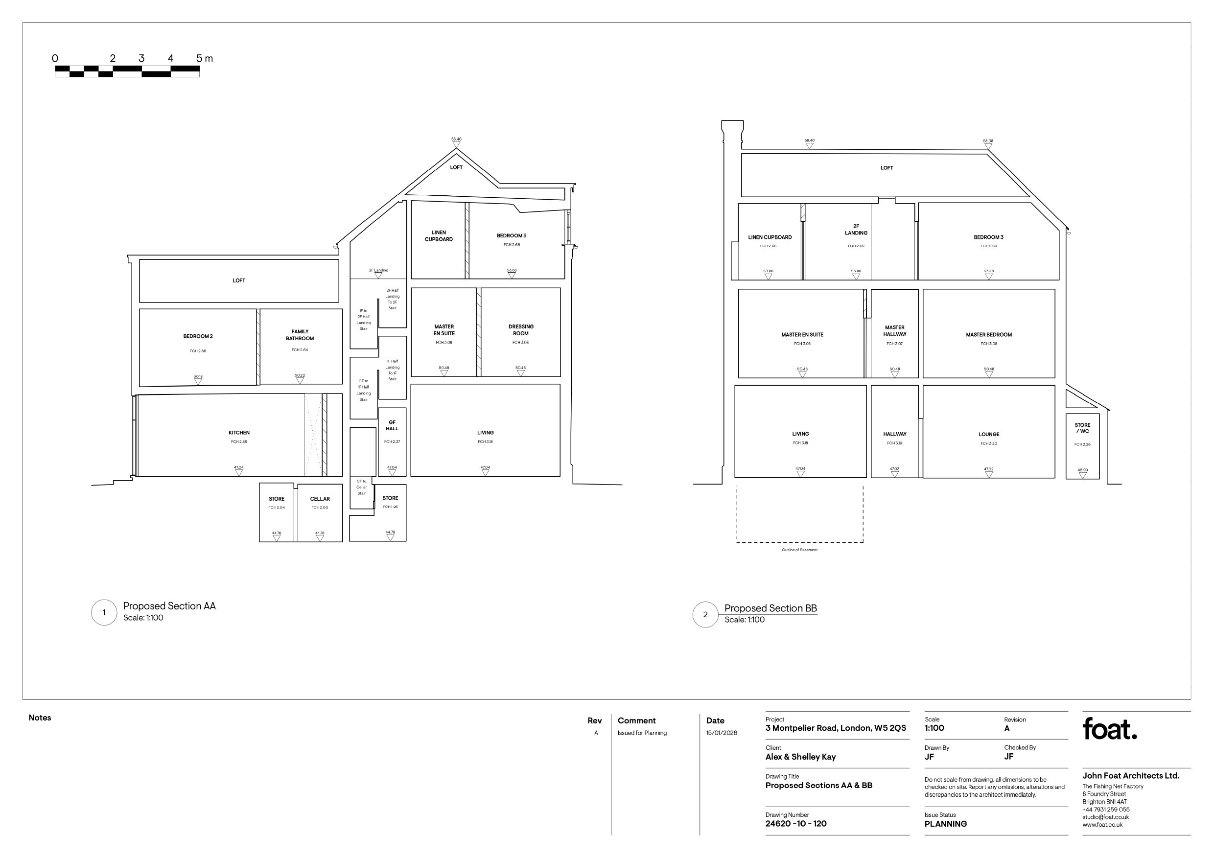
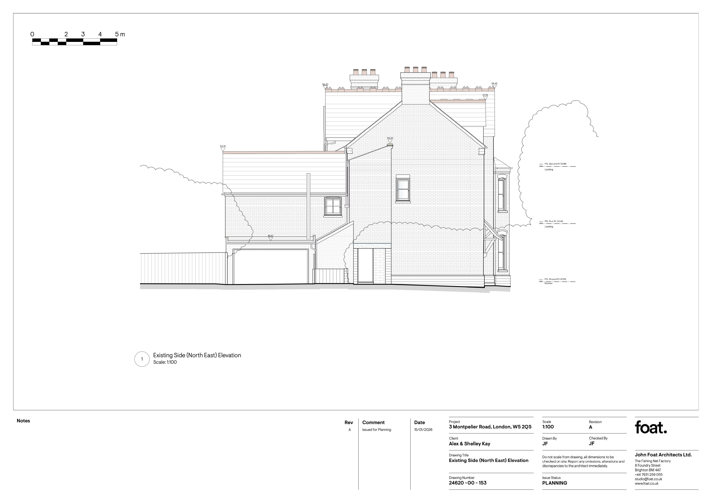
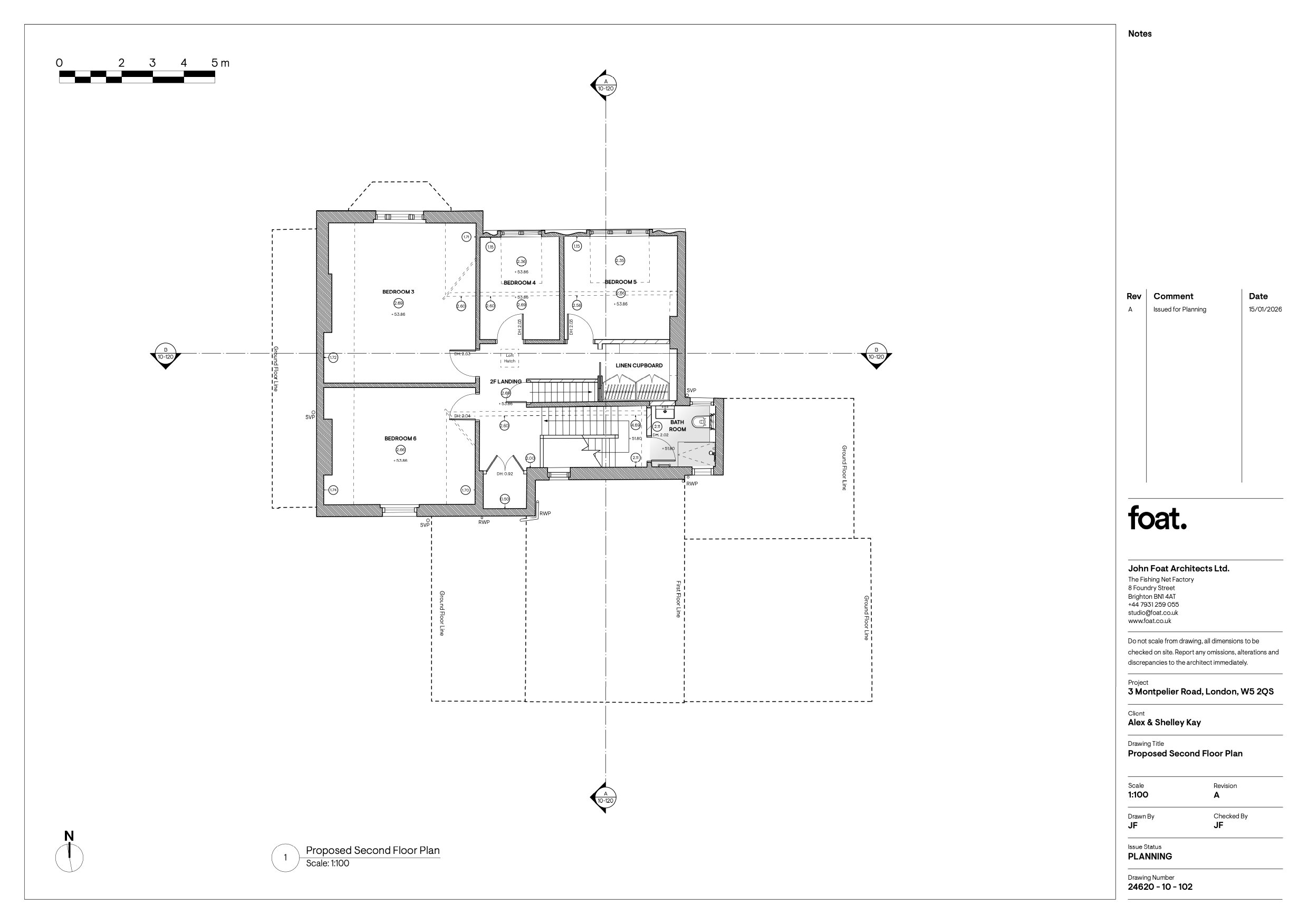
Single storey rear/side extension (following demolition of existing), with pitched roof and restoration of the rear elevation, reinstatement and addition of timber sash windows and change to fenestration

Documents

Draw - Exist Roof Plan
Archived · Original link
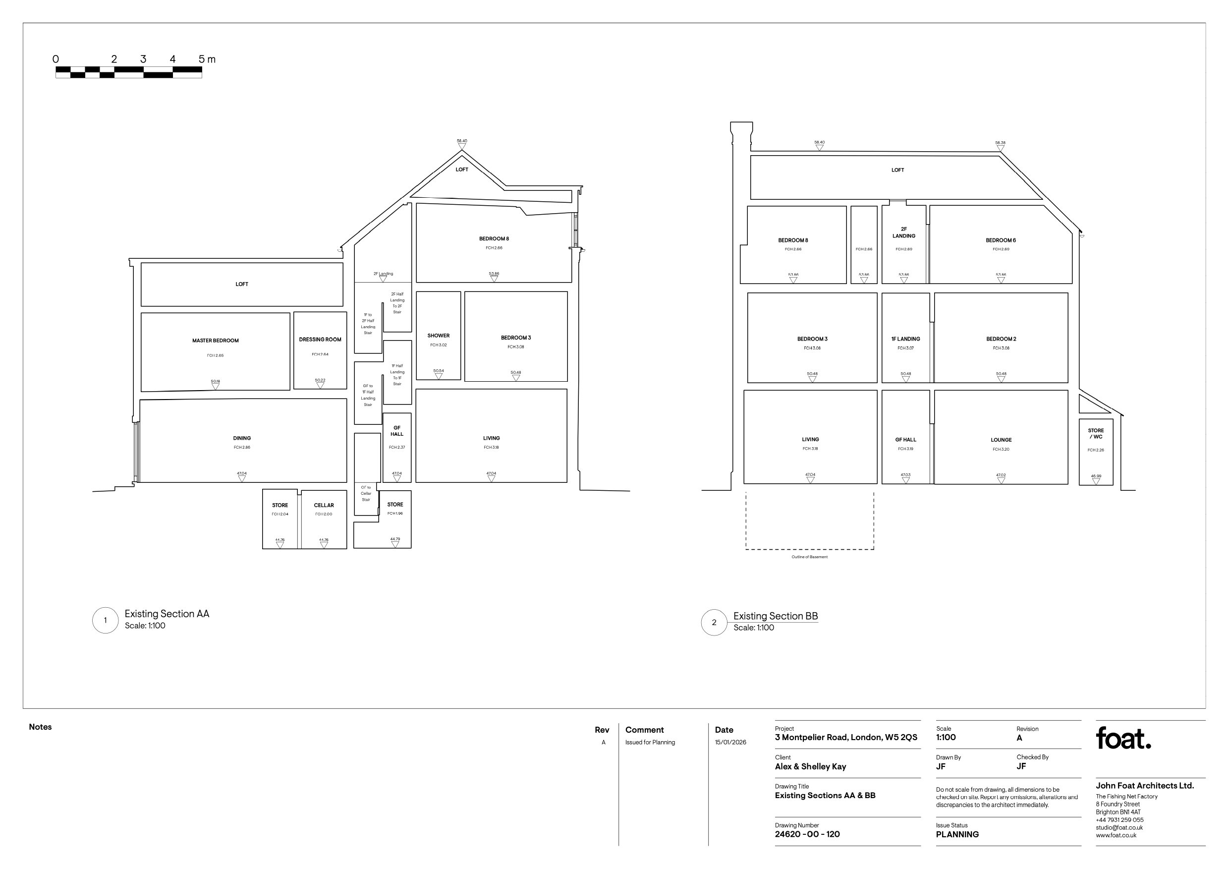
Draw - Exist Section
Archived · Original link
Draw - Exist Elevation (Front)
Archived · Original link
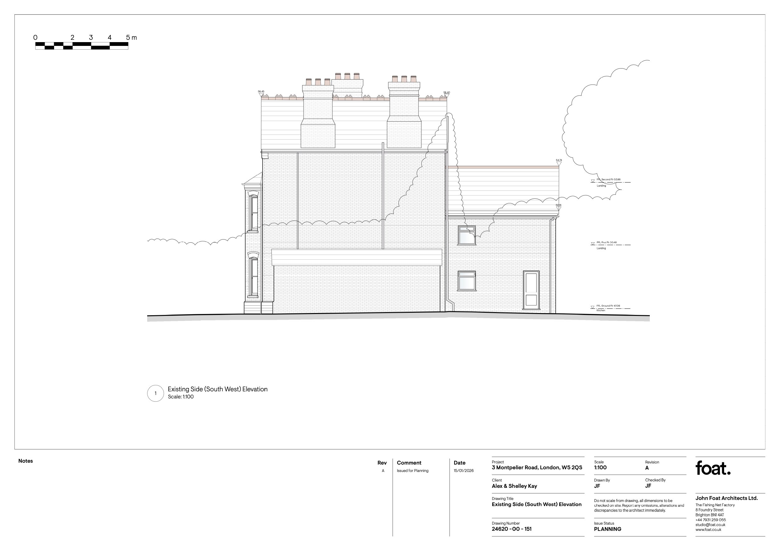
Draw - Exist Elevation (Side)
Archived · Original link
Draw - Exist Elevation (Rear)
Archived · Original link
Draw - Exist Elevation (Side)
Archived · Original link
Draw - Prop Roof Plan
Archived · Original link
Draw - Prop Section
Archived · Original link
Draw - Prop Elevation (Front)
Archived · Original link
Draw - Prop Elevation (Side)
Archived · Original link
Draw - Prop Elevation (Rear)
Archived · Original link
Draw - Prop Elevation (Side)
Archived · Original link
Application Form - Without Personal Data
Archived · Original link
Site Notice
Archived · Original link
Supporting Documentation
Archived · Original link
Design and Access Statement
Archived · Original link
Design and Access Statement
Archived · Original link
Site Notice
Archived · Original link
Draw - Location Plan
Archived · Original link
Drawing
Archived · Original link

Have your say

Your comment matters. Councils must consider every representation that raises material planning considerations.

Write a comment