← London Borough of Ealing

Status

Pending Consideration House extension
Received
23 Jan 2026
New homes
0

Full proposal

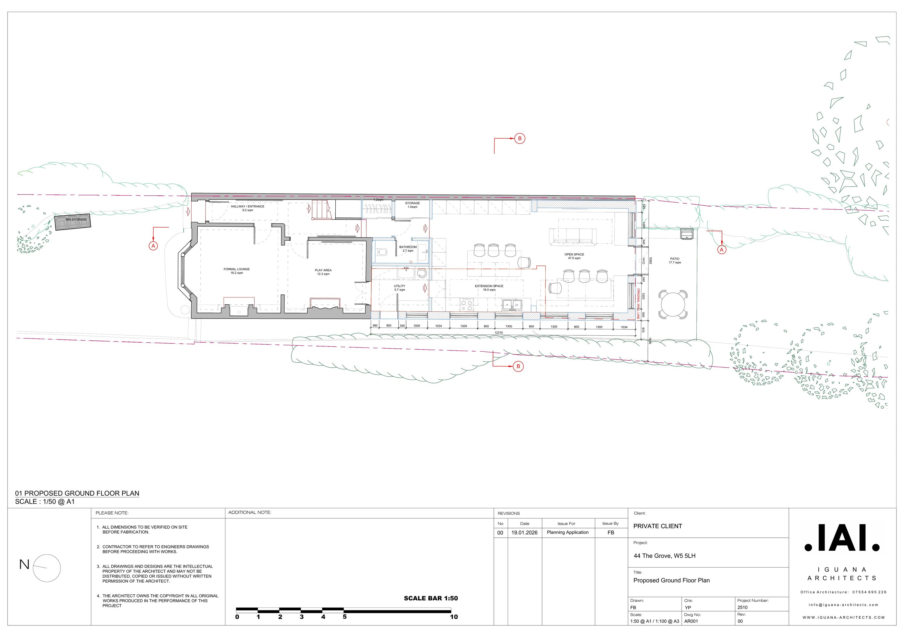
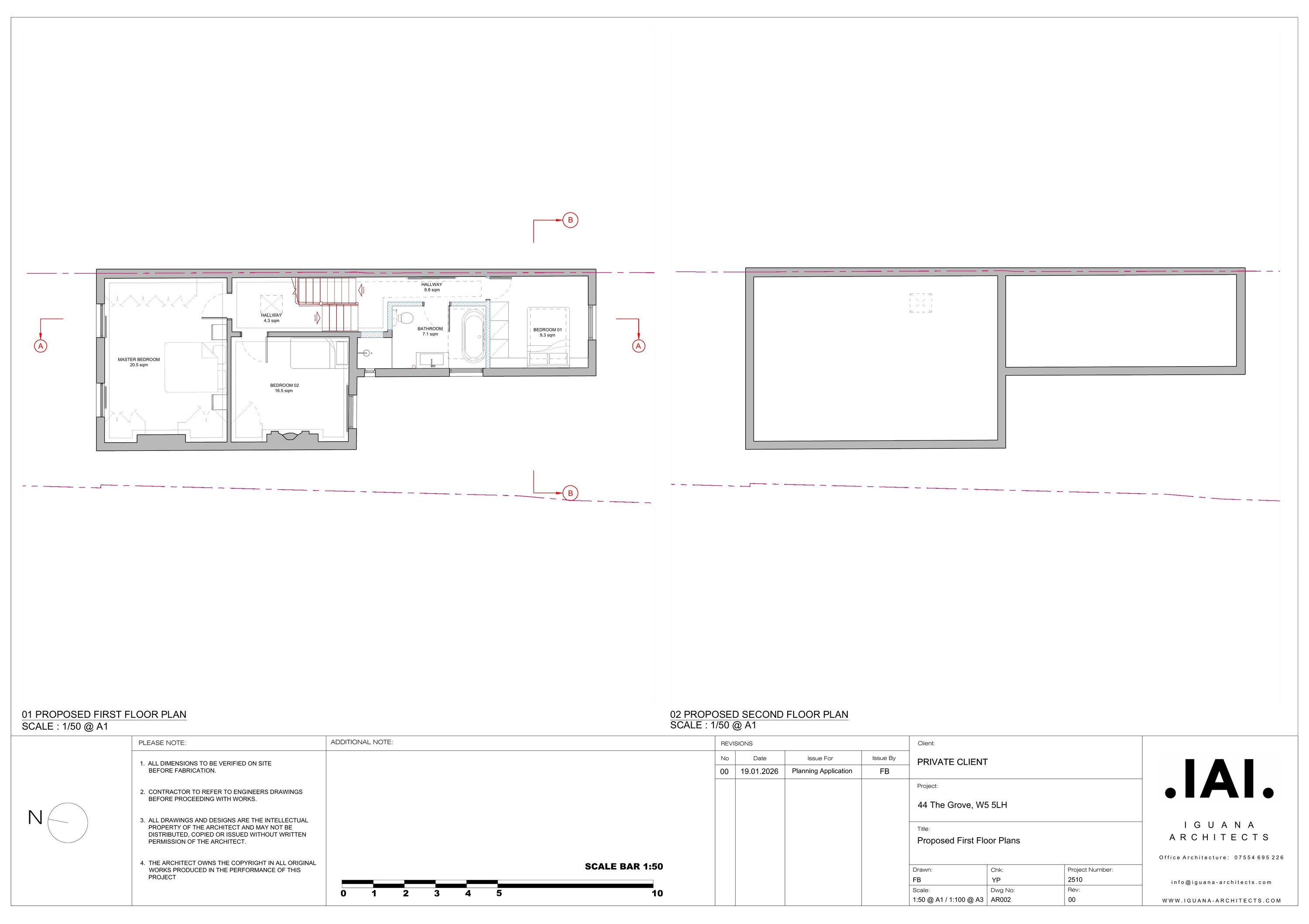
Single storey side/rear infill extension with green roof; single storey rear extension (following demolition of existing rear extension); installation of two conservation style rooflights to side roofslope; provision of bin storage; alterations to side elevation fenestration

Documents

Site Notice
Archived · Original link
Heritage Statement
Archived · Original link
Flood Risk Assessment
Archived · Original link
Application Form - Without Personal Data
Archived · Original link
Supporting Documentation
Archived · Original link
Supporting Documentation
Archived · Original link
Draw - Prop Roof Plan
Archived · Original link
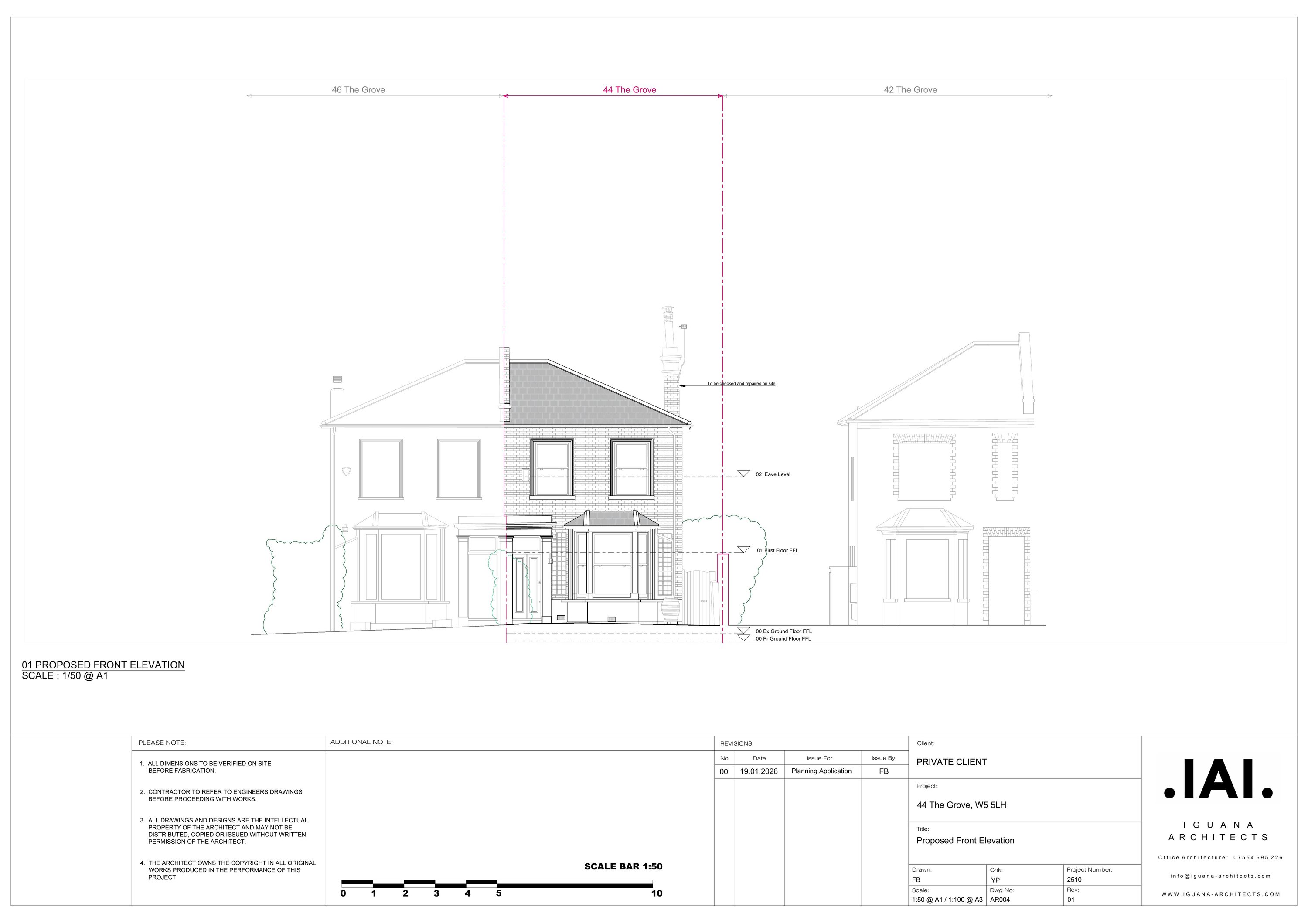
Draw - Prop Elevation (Front)
Archived · Original link
Draw - Prop Elevation (Rear)
Archived · Original link
Draw - Prop Elevation (Side)
Archived · Original link
Draw - Prop Section
Archived · Original link
Site Notice
Archived · Original link
Draw - Exist Floor Plan
Archived · Original link
Supporting Documentation
Archived · Original link
Supporting Documentation
Archived · Original link
Draw - Exist Roof Plan
Archived · Original link
Draw - Exist Elevation (Front)
Archived · Original link
Draw - Exist Elevation (Rear)
Archived · Original link
Draw - Exist Elevation (Side)
Archived · Original link
Draw - Exist Section
Archived · Original link
Draw - Prop Floor Plan
Archived · Original link
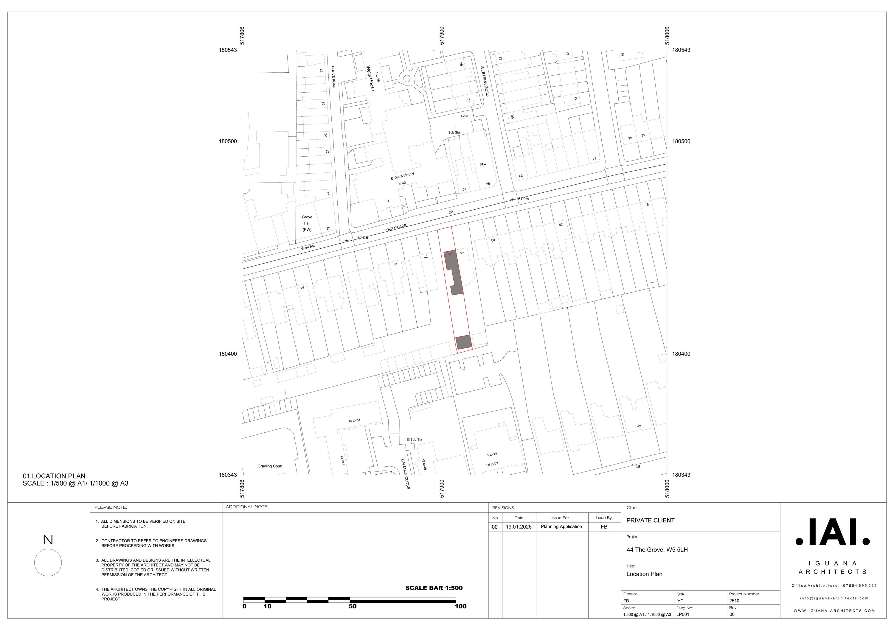
Draw - Location Plan
Archived · Original link

Have your say

Your comment matters. Councils must consider every representation that raises material planning considerations.

Write a comment