← London Borough of Ealing

Status

Pending Consideration House extension
Received
23 Jan 2026
New homes
0

Full proposal

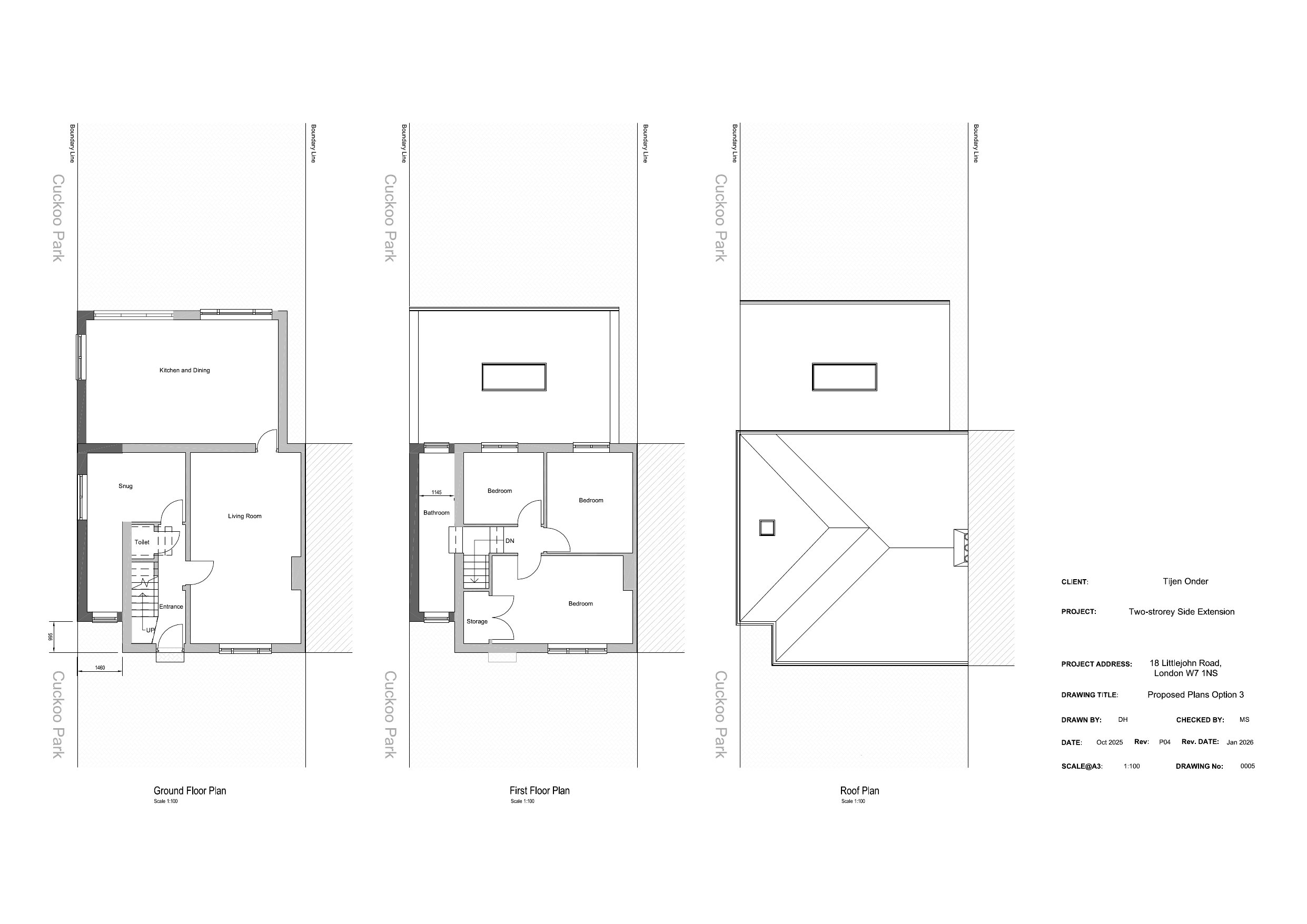
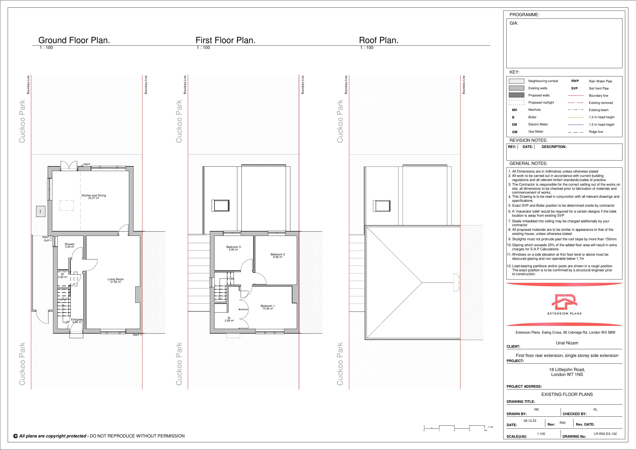
Two storey side extension (following demolition of existing side extension); single storey side/ rear extension (following demolition of lean storey rear extension)

Documents

Site Notice
Archived · Original link
Application Form - Without Personal Data
Archived · Original link
Site Notice
Archived · Original link
Site Notice
Archived · Original link
Site Notice
Archived · Original link
Drawing
Archived · Original link
Drawing
Archived · Original link
Drawing
Archived · Original link
Drawing
Archived · Original link
Design and Access Statement
Archived · Original link

Have your say

Your comment matters. Councils must consider every representation that raises material planning considerations.

Write a comment