← London Borough of Ealing

Status

Pending Consideration House extension
Received
23 Jan 2026
New homes
0

Full proposal

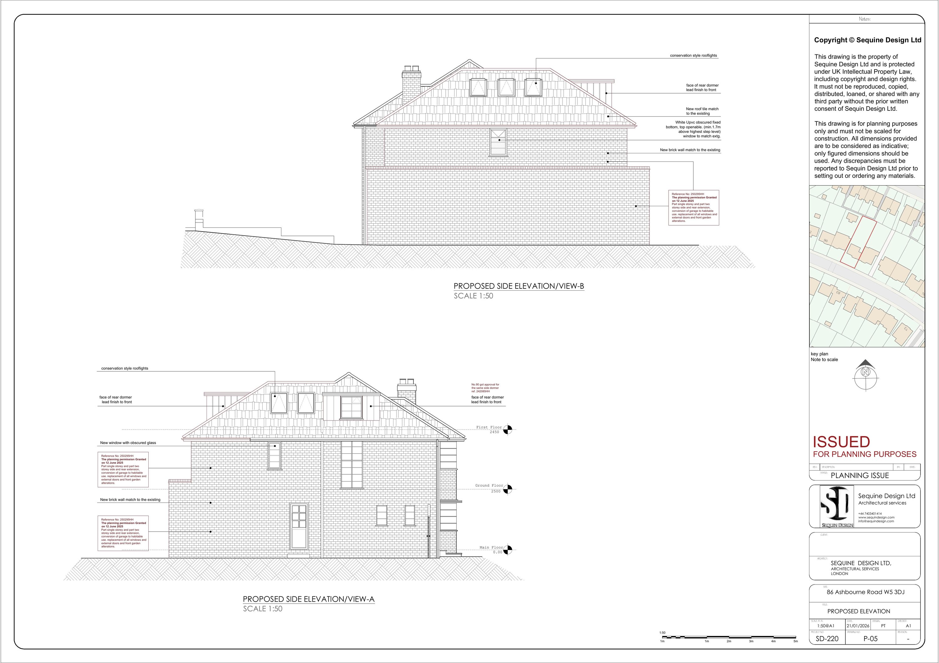
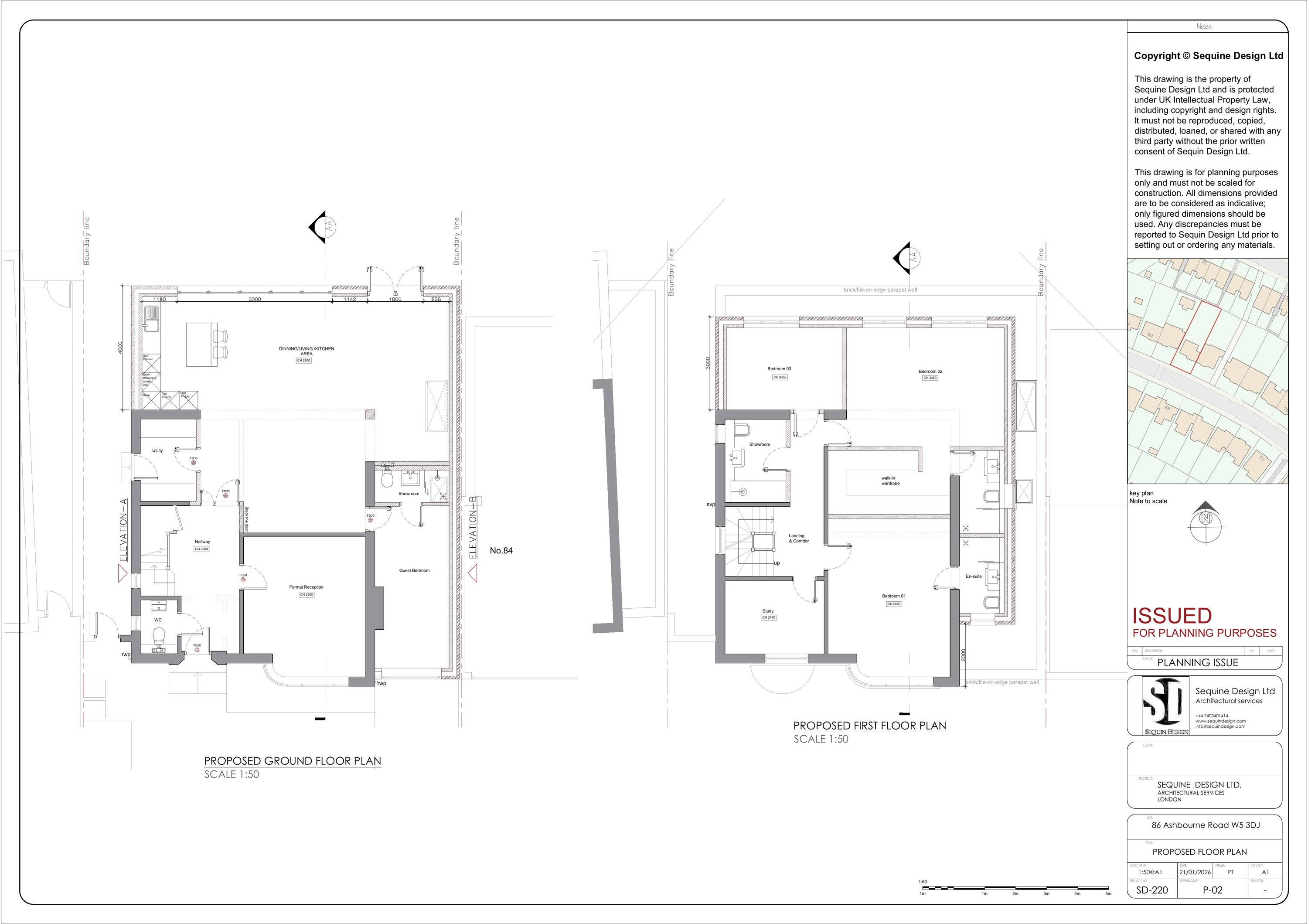
Part single, part two storey side/rear extension, including conversion of garage to habitable use, alteration of garage door to window opening; rear/side roof extension incorporating dormer windows x 2 and insertion of five rooflights; replacement windows and external doors

Documents

Application Form - Without Personal Data
Archived · Original link
Site Notice
Archived · Original link
Design and Access Statement
Archived · Original link
Heritage Statement
Archived · Original link
Site Notice
Archived · Original link
Draw - Location Plan
Archived · Original link
Draw - Prop Floor Plan
Archived · Original link
Draw - Exist
Archived · Original link
Draw - Prop Floor Plan
Archived · Original link
Draw - Prop Elevations
Archived · Original link
Draw - Prop Elevation (Side)
Archived · Original link
Transport Assessment
Archived · Original link

Have your say

Your comment matters. Councils must consider every representation that raises material planning considerations.

Write a comment