← London Borough of Ealing

Status

Pending Consideration House extension
Received
26 Jan 2026
New homes
0

Full proposal

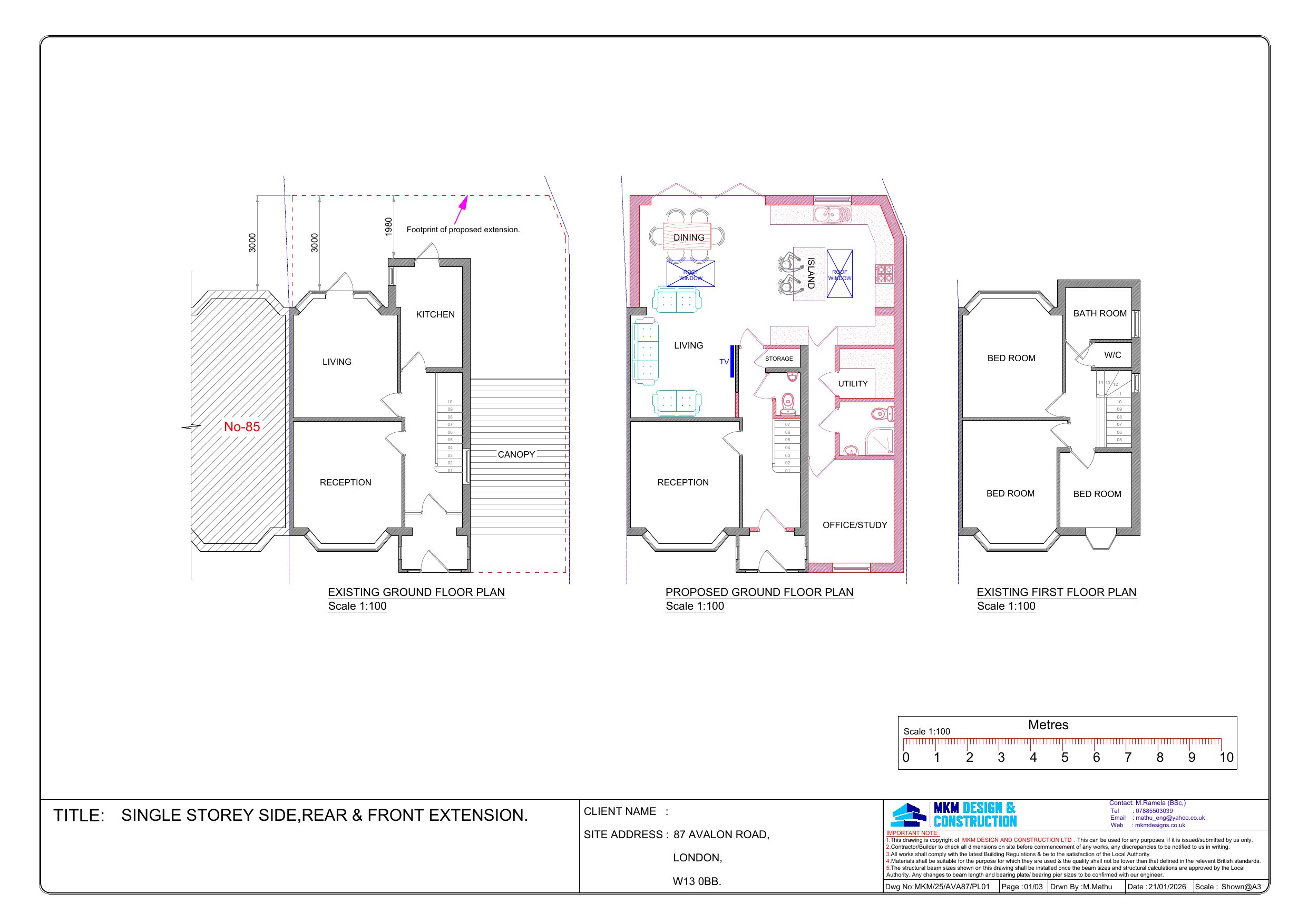
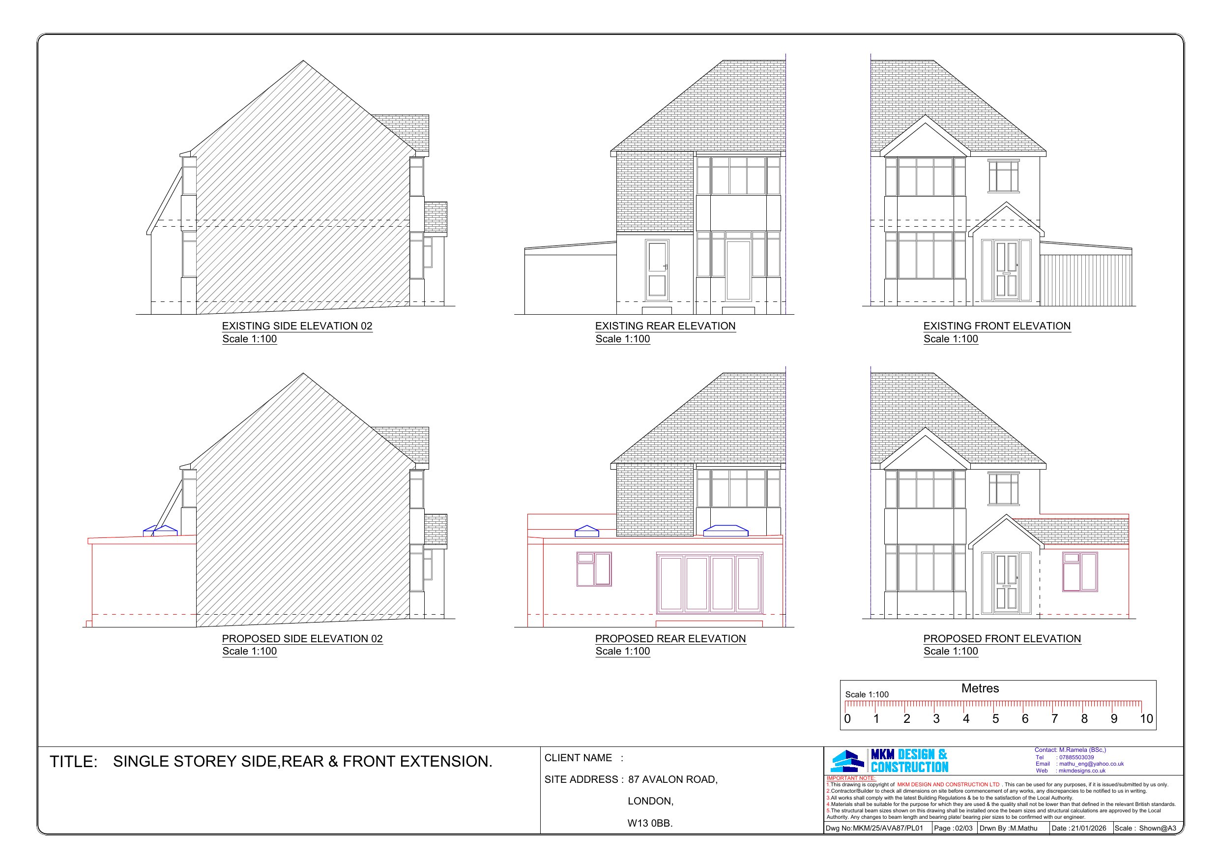
Single storey front extension; single storey side to rear extension (following demolition of existing rear extension); removal of canopy

Documents

Site Notice
Archived · Original link
Application Form - Without Personal Data
Archived · Original link
Site Notice
Archived · Original link

Have your say

Your comment matters. Councils must consider every representation that raises material planning considerations.

Write a comment