← Back to London Borough of Ealing

Status

Pending Consideration
Received Last week
New dwellings n/a

What you can do

Take Action

Make your voice heard. Authorities need to hear from people who support new homes.

Full Proposal

Construction of dwellinghouse adjacent to existing dwellinghouse with provision of hard and soft landscaping; cycle storage, bin storage

Detail pages

Documents

260323FUL SM.PDF
Site Notice
Not downloaded · Council link
32B DAS STATEMENT
Design and Access Statement
Not downloaded · Council link
APPLICATIONFORMREDACTED
Application Form - Without Personal Data
Not downloaded · Council link
CONSERVATION SITE NOTICE
Site Notice
Not downloaded · Council link
DAYLIGHT AND SUNLIGHT REPORT COPY
Daylight Assessment
Not downloaded · Council link
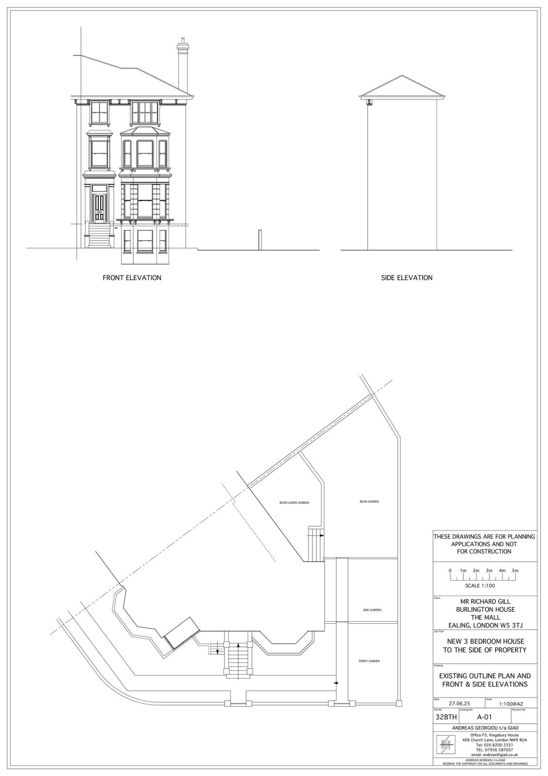
EXISTING OUTLINE PLAN AND FRONT AND SIDE ELEVATIONS
Draw - Exist Elevation (Front)
Not downloaded · Council link
EXISTING SITE BLOCK PLAN
Draw - Exist Site/Block Plan
Not downloaded · Council link
HERITAGE STATEMENT
Heritage Statement
Not downloaded · Council link
LANDSCAPE REPORT A
Landscaping Details
Not downloaded · Council link
LOCATION PLAN
Draw - Location Plan
Not downloaded · Council link
PLANNING STATEMENT
Planning Statement
Not downloaded · Council link
POLICY D12 STATEMENT A
Supporting Documentation
Not downloaded · Council link
PROPOSED BLOCK PLAN
Draw - Exist Site/Block Plan
Not downloaded · Council link
PROPOSED ELEVATIONS AND TYPICAL SECTIONS
Draw - Prop Elevation (Front)
Not downloaded · Council link
PROPSOED FLOOR AND ROOF PLAN
Drawing
Not downloaded · Council link
SIDE SECTIONAL ELEVATION
Drawing
Not downloaded · Council link
SOFT LANDSCAPING DETAILS
Landscaping Details
Not downloaded · Council link