← London Borough of Ealing

Status

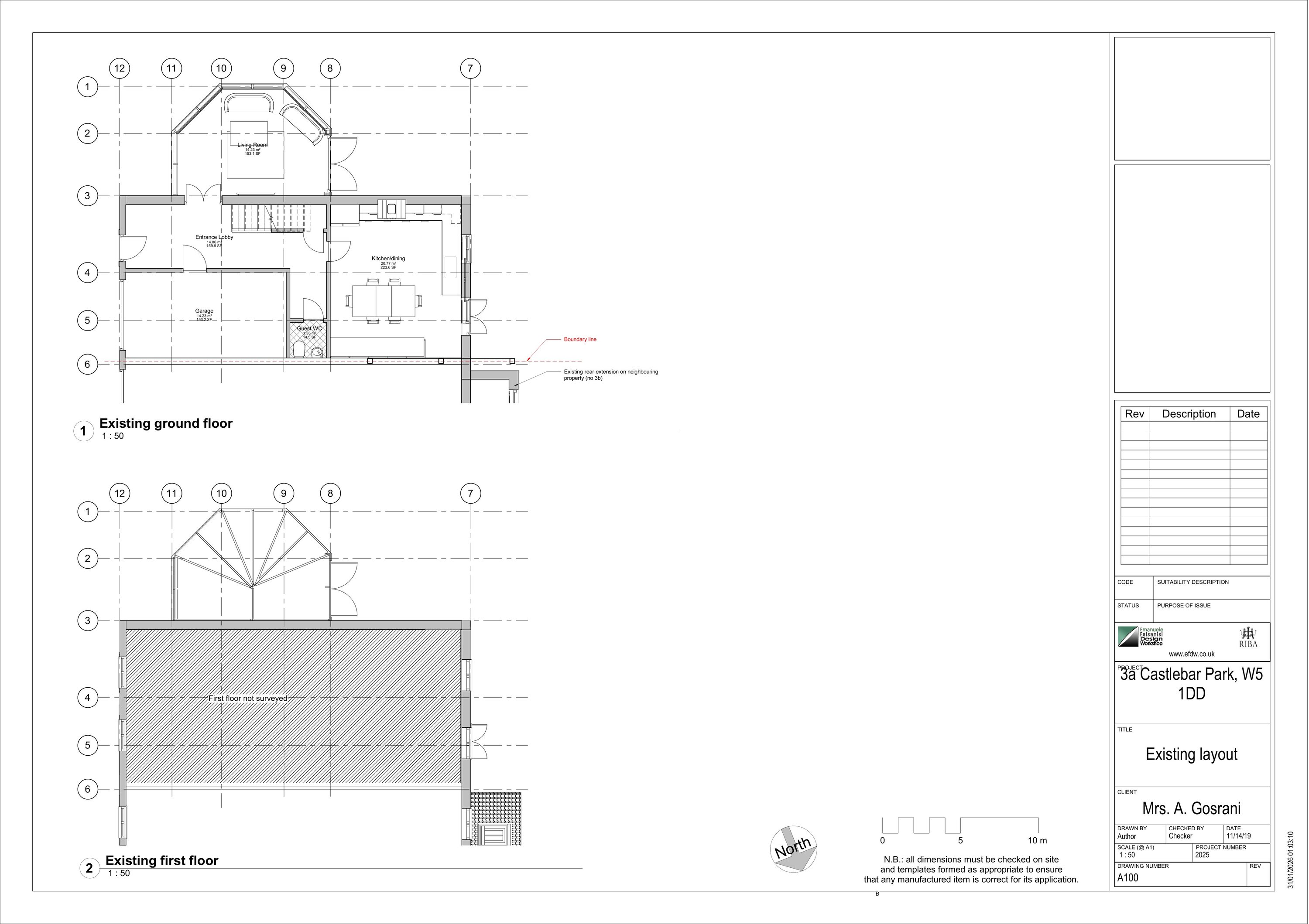
Pending Consideration House extension
Received
02 Feb 2026
New homes
0

Full proposal

Single storey rear extension; conversion of existing garage into a habitable room, change to front fenestration, replacing the garage door with a uPVC double-glazed window

Documents

Draw - Exist Site/Block Plan
Archived · Original link
Application Form - Without Personal Data
Archived · Original link
Site Notice
Archived · Original link
Site Notice
Archived · Original link
Draw - Location Plan
Archived · Original link

Have your say

Your comment matters. Councils must consider every representation that raises material planning considerations.

Write a comment