← London Borough of Ealing

Status

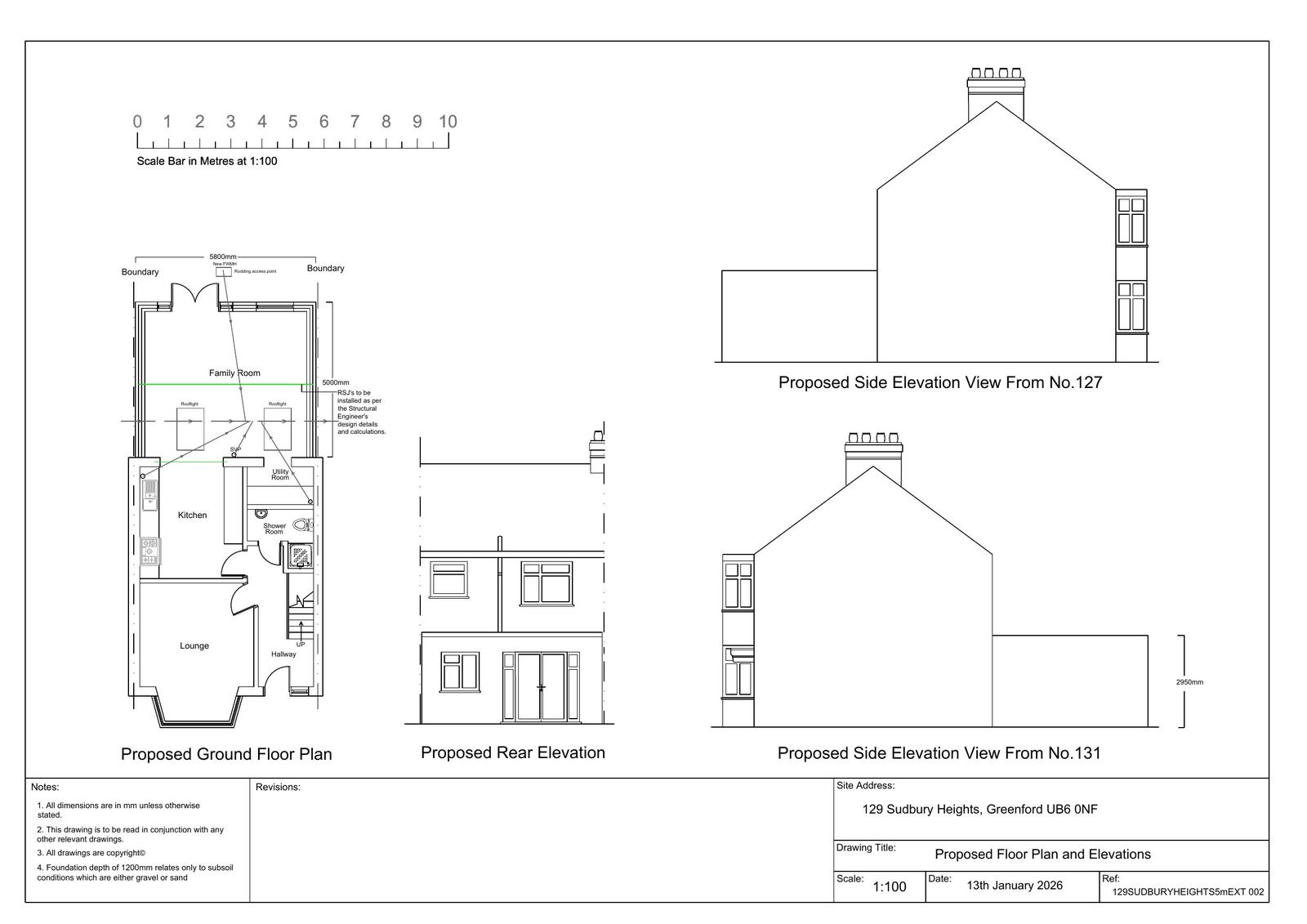
Pending Consideration House extension
Received
02 Feb 2026
New homes
0

Full proposal

Single storey rear extension (max 5m deep and max 2.95m high) (following demolition of existing rear addition) (42 Days Prior Approval Notification Process)

Documents

Application Form - Without Personal Data
Archived · Original link
Drawing
Archived · Original link
Draw - Location Plan
Archived · Original link

Have your say

Your comment matters. Councils must consider every representation that raises material planning considerations.

Write a comment