← London Borough of Ealing

Status

Awaiting decision House extension
Received
03 Feb 2026
New homes
0

Full proposal

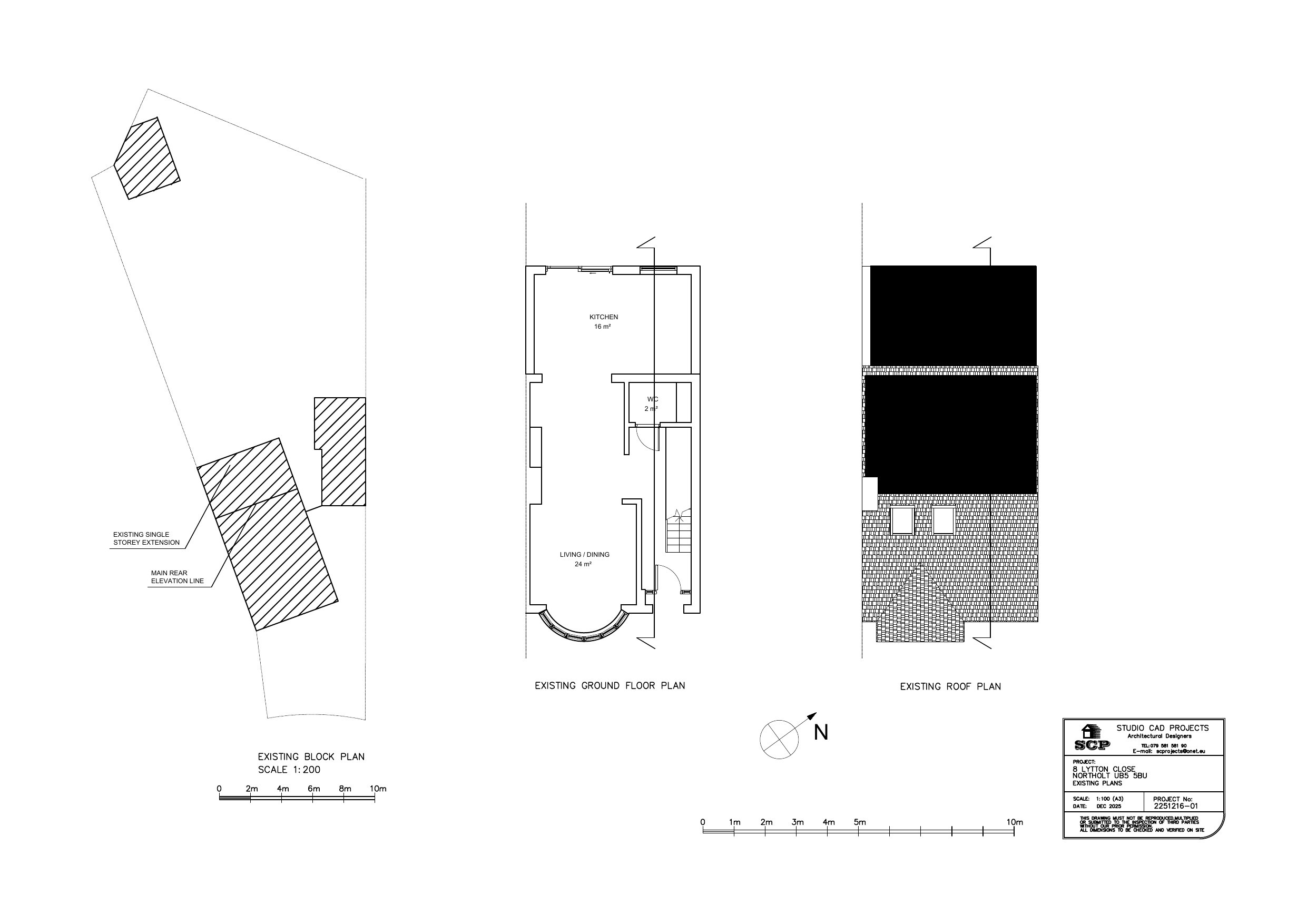
Single storey (Max 6m deep x Max 3.25m high) rear extension (Following demolition of existing rear extension) (42 days Prior Notification Process)

Documents

Application Form - Without Personal Data
Archived · Original link
Draw - Prop
Archived · Original link
Draw - Exist Floor Plan
Archived · Original link
Draw - Exist Elevations
Archived · Original link
Draw - Prop Floor Plan
Archived · Original link
Draw - Prop Elevations
Archived · Original link

Have your say

Your comment matters. Councils must consider every representation that raises material planning considerations.

Write a comment