← London Borough of Ealing

Status

Awaiting decision House extension
Received
04 Feb 2026
New homes
0

Full proposal

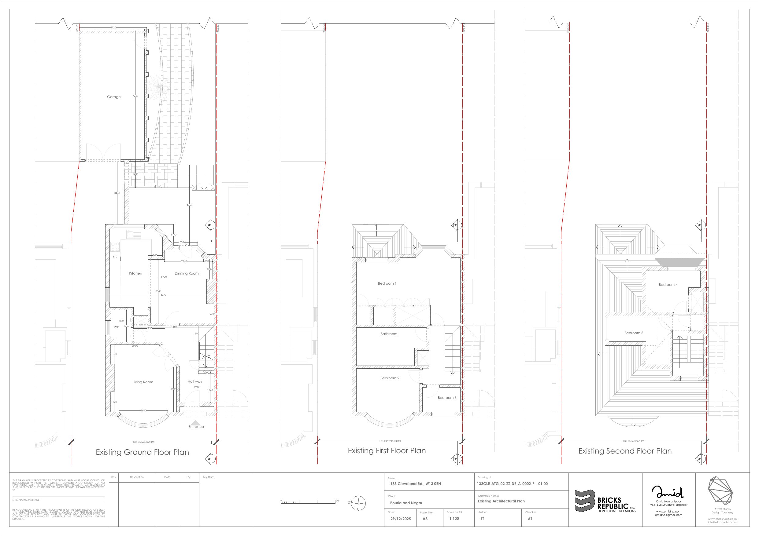
Single storey rear extension (following demolition of existing rear extension) and single storey garage (following demolition of existing garage)

Documents

Design and Access Statement
Archived · Original link
Design and Access Statement
Archived · Original link
Application Form - Without Personal Data
Archived · Original link
Draw - Location Plan
Archived · Original link
Site Notice
Archived · Original link

Have your say

Your comment matters. Councils must consider every representation that raises material planning considerations.

Write a comment