← London Borough of Ealing

Status

Pending Consideration Change of use
Received
06 Feb 2026
New homes
4

Full proposal

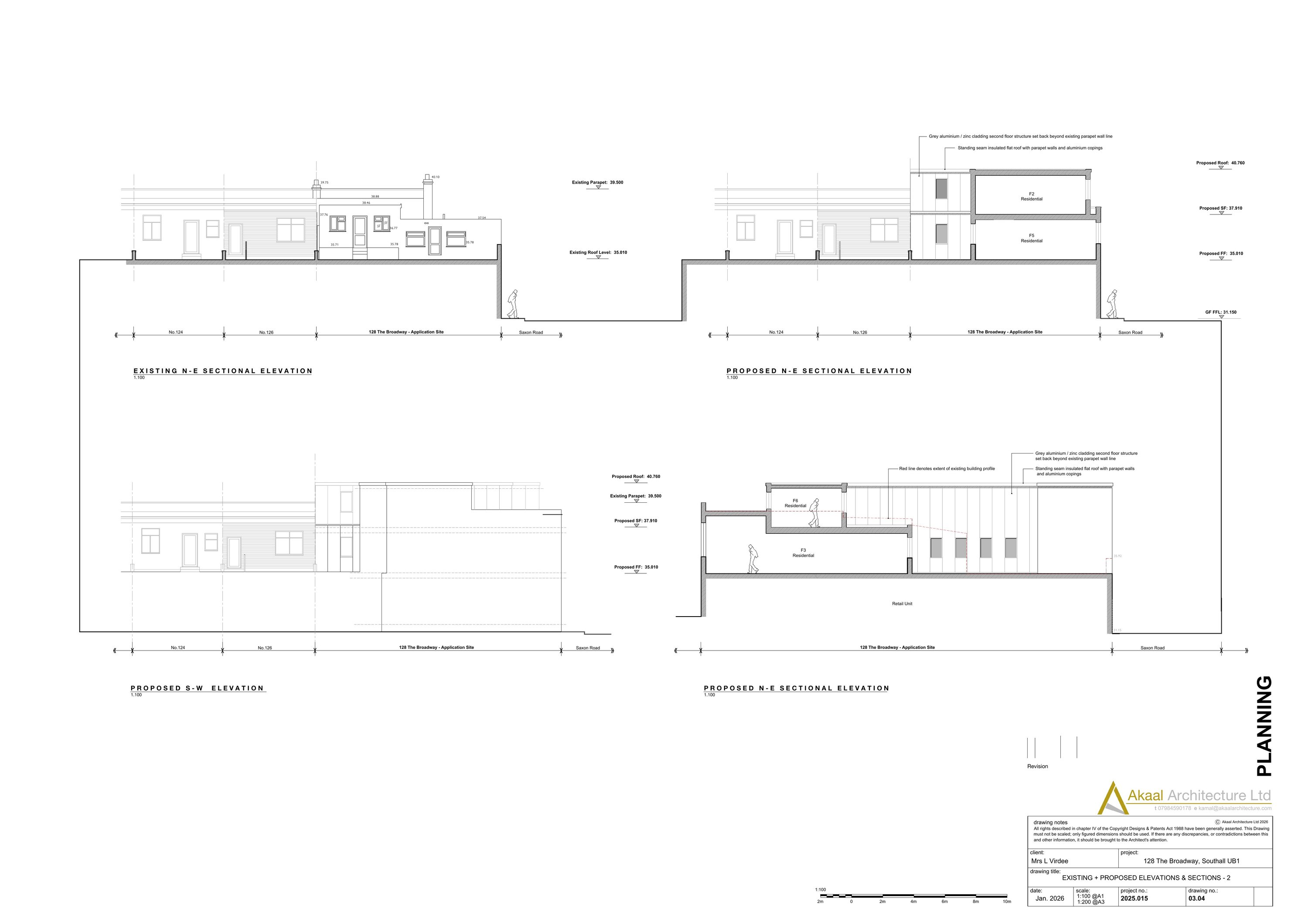
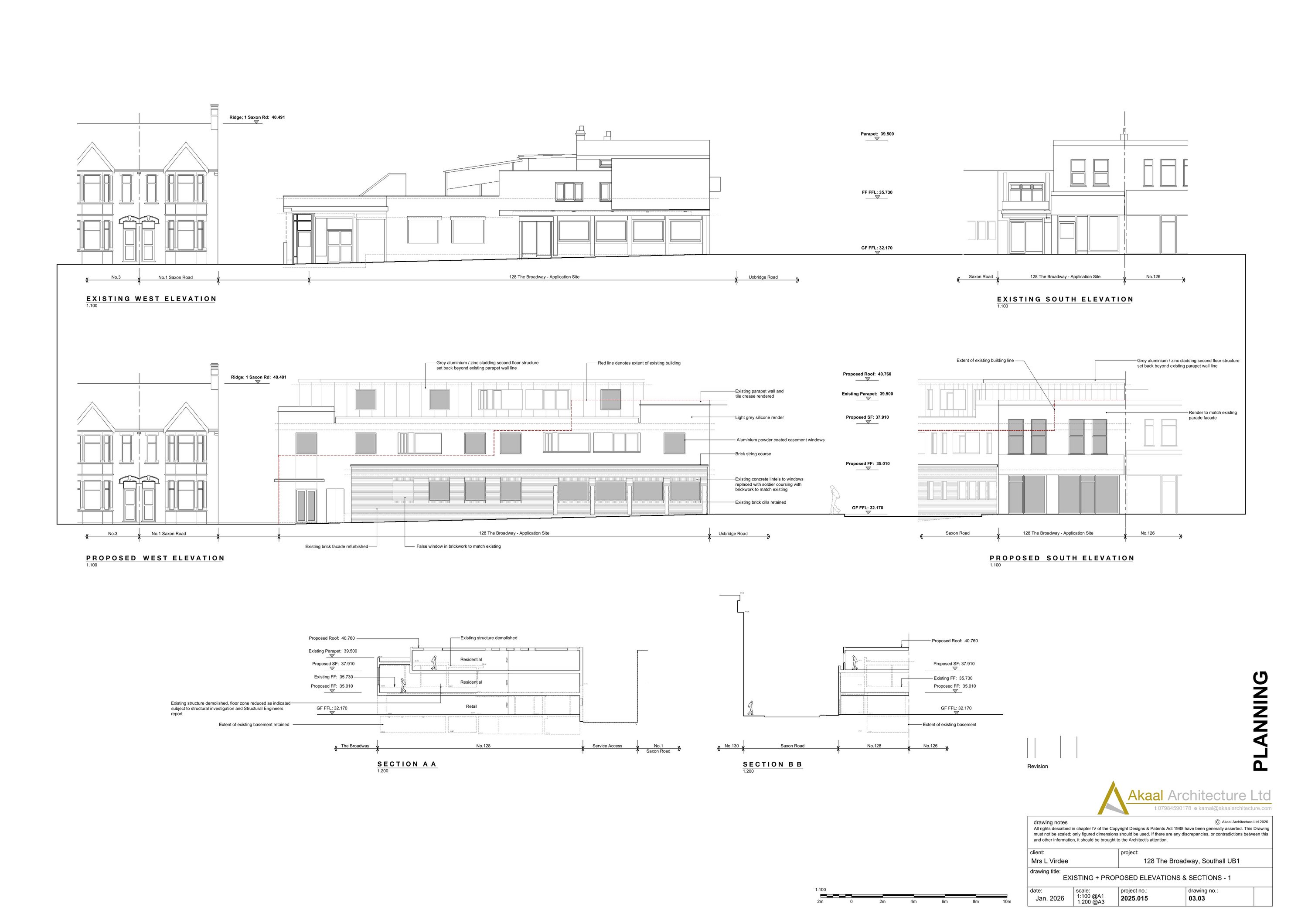
Conversion of existing flats x 2 into 6 self-contained flats (4 additional flats) over first and second floor level, above existing commercial space at basement/ground floor level; part first floor side/rear extension; mansard roof extension; alterations to ground floor entrance; associated cycle and refuse storage

Documents

Draw - Prop
Archived · Original link
Draw - Prop Floor Plan
Archived · Original link
Draw - Prop Elevations
Archived · Original link
Draw - Prop Elevations
Archived · Original link
Design and Access Statement
Archived · Original link
Correspondence
Archived · Original link
Application Form - Without Personal Data
Archived · Original link
Draw - Exist
Archived · Original link
Draw - Exist
Archived · Original link
Draw - Exist Elevations
Archived · Original link
Draw - Exist
Archived · Original link
Site Notice
Archived · Original link
Draw - Exist
Archived · Original link
S01
Draw - Location Plan
Archived · Original link
S03
Draw - Exist Site / Block Plan
Archived · Original link

Have your say

Your comment matters. Councils must consider every representation that raises material planning considerations.

Write a comment