← London Borough of Ealing

Status

Pending Consideration Change of use
Received
06 Feb 2026
New homes
0

Full proposal

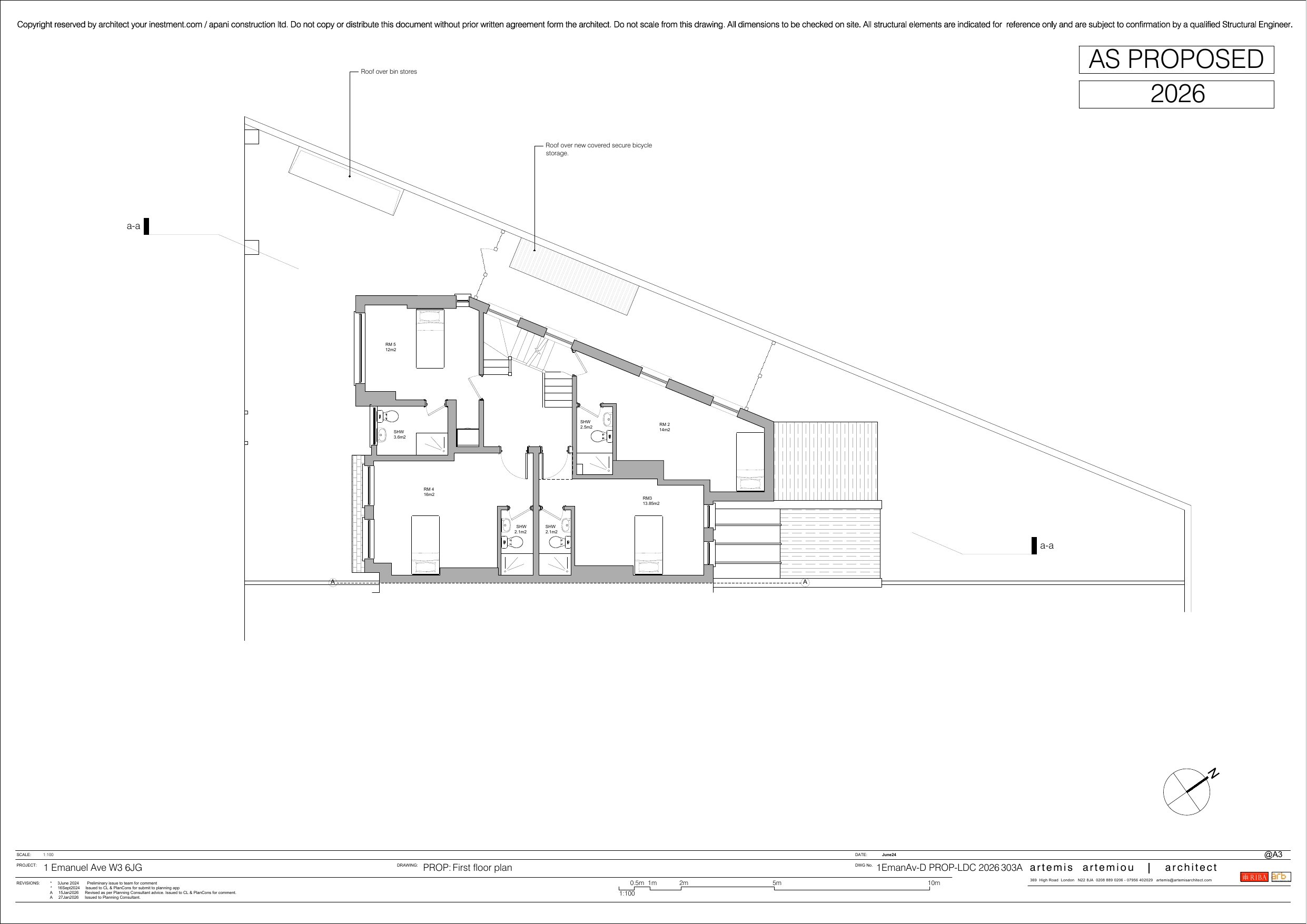
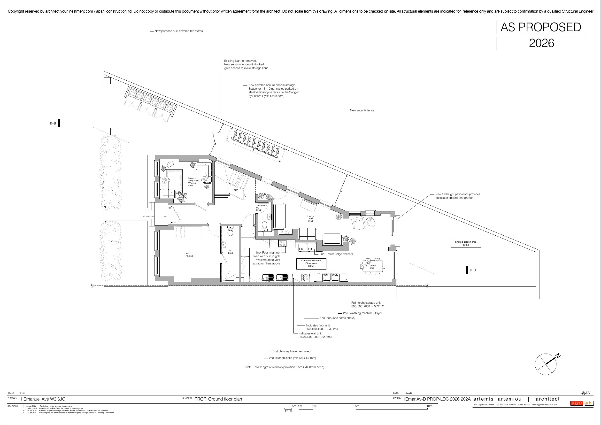
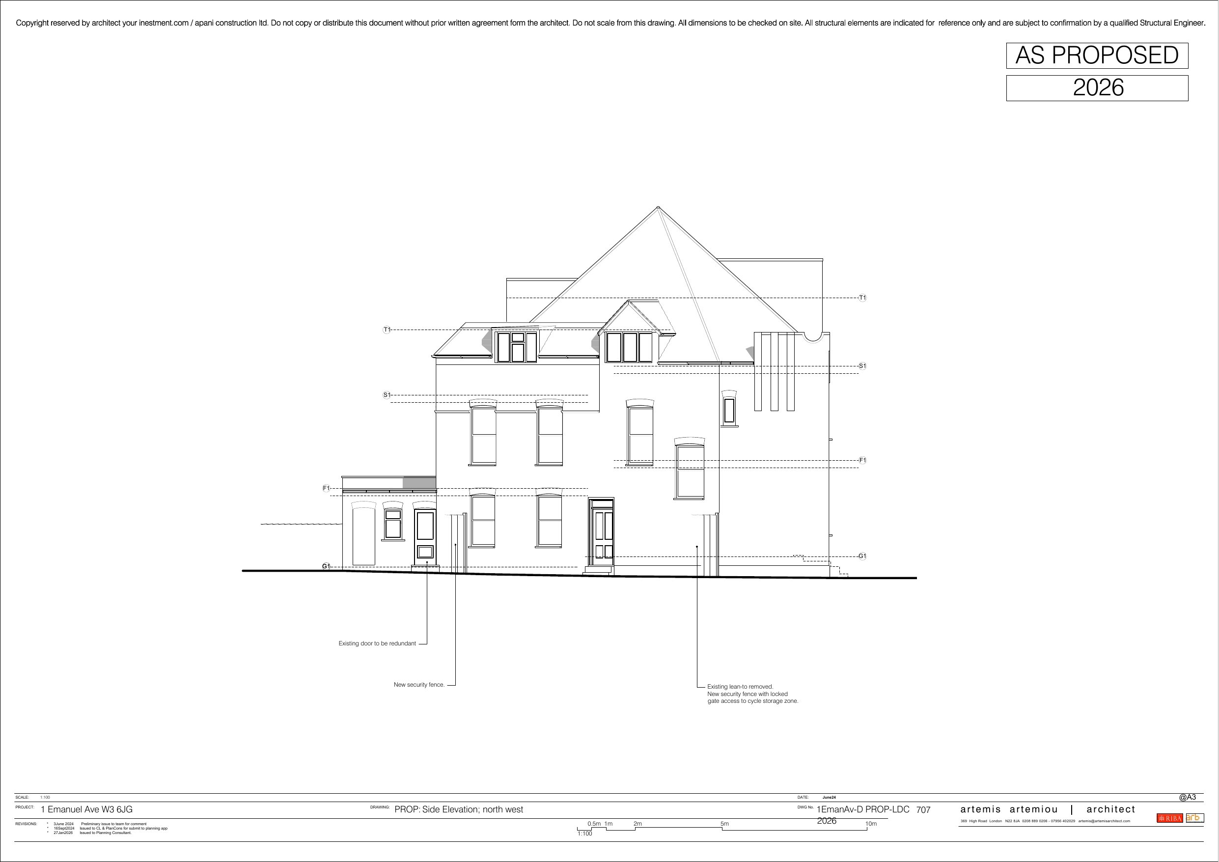
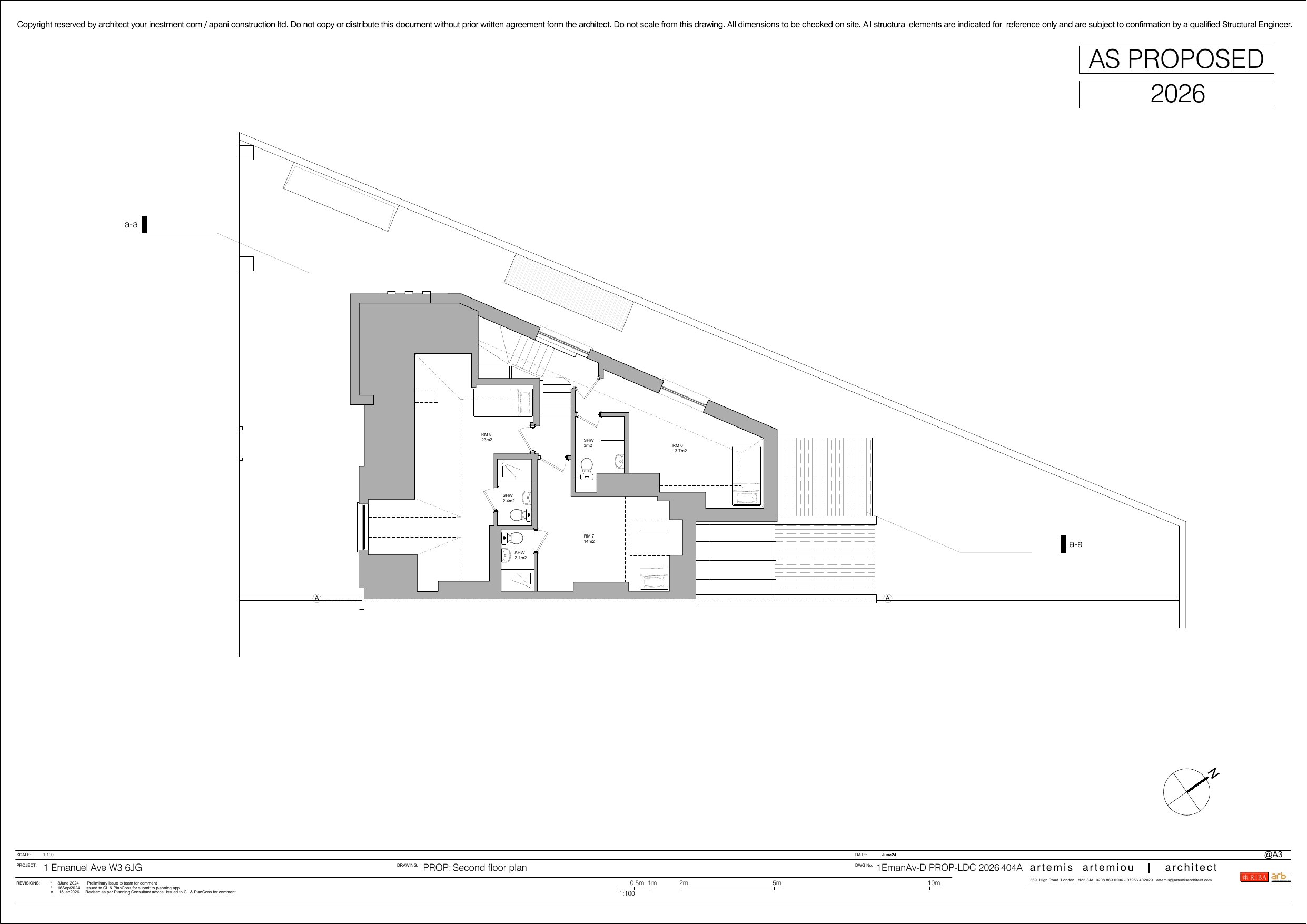
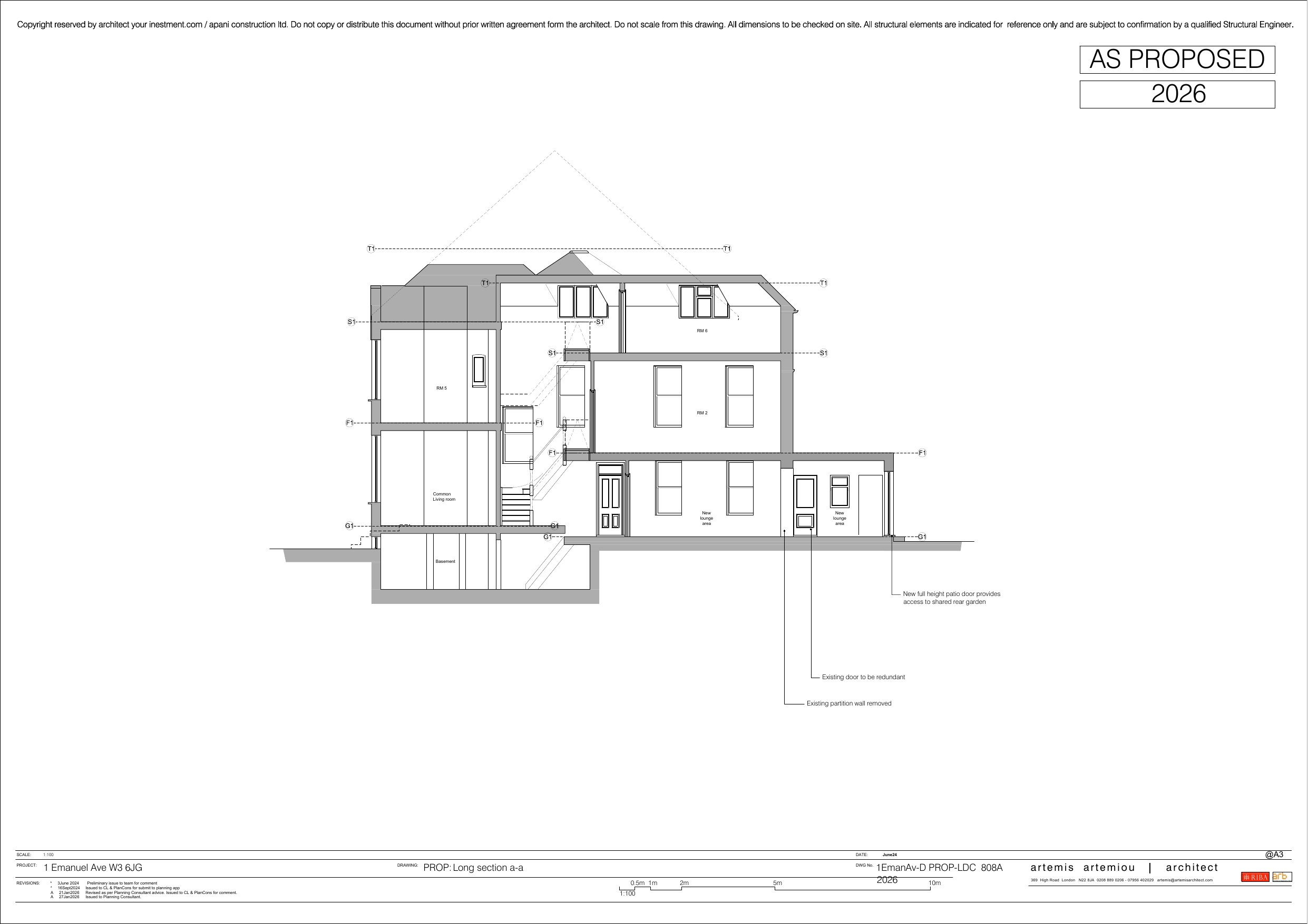
Change of use from a single dwellinghouse (Use Class C3) to an 8 room Large House in Multiple Occupation (Sui Generis); alterations to rear and side fenestration; front fence/gate (Following demolition of existing side lean-to)

Documents

Draw - Prop Floor Plan
Archived · Original link
Draw - Prop Floor Plan
Archived · Original link
Draw - Prop Floor Plan
Archived · Original link
Draw - Prop Floor Plan
Archived · Original link
Draw - Prop Roof Plan
Archived · Original link
Draw - Prop Elevations
Archived · Original link
Draw - Prop Elevation (Side)
Archived · Original link
Draw - Prop Section
Archived · Original link
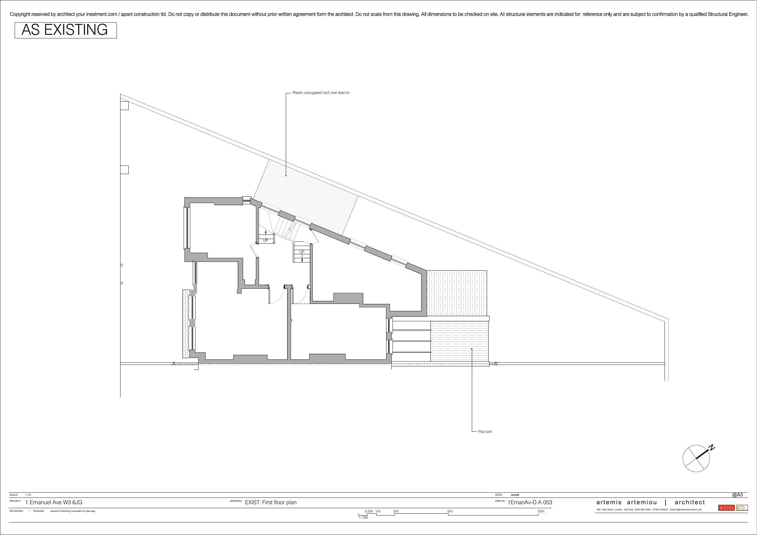
Draw - Exist Floor Plan
Archived · Original link
Draw - Exist Floor Plan
Archived · Original link
Draw - Exist Floor Plan
Archived · Original link
Draw - Exist Floor Plan
Archived · Original link
Draw - Exist Roof Plan
Archived · Original link
Draw - Exist Elevation (Rear)
Archived · Original link
Draw - Exist Elevation (Side)
Archived · Original link
Draw - Exist Elevation (Side)
Archived · Original link
Draw - Location Plan
Archived · Original link
Application Form - Without Personal Data
Archived · Original link
Site Notice
Archived · Original link

Have your say

Your comment matters. Councils must consider every representation that raises material planning considerations.

Write a comment