← London Borough of Ealing

Status

Pending Consideration House extension
Received
09 Feb 2026
New homes
0

Full proposal

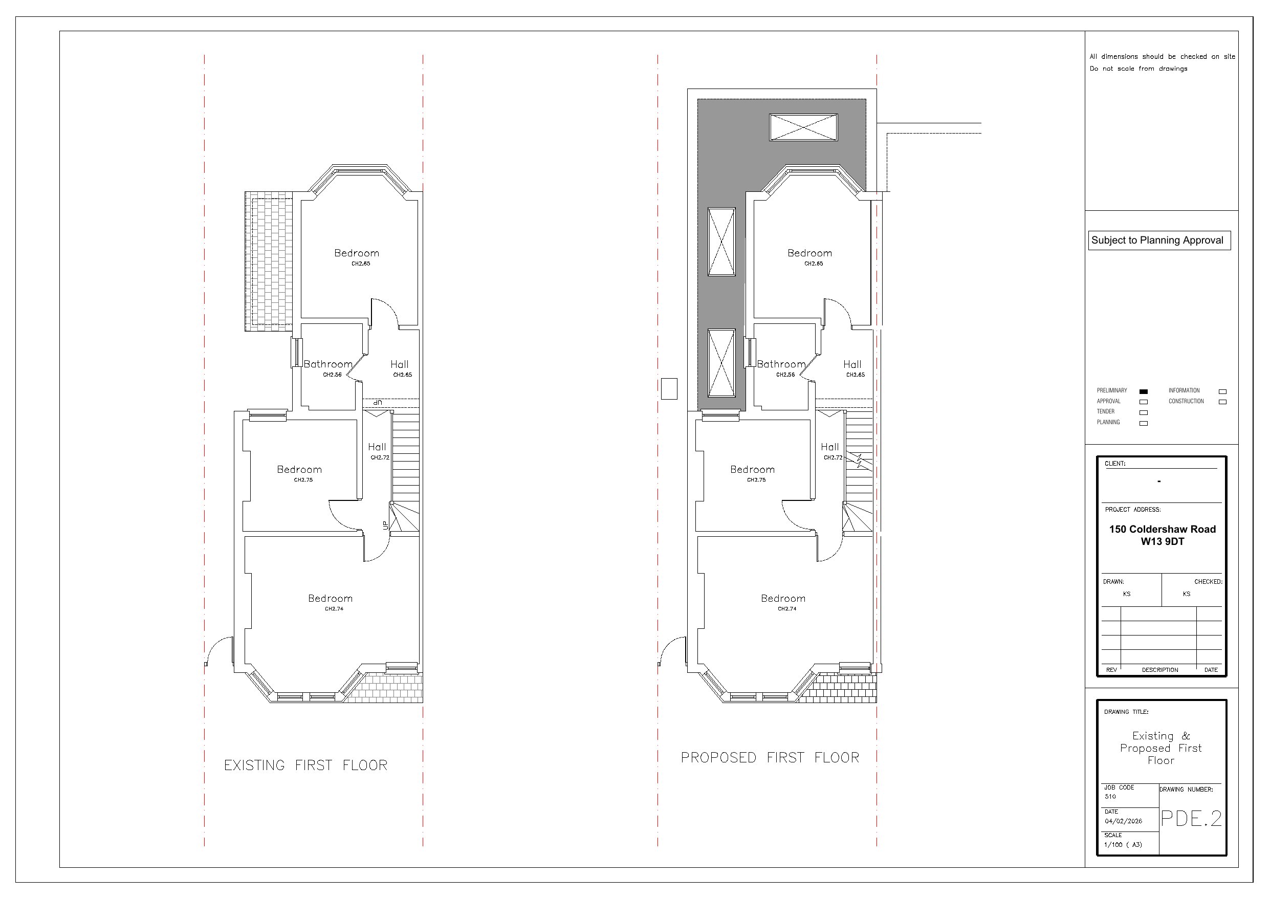
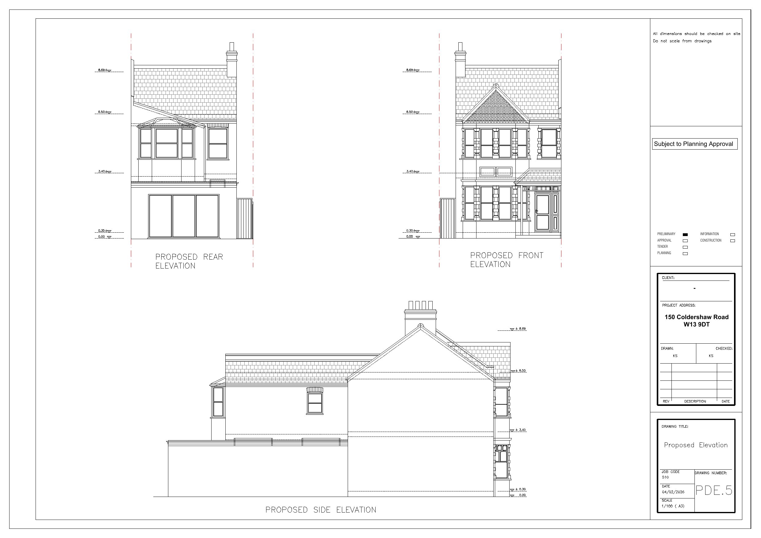
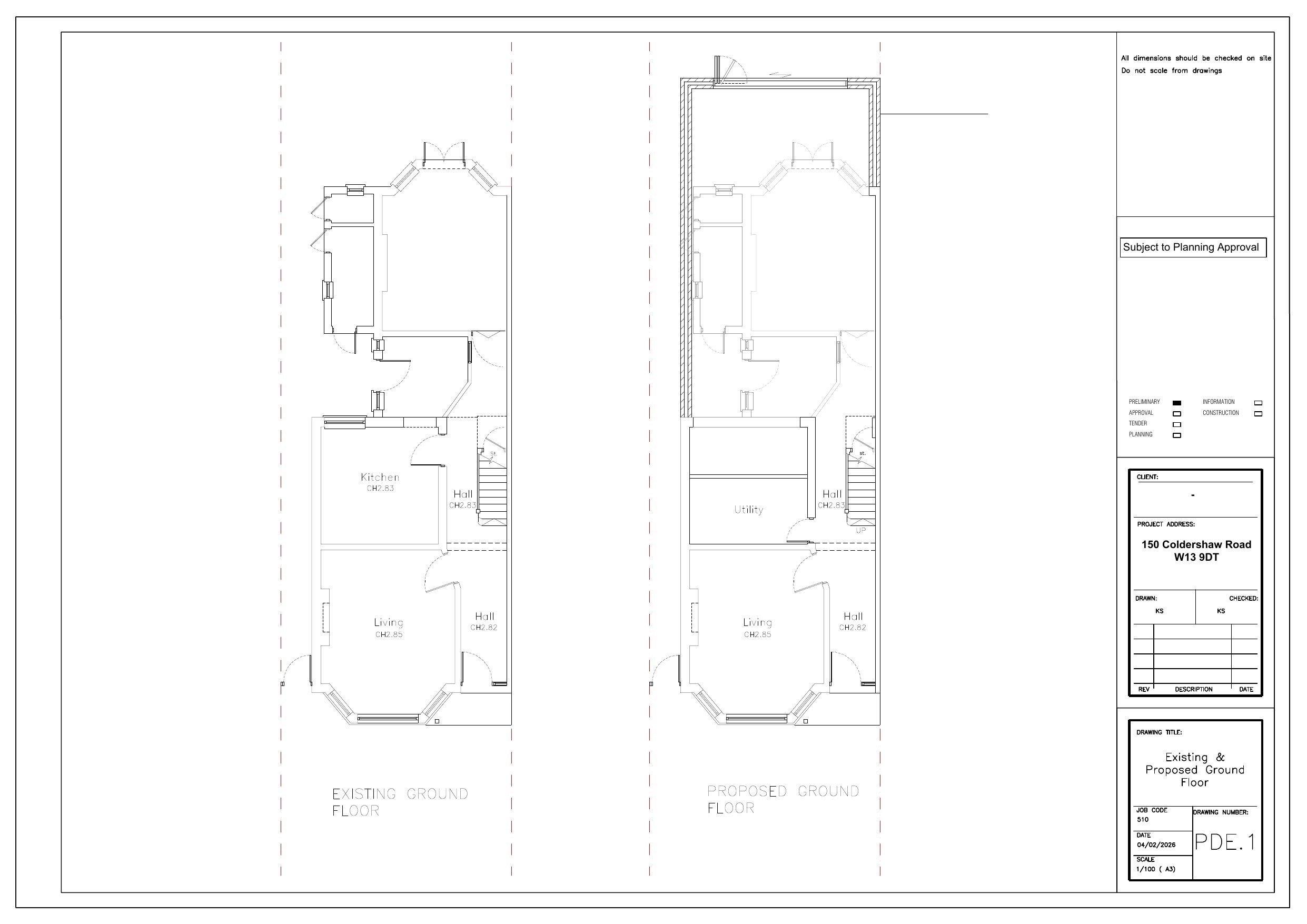
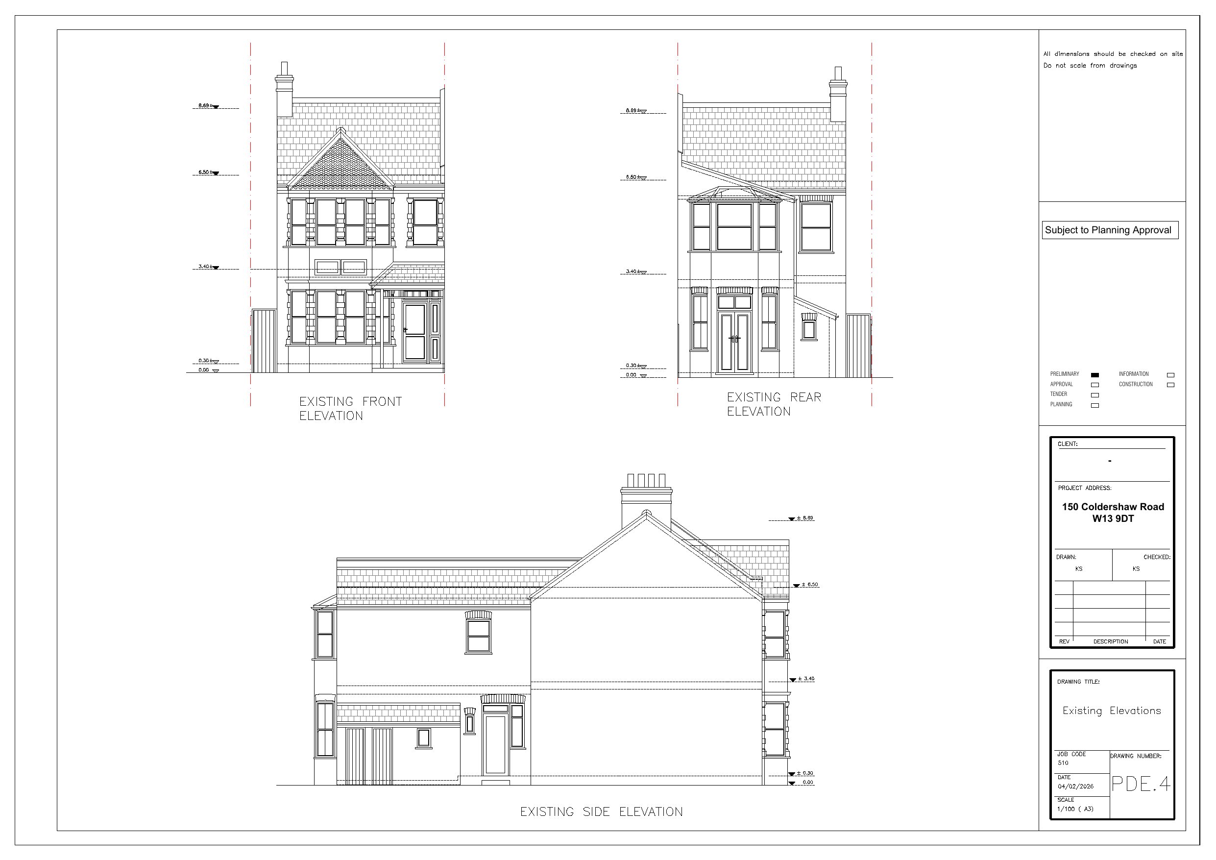
Single storey side and rear wrap-around extension (following part demolition of existing rear addition)

Documents

Application Form - Without Personal Data
Archived · Original link
Draw - Exist Site/Block Plan
Archived · Original link
Draw - Location Plan
Archived · Original link
Site Notice
Archived · Original link
Drawing
Archived · Original link
Drawing
Archived · Original link
Drawing
Archived · Original link

Have your say

Your comment matters. Councils must consider every representation that raises material planning considerations.

Write a comment