← London Borough of Ealing

Status

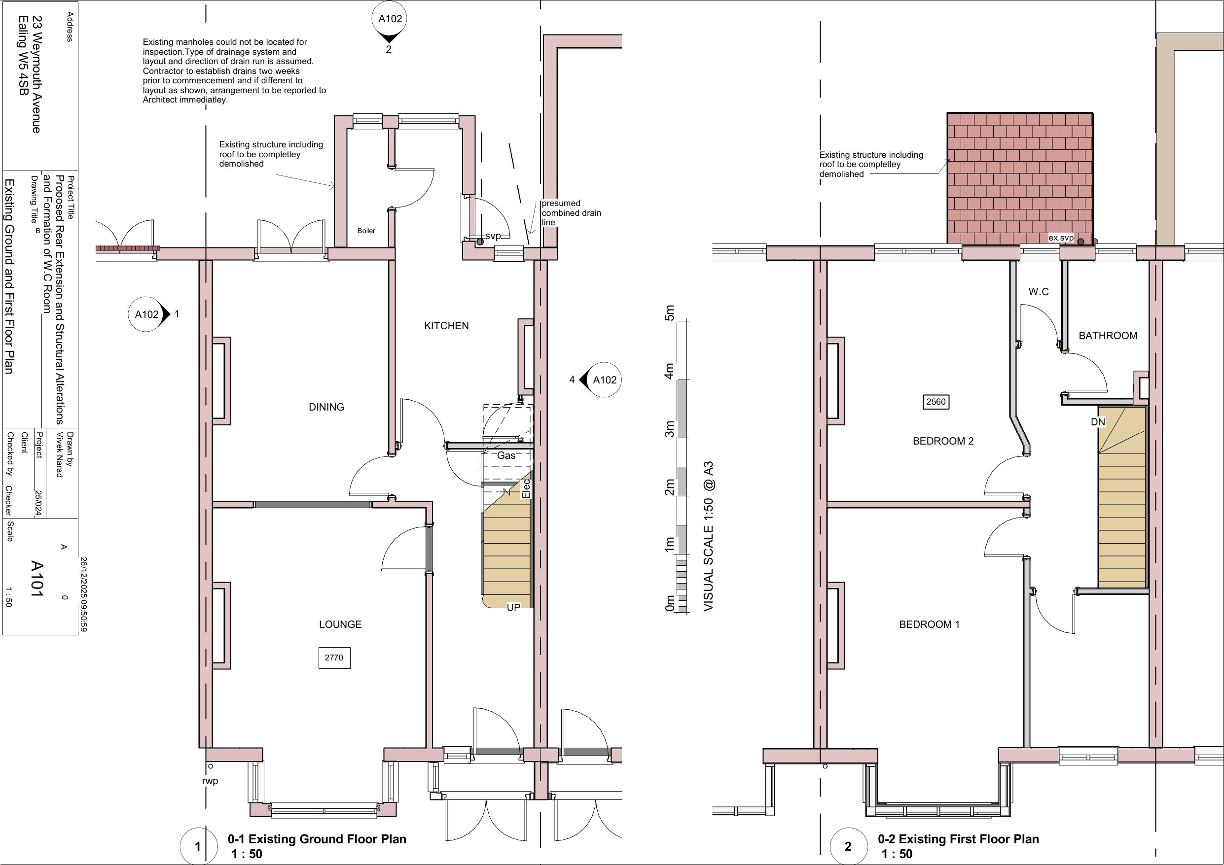
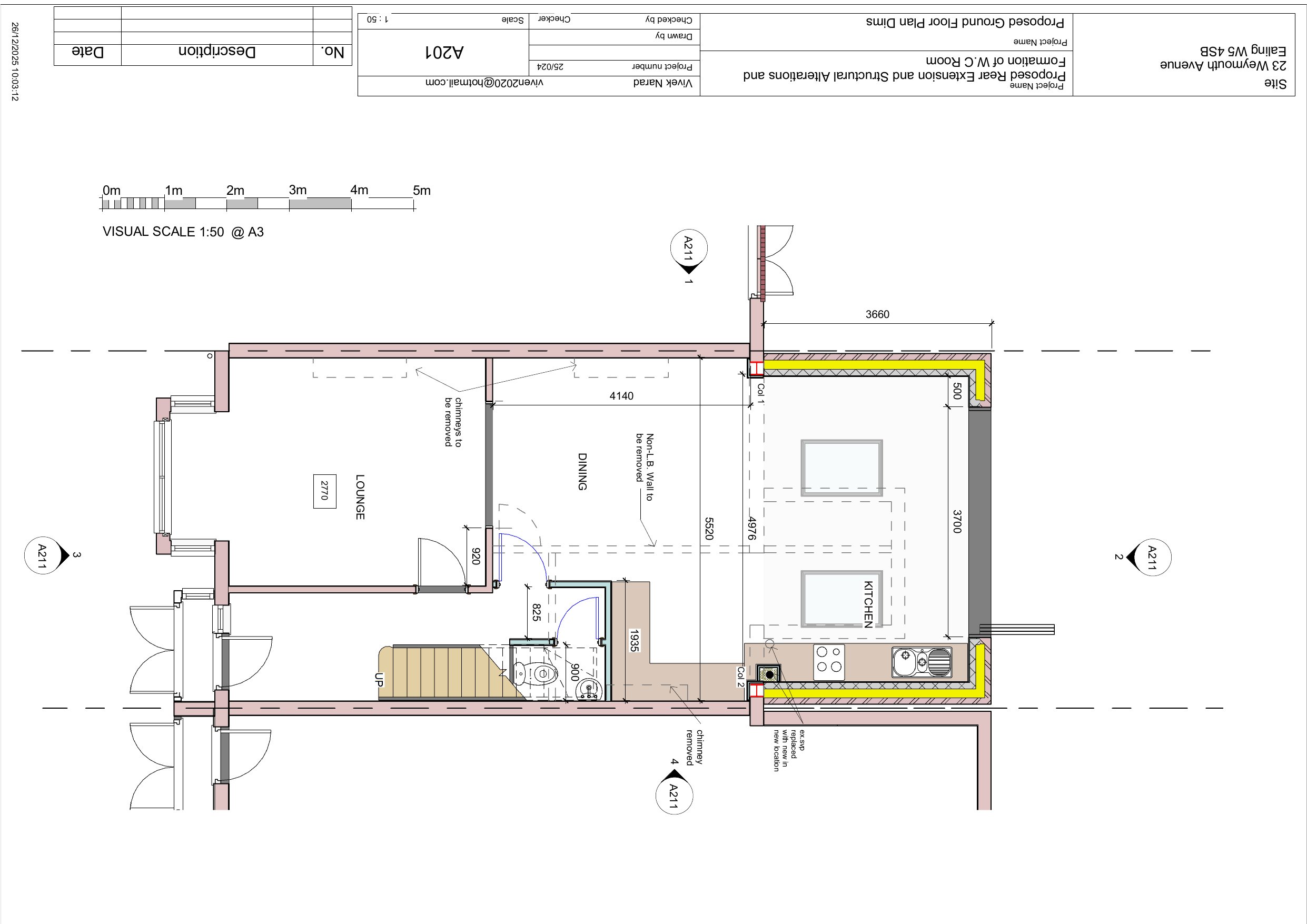
Pending Consideration House extension
Received
09 Feb 2026
New homes
0

Full proposal

Single storey rear extension (following demolition of existing rear addition)

Have your say

Your comment matters. Councils must consider every representation that raises material planning considerations.

Write a comment