← London Borough of Ealing

Status

Pending Consideration House extension
Received
Last month
New homes
0

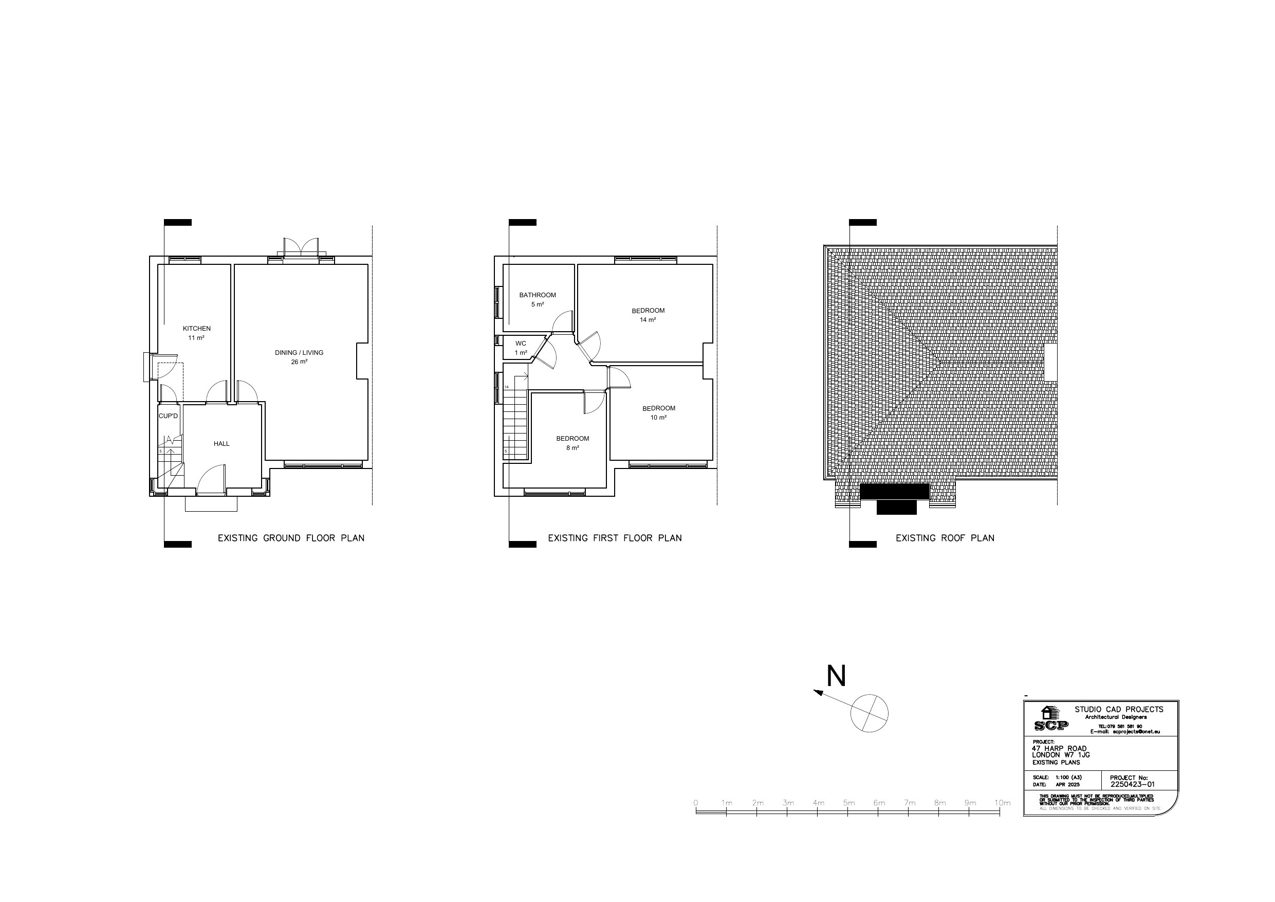
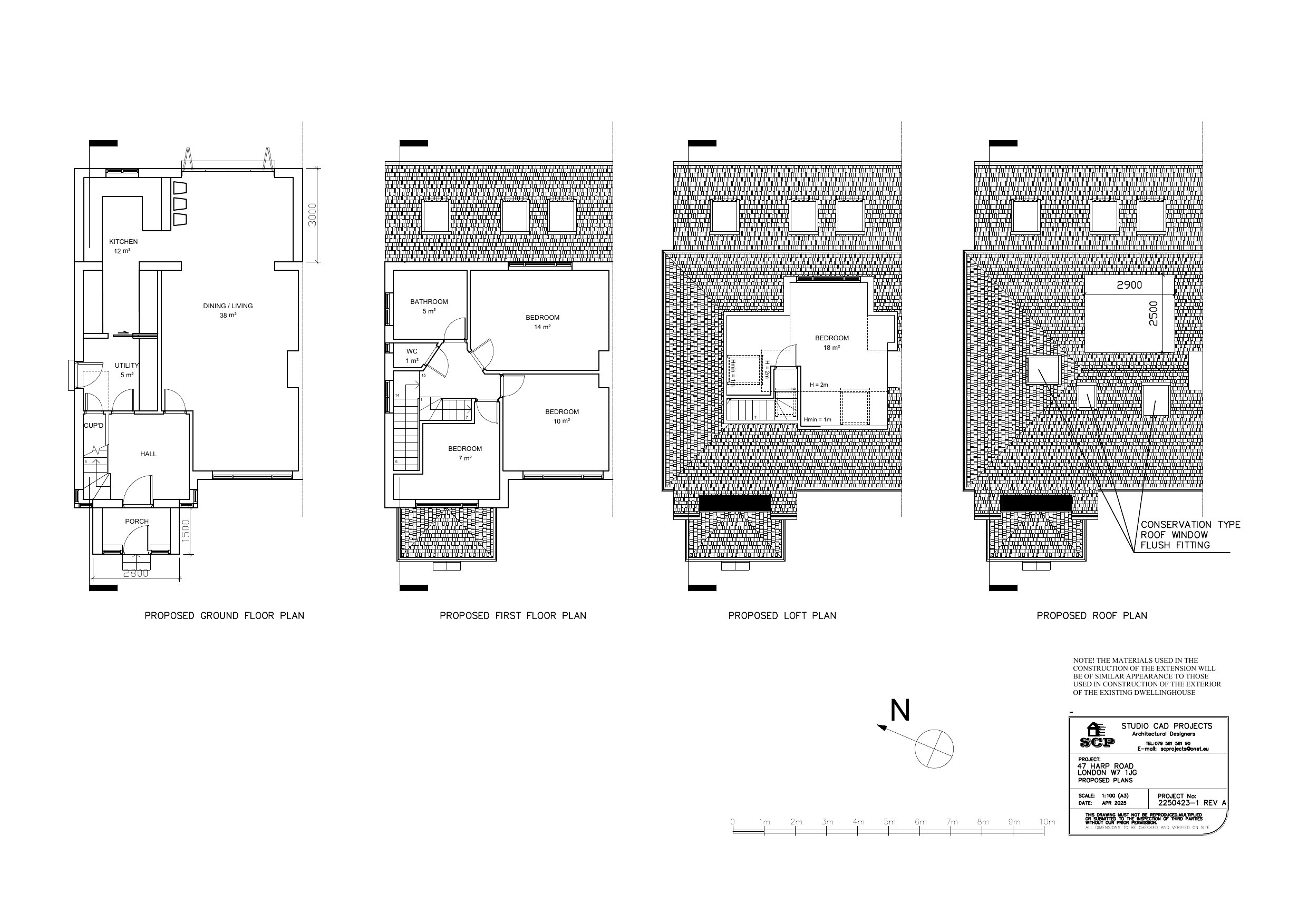
Full proposal

Single storey front porch extension; single storey rear extension; rear dormer roof extension; installation of two rooflights to front roofslope; installation of rooflight to side gable

Documents

Site Notice
Archived · Original link
Application Form - Without Personal Data
Archived · Original link
Site Notice
Archived · Original link
Draw - Exist Site/Block Plan
Archived · Original link
Drawing
Archived · Original link
Drawing
Archived · Original link
Draw - Location Plan
Archived · Original link
Drawing
Archived · Original link
Drawing
Archived · Original link

Have your say

Your comment matters. Councils must consider every representation that raises material planning considerations.

Write a comment