← London Borough of Ealing

Status

Pending Consideration House extension
Received
09 Feb 2026
New homes
0

Full proposal

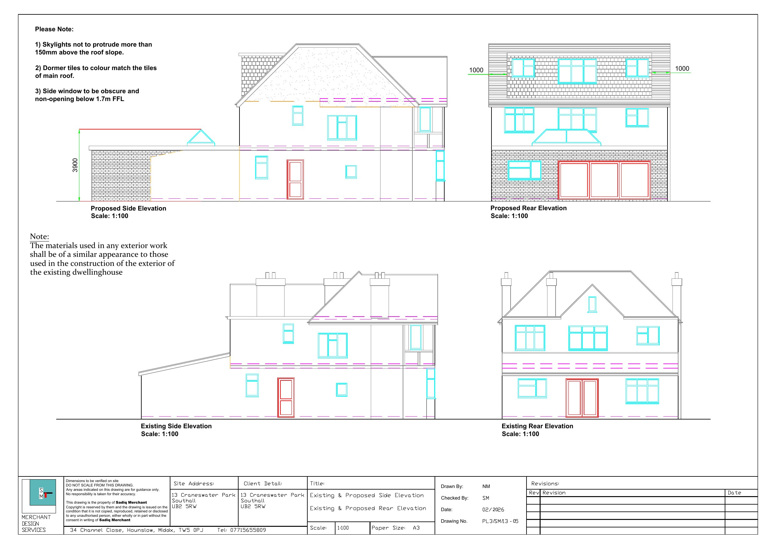
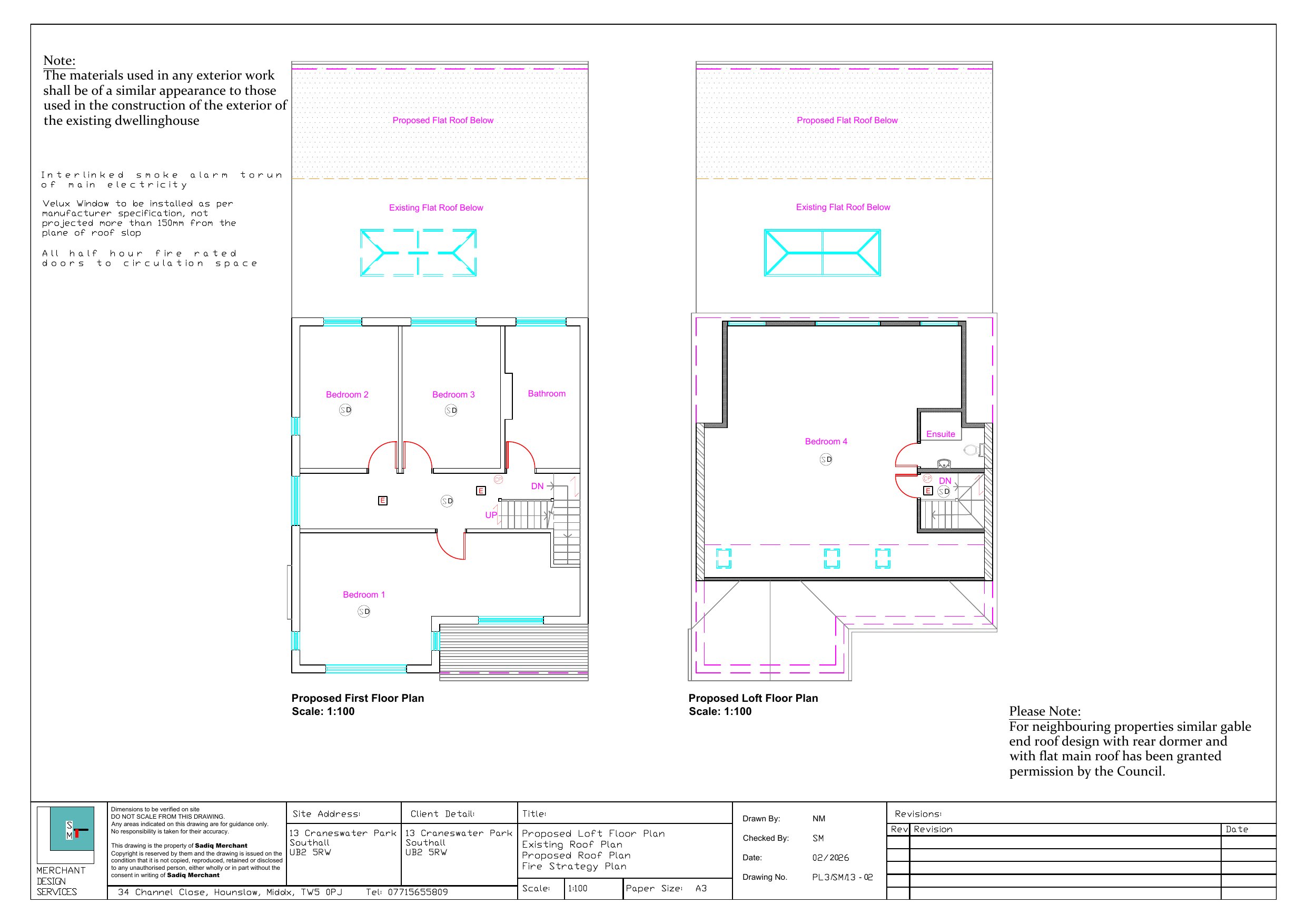
Single storey rear extension; single storey front extension (following demolition of existing porch); relocation of front door entrance; demolition of three side chimney; increase roof ridge height; alterations to side fenestrations; alterations to side and rear roofs; alteration of roof from hip to gable ends; rear roof extension; installation of three rooflights to front roofslope; external alterations

Have your say

Your comment matters. Councils must consider every representation that raises material planning considerations.

Write a comment