← London Borough of Ealing

Status

Pending Consideration Change of use
Received
Last month
New homes
0

Full proposal

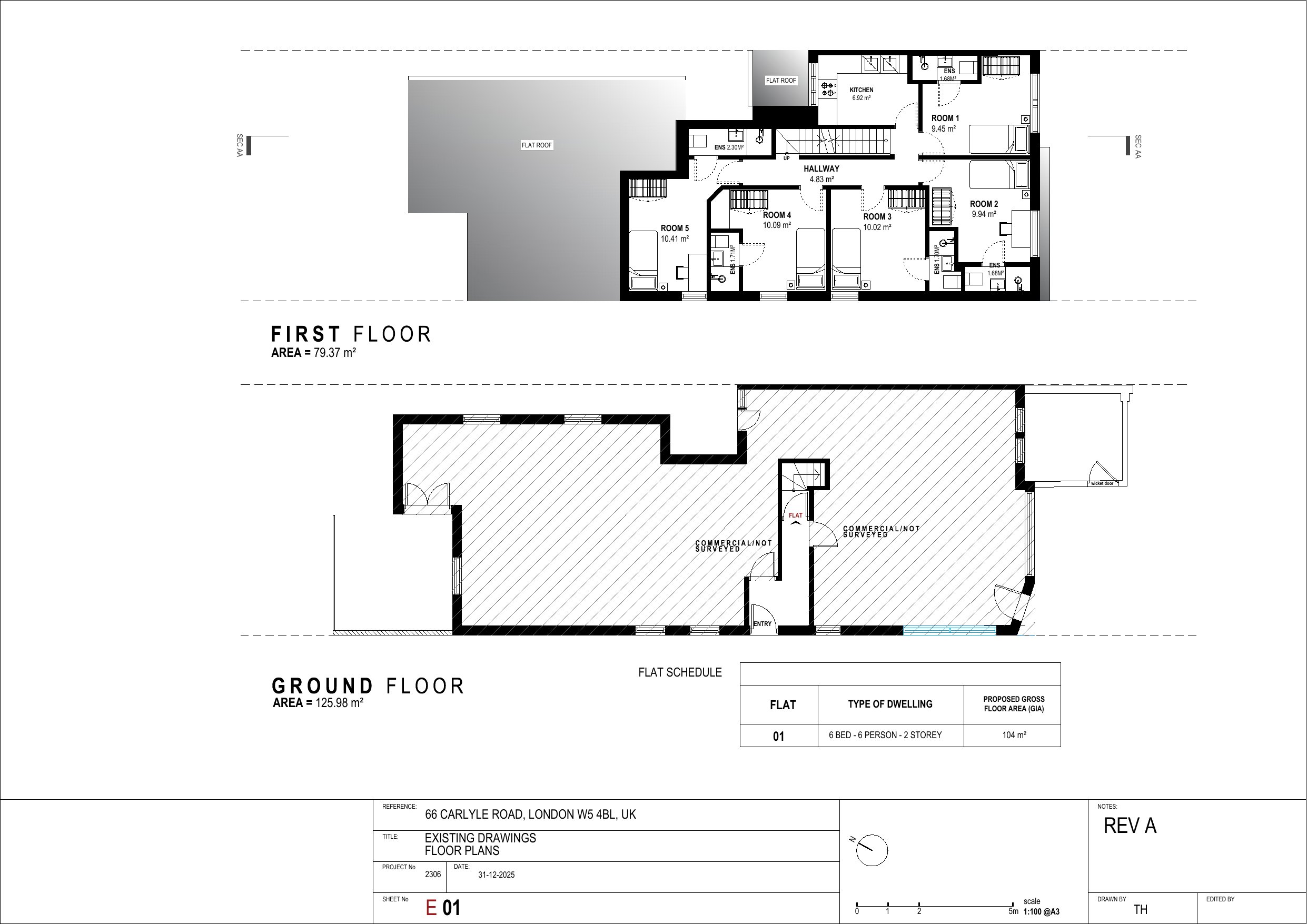
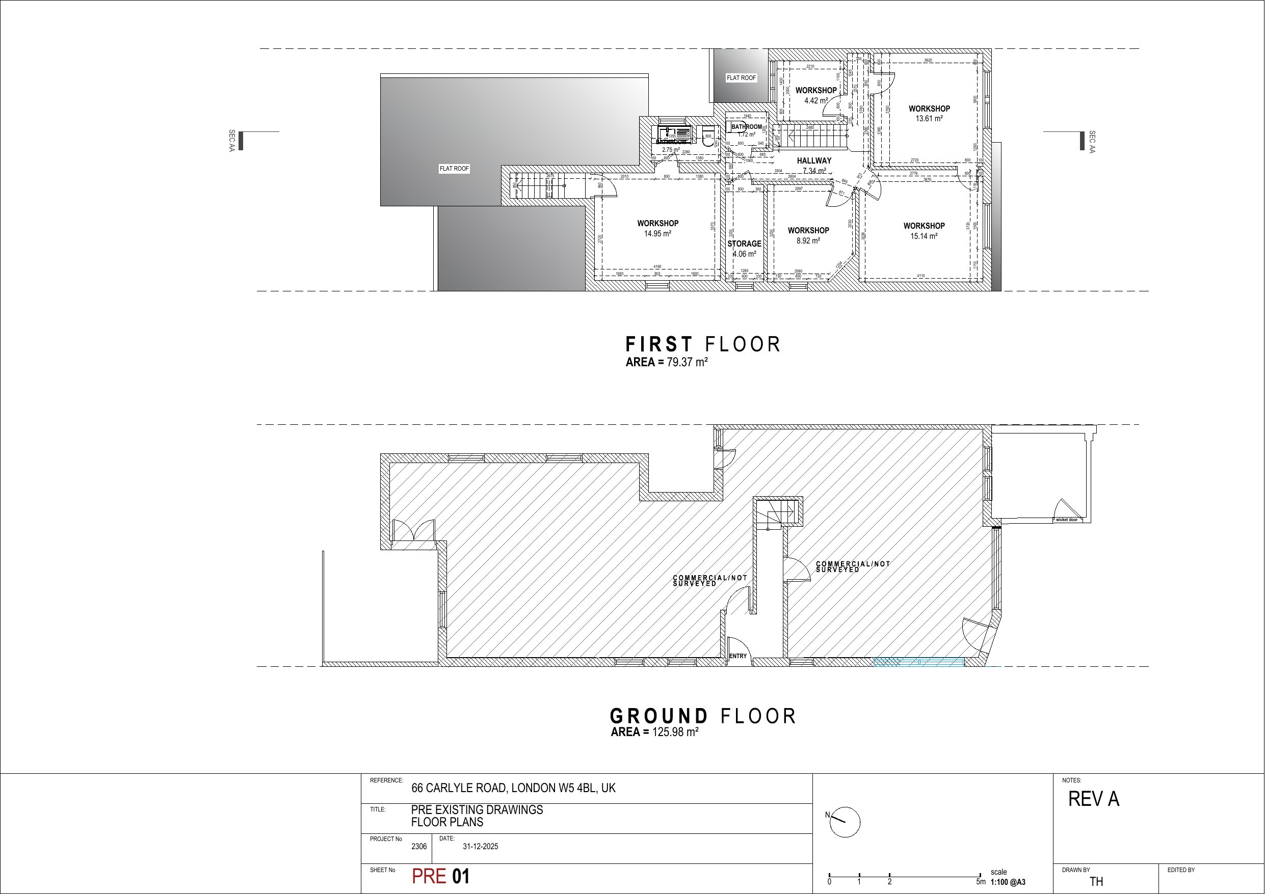
Change of use of a first floor and loft accommodation to a five-bedroom House in Multiple Occupation (Use Class C4); removal of existing first-floor rear projection; alterations to façade; installation of an access gate to an existing side boundary wall (from Junction Road); and provision of cycle parking, refuse and recycling storage (Part retrospective and part proposed)

Documents

Application Form - Without Personal Data
Archived · Original link
Drawing
Archived · Original link
Site Notice
Archived · Original link
Draw - Location Plan
Archived · Original link
Drawing
Archived · Original link
Drawing
Archived · Original link
Planning Statement
Archived · Original link

Have your say

Your comment matters. Councils must consider every representation that raises material planning considerations.

Write a comment