← London Borough of Ealing

Status

Pending Consideration House extension
Received
Last month
New homes
0

Full proposal

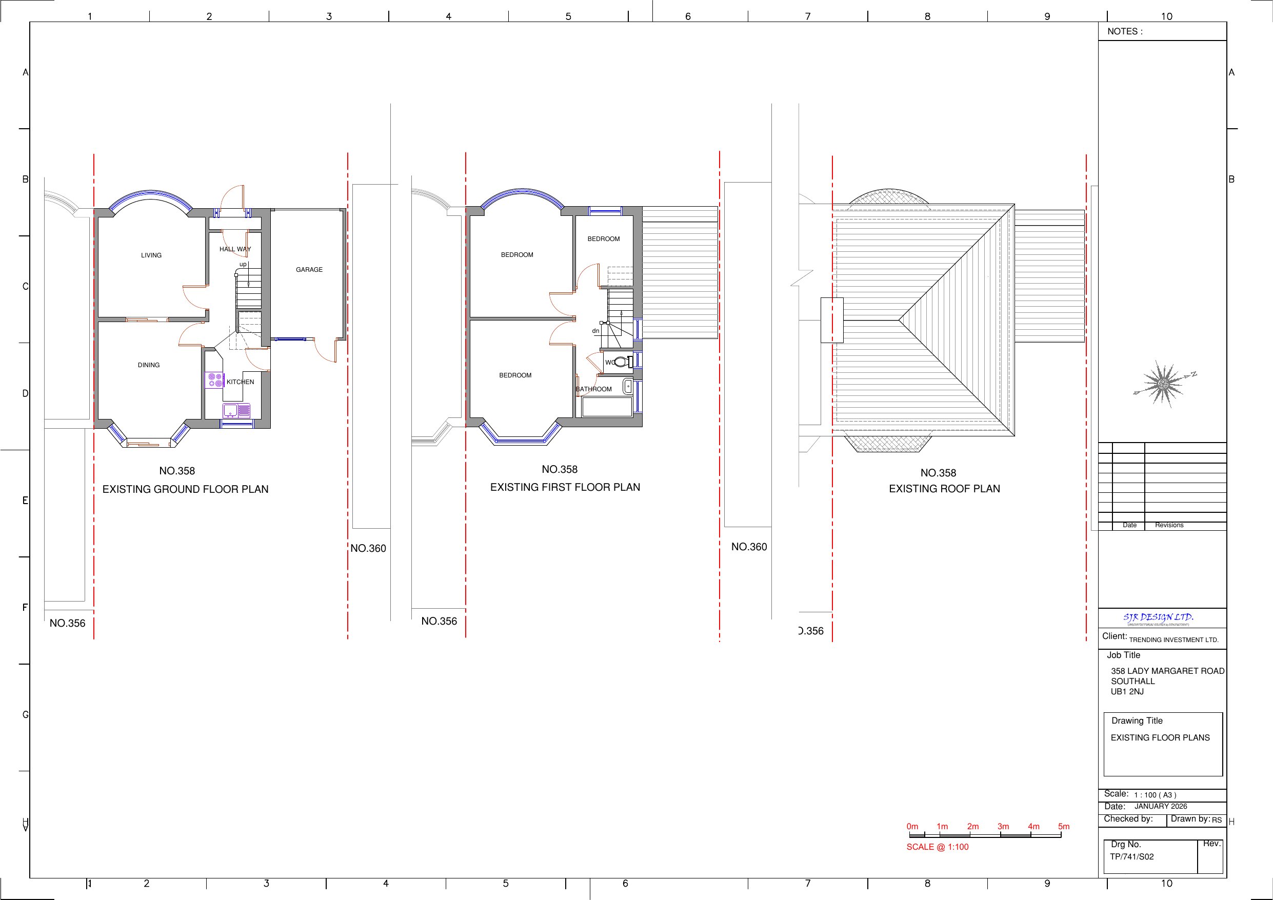
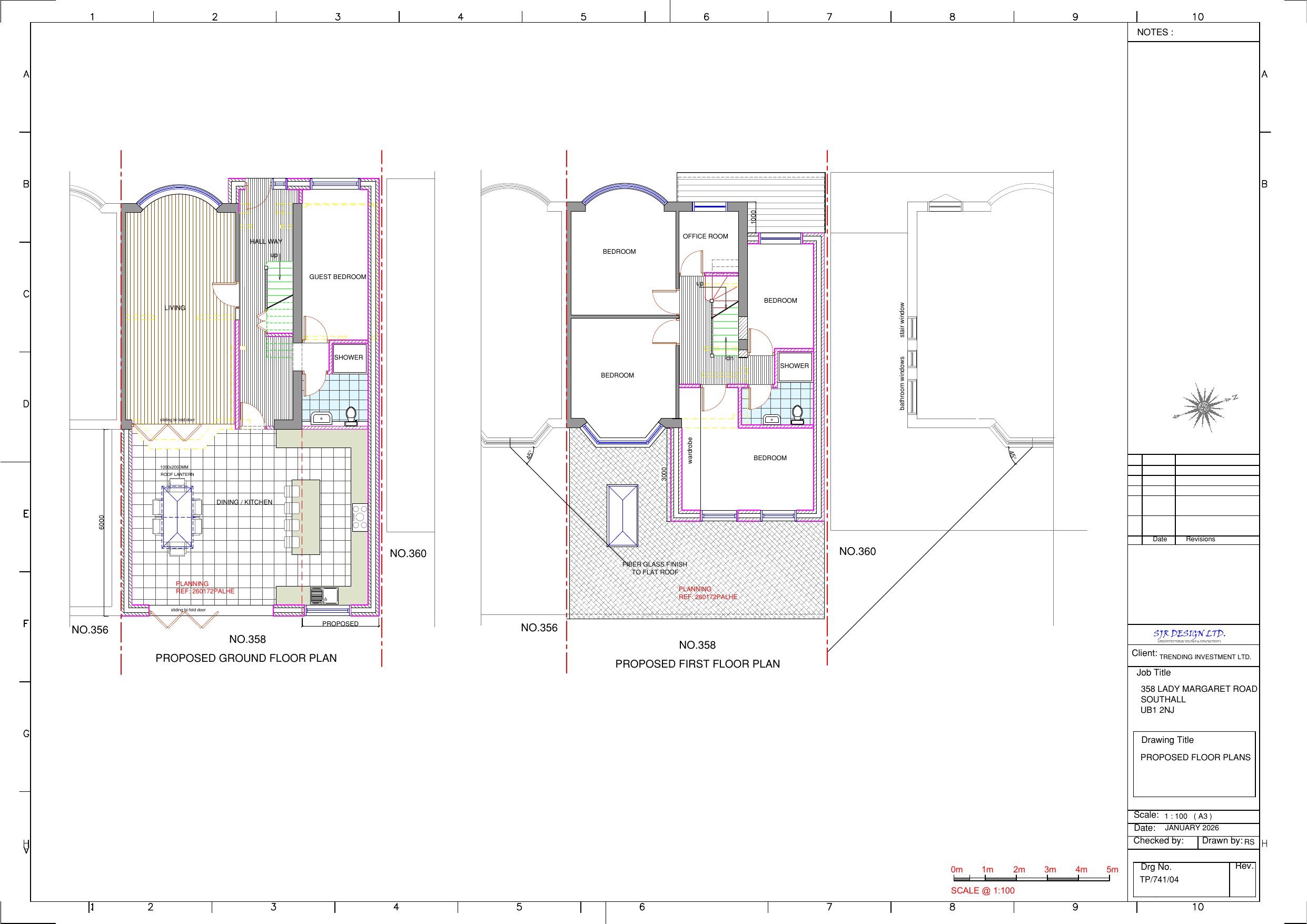
Front extension; two storey side extension (following demolition of existing garage); part single, part two storey side/rear extension; alteration of roof from hip to gable end; rear roof extension, and installation of three rooflights to front roofslope; alterations to front fenestrations

Documents

Site Notice
Archived · Original link
Application Form - Without Personal Data
Archived · Original link
Draw - Prop Roof Plan
Archived · Original link
Fire Statement
Archived · Original link
Flood Risk Assessment
Archived · Original link
Site Notice
Archived · Original link
Design and Access Statement
Archived · Original link

Have your say

Your comment matters. Councils must consider every representation that raises material planning considerations.

Write a comment