← London Borough of Ealing

Status

Pending Consideration House extension
Received
Last month
New homes
0

Full proposal

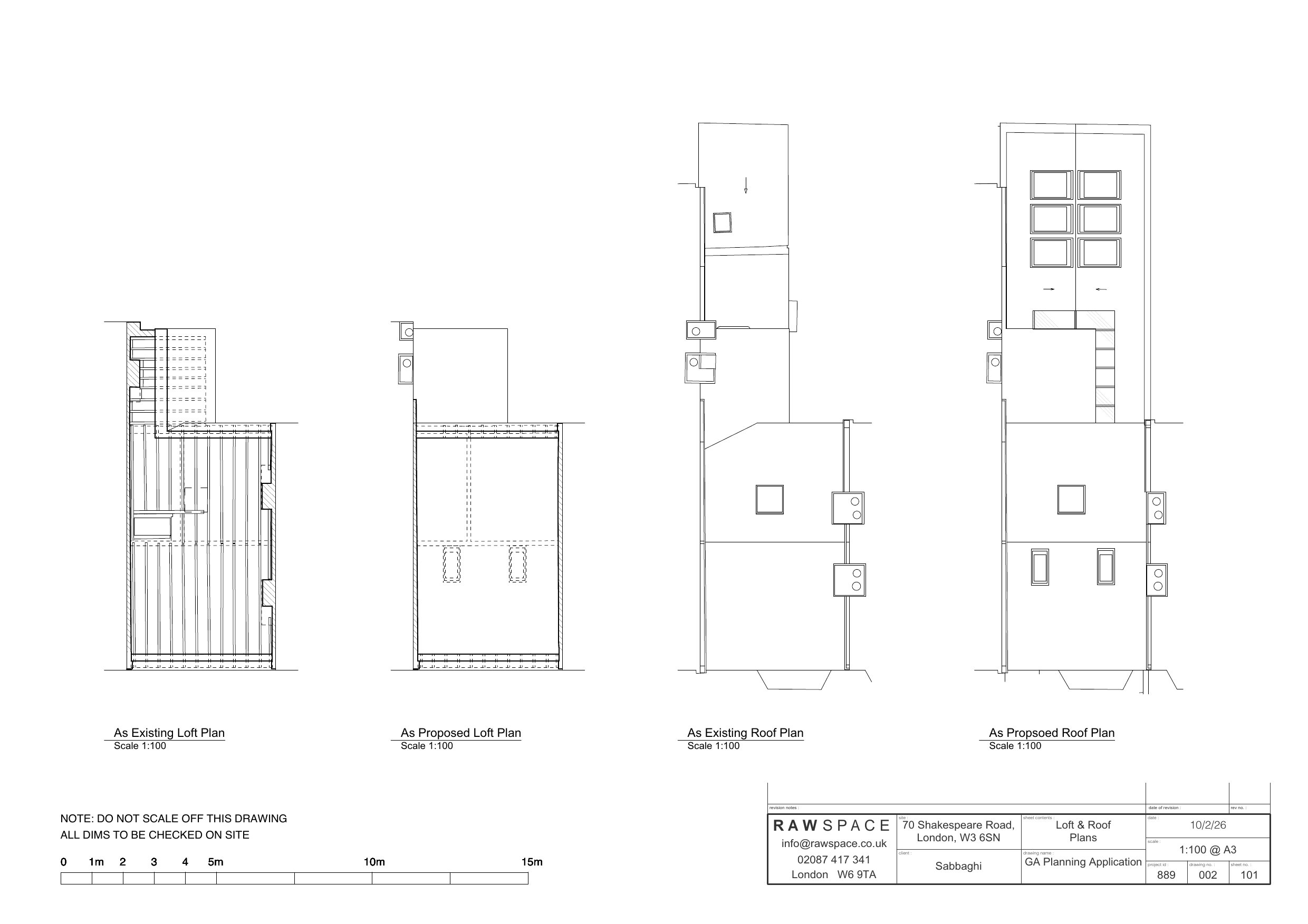
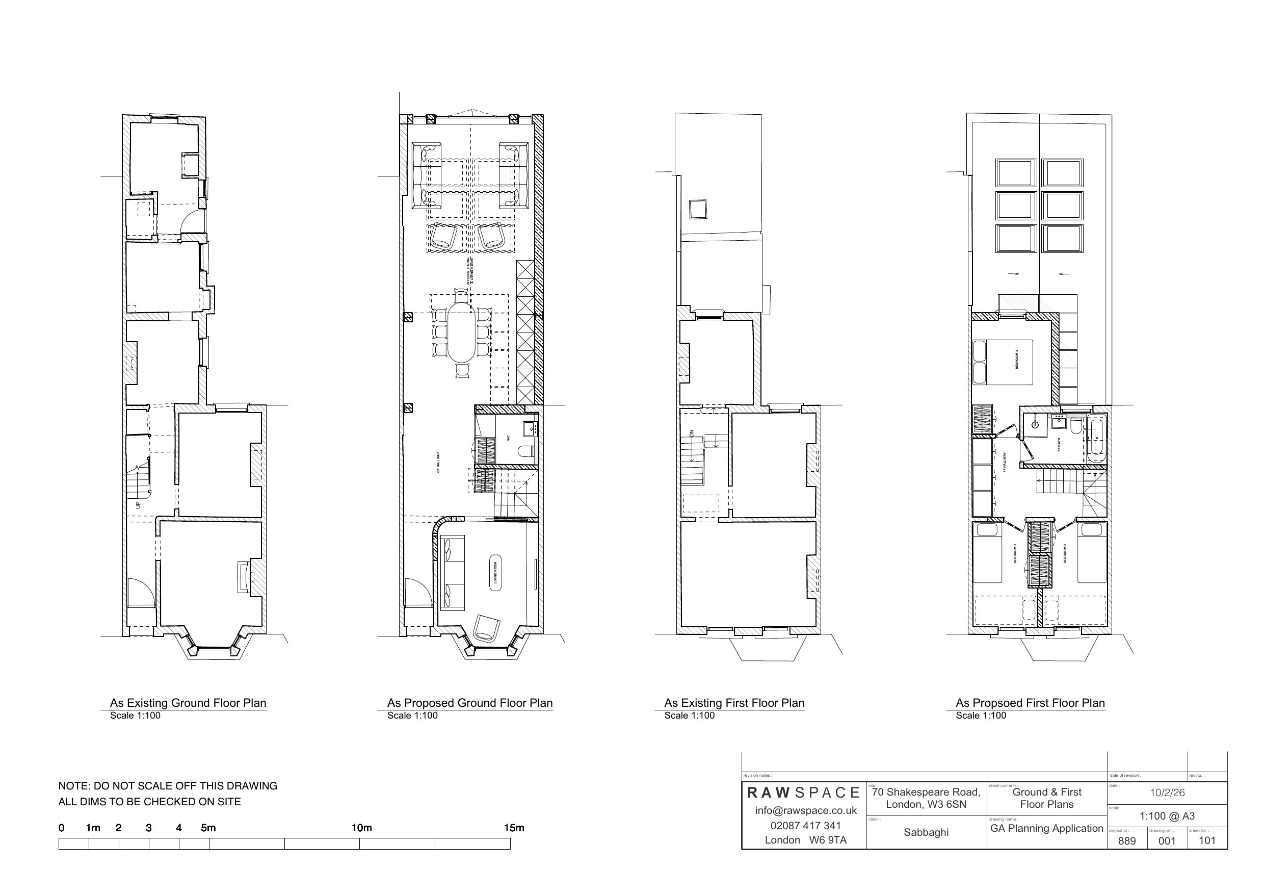
Single storey side/rear extension (following demolition of existing rear extension); first floor rear outrigger roof extension (demolition of first floor rear outrigger); installation of two rooflights to front roofslope; removal of chimney breast; internal alterations

Documents

Site Notice
Archived · Original link
Application Form - Without Personal Data
Archived · Original link
Drawing
Archived · Original link
Fire Statement
Archived · Original link
Flood Risk Assessment
Archived · Original link
Drawing
Archived · Original link
Site Notice
Archived · Original link
Draw - Exist Site/Block Plan
Archived · Original link

Have your say

Your comment matters. Councils must consider every representation that raises material planning considerations.

Write a comment