← London Borough of Ealing

Status

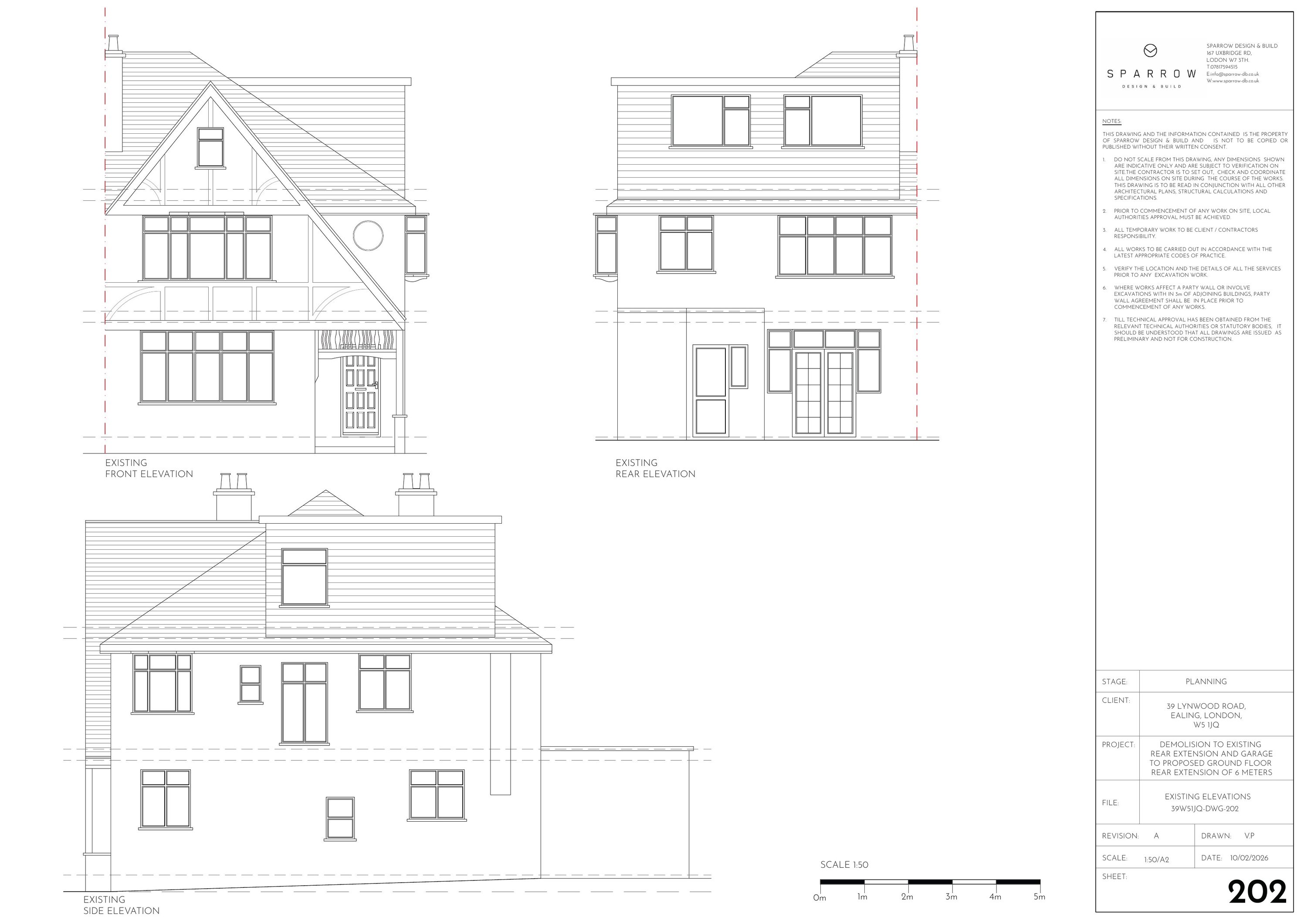
Pending Consideration House extension
Received
Last month
New homes
0

Full proposal

Single storey rear extension (following demolition of existing rear extension and garage); replacement of windows; removal of internal chimneys

Documents

Site Notice
Archived · Original link
Site Notice
Archived · Original link
Application Form - Without Personal Data
Archived · Original link
Site Notice
Archived · Original link
Drawing
Archived · Original link
Tree Survey
Archived · Original link

Have your say

Your comment matters. Councils must consider every representation that raises material planning considerations.

Write a comment