← London Borough of Ealing

Status

Pending Consideration House extension
Received
Last month
New homes
0

Full proposal

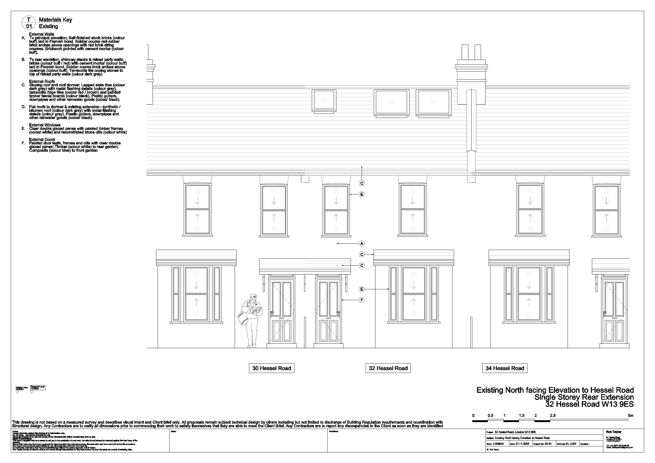
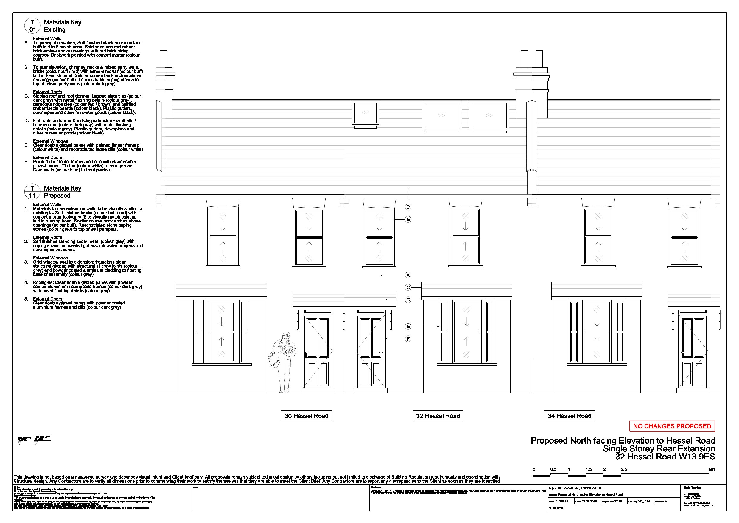
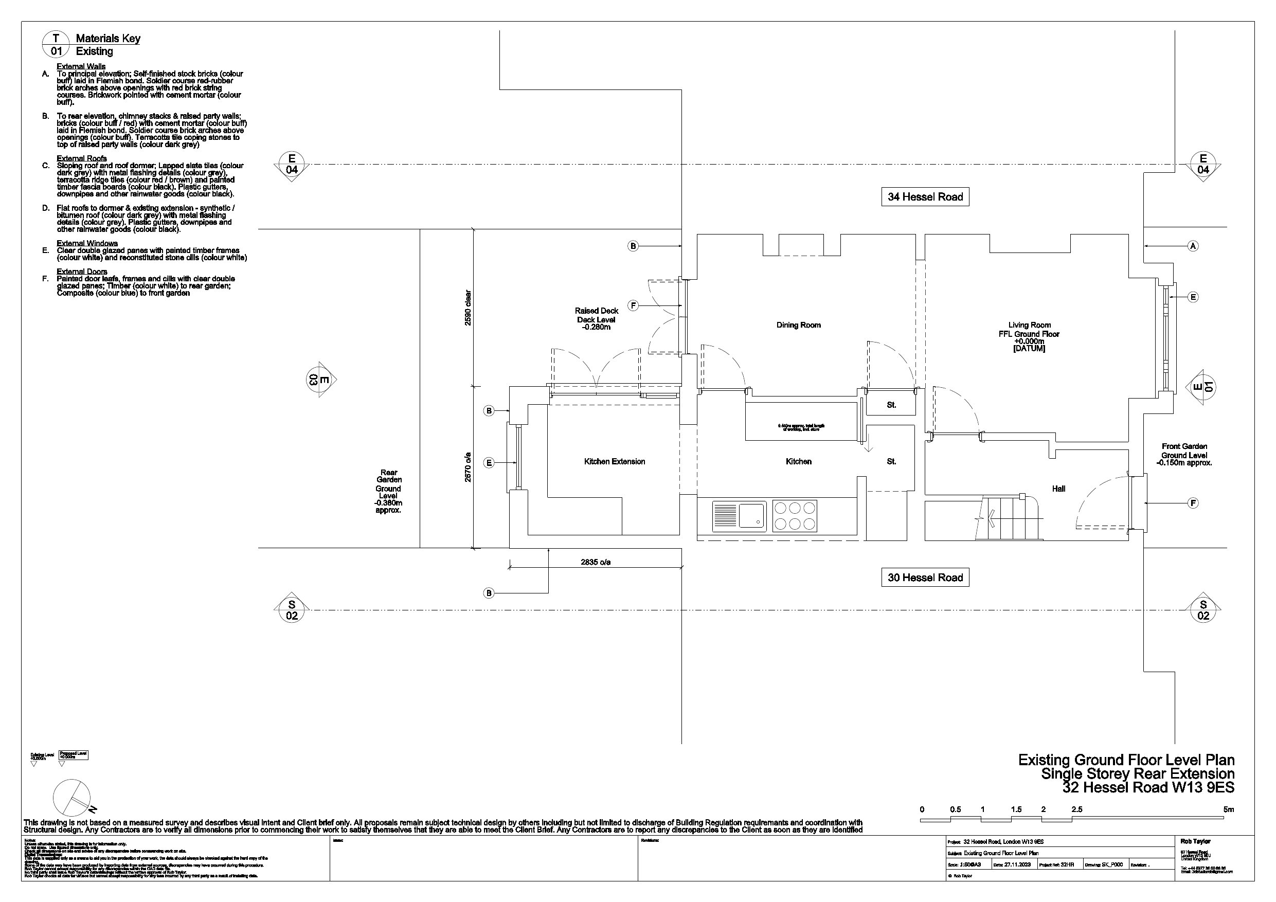
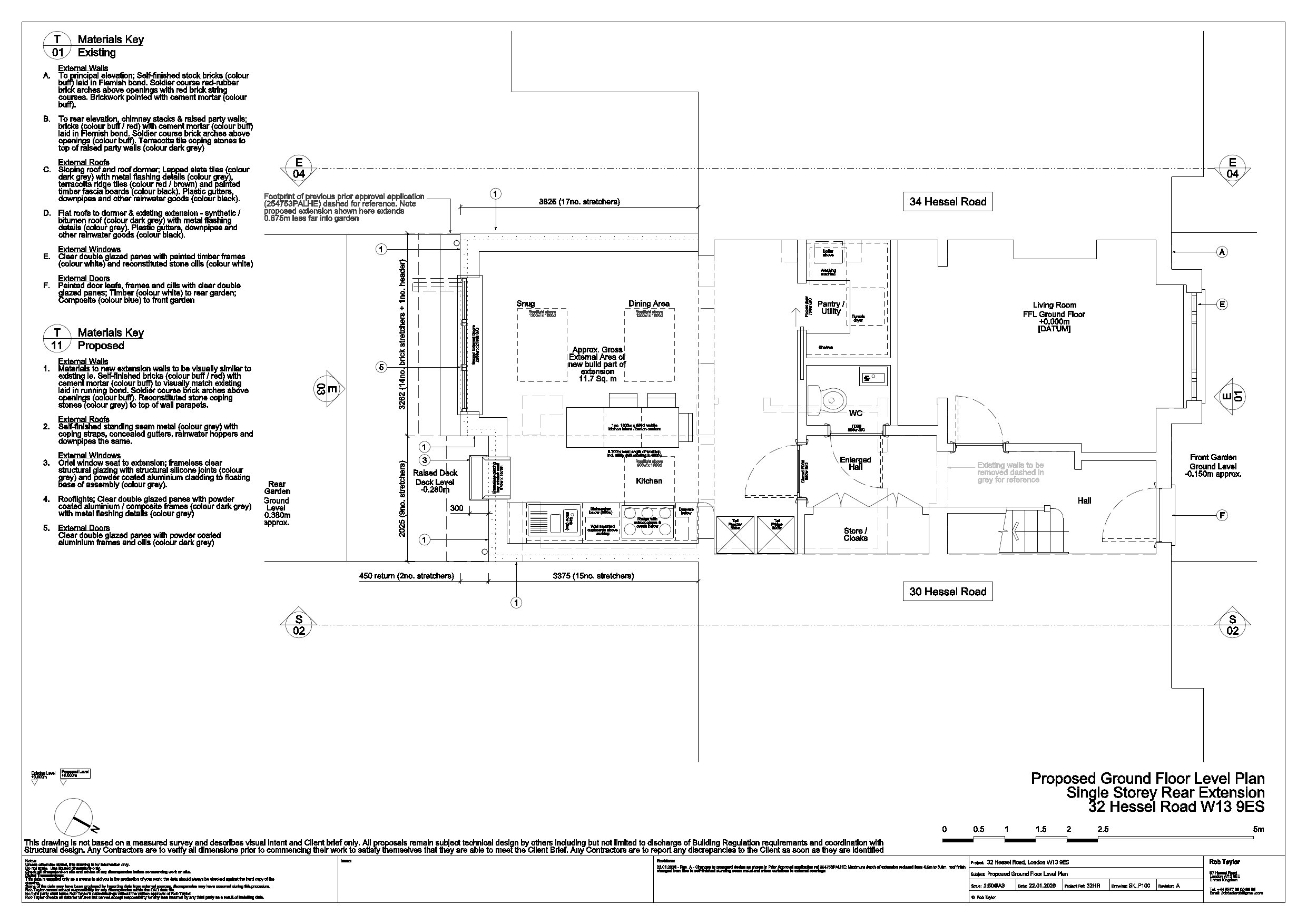
Single storey rear extension (following demolition of existing rear extension)

Documents

Draw - Location Plan
Archived · Original link
Draw - Exist Site/Block Plan
Archived · Original link
Design and Access Statement
Archived · Original link
Application Form - Without Personal Data
Archived · Original link
Site Notice
Archived · Original link

Have your say

Your comment matters. Councils must consider every representation that raises material planning considerations.

Write a comment