← London Borough of Ealing

Status

Pending Consideration Other
Received
Last month
New homes
0

Full proposal

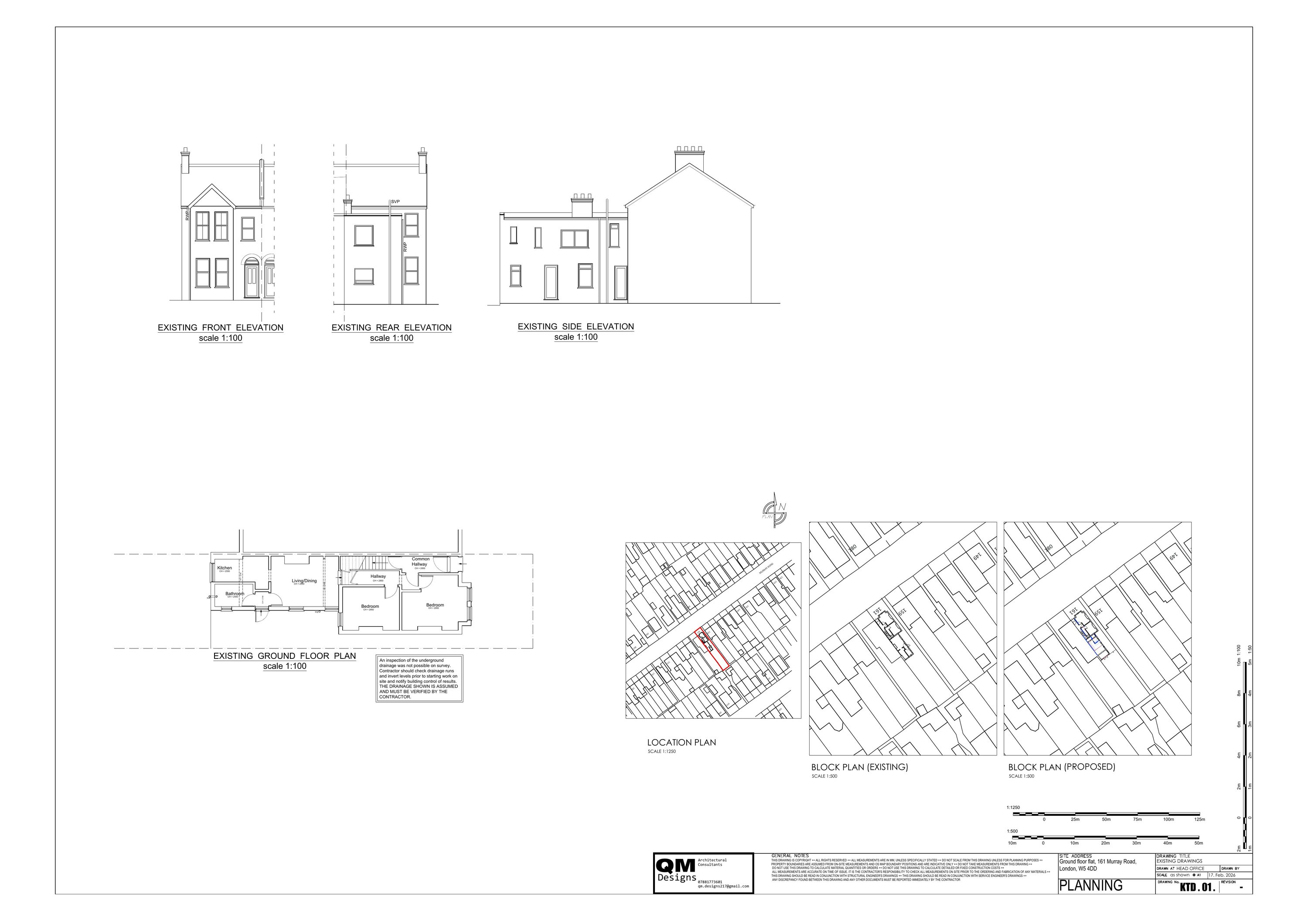
Alterations to rear and side fenestrations; internal alterations to the existing flat including reconfiguration of internal layout

Documents

Site Notice
Archived · Original link
Application Form - Without Personal Data
Archived · Original link
Drawing
Archived · Original link
Site Notice
Archived · Original link
Drawing
Archived · Original link

Have your say

Your comment matters. Councils must consider every representation that raises material planning considerations.

Write a comment