← London Borough of Ealing

Status

Pending Consideration House extension
Received
Last month
New homes
0

Full proposal

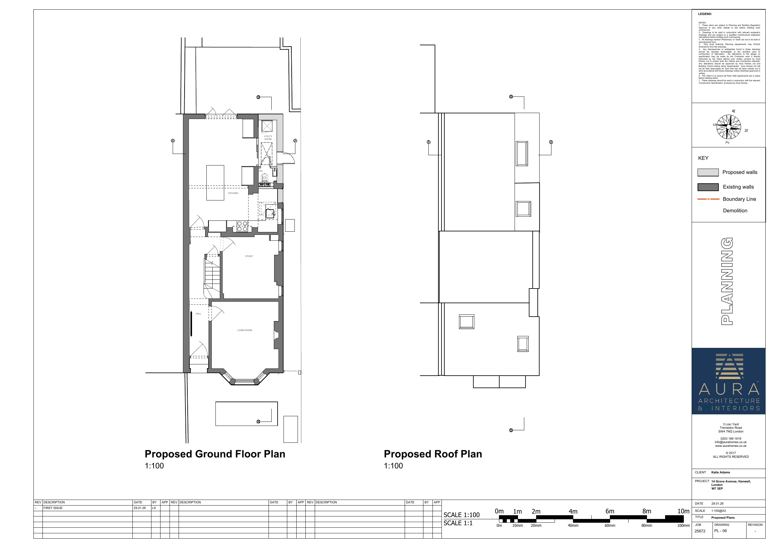
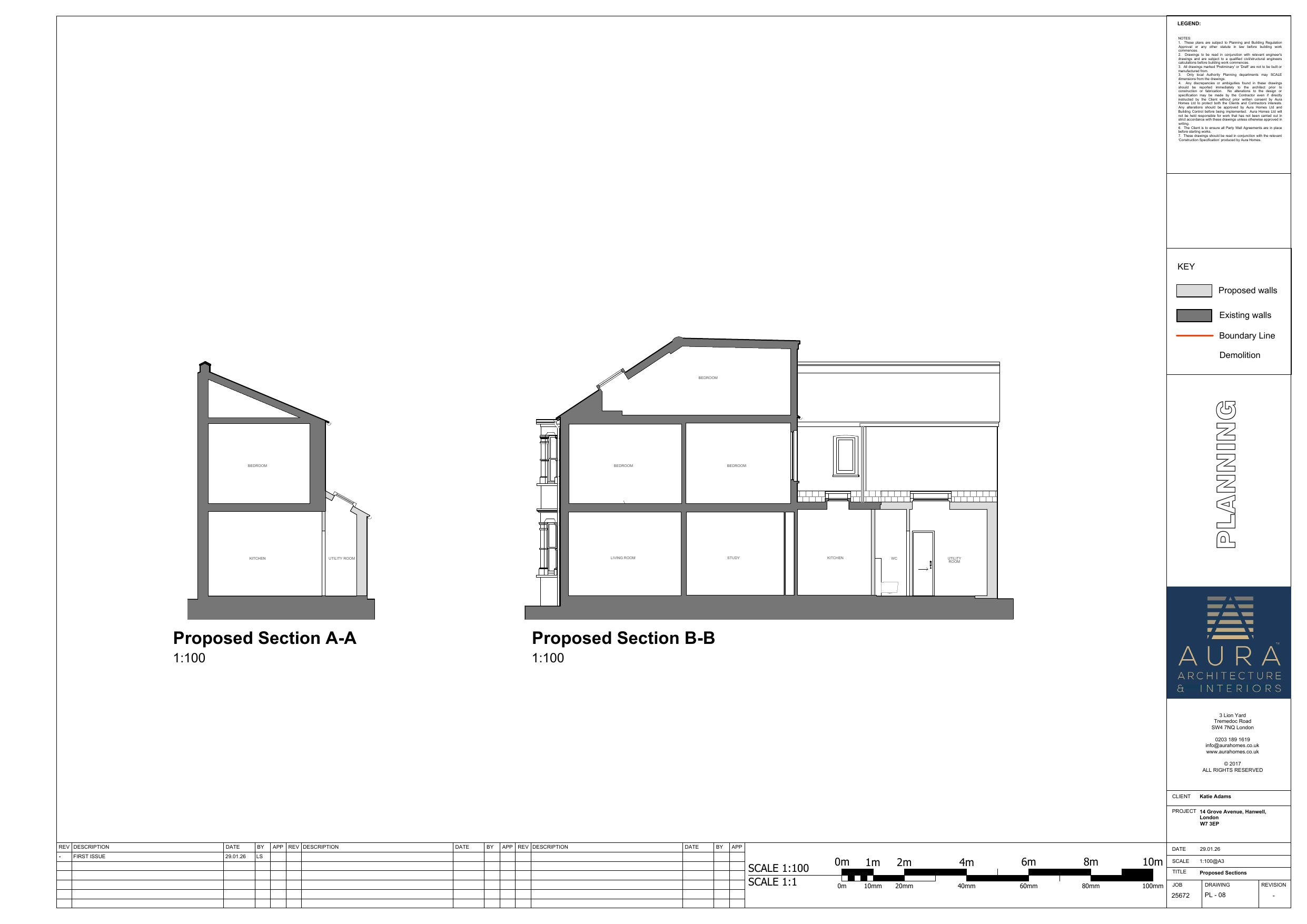
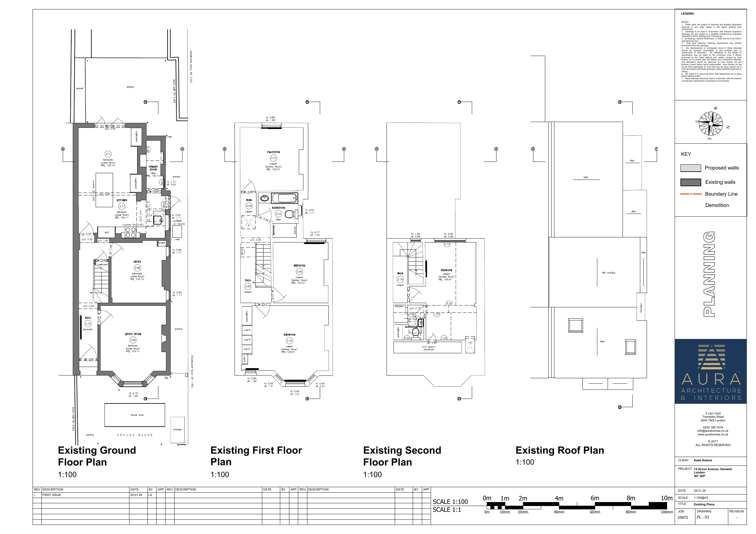
Side extension to existing to extend line with the back of existing building, Repositioning existing side door access (following demolition of existing)

Documents

Application Form - Without Personal Data
Archived · Original link
Site Notice
Archived · Original link
Site Notice
Archived · Original link
Draw - Location Plan
Archived · Original link
Draw - Exist Site/Block Plan
Archived · Original link
Drawing
Archived · Original link
Draw - Exist Section
Archived · Original link
Drawing
Archived · Original link
Draw - Prop Section
Archived · Original link

Have your say

Your comment matters. Councils must consider every representation that raises material planning considerations.

Write a comment