← London Borough of Ealing

Status

Pending Consideration House extension
Received
Last month
New homes
0

Full proposal

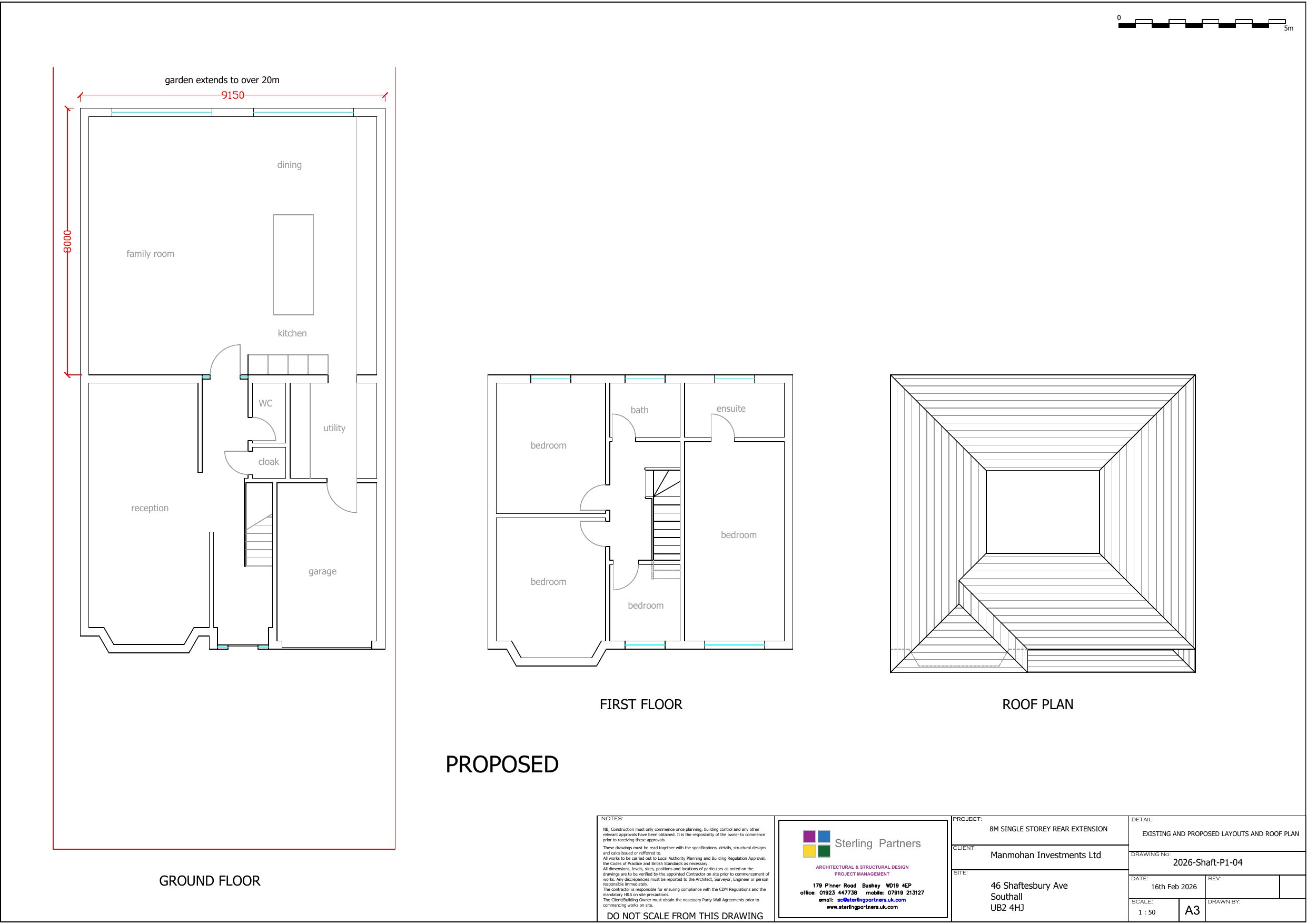
Single storey (max 8.00m deep and max 3.00 high) rear extension (following demolition of existing rear extension) (42 Days Prior Approval Notification Process)

Documents

Application Form - Without Personal Data
Archived · Original link
Draw - Exist Site / Block Plan
Archived · Original link
Draw - Mixed/Combined Plans
Archived · Original link
Draw - Mixed/Combined Plans
Archived · Original link
Draw - Location Plan
Archived · Original link

Have your say

Your comment matters. Councils must consider every representation that raises material planning considerations.

Write a comment