← London Borough of Ealing

Status

Pending Consideration House extension
Received
Last month
New homes
0

Full proposal

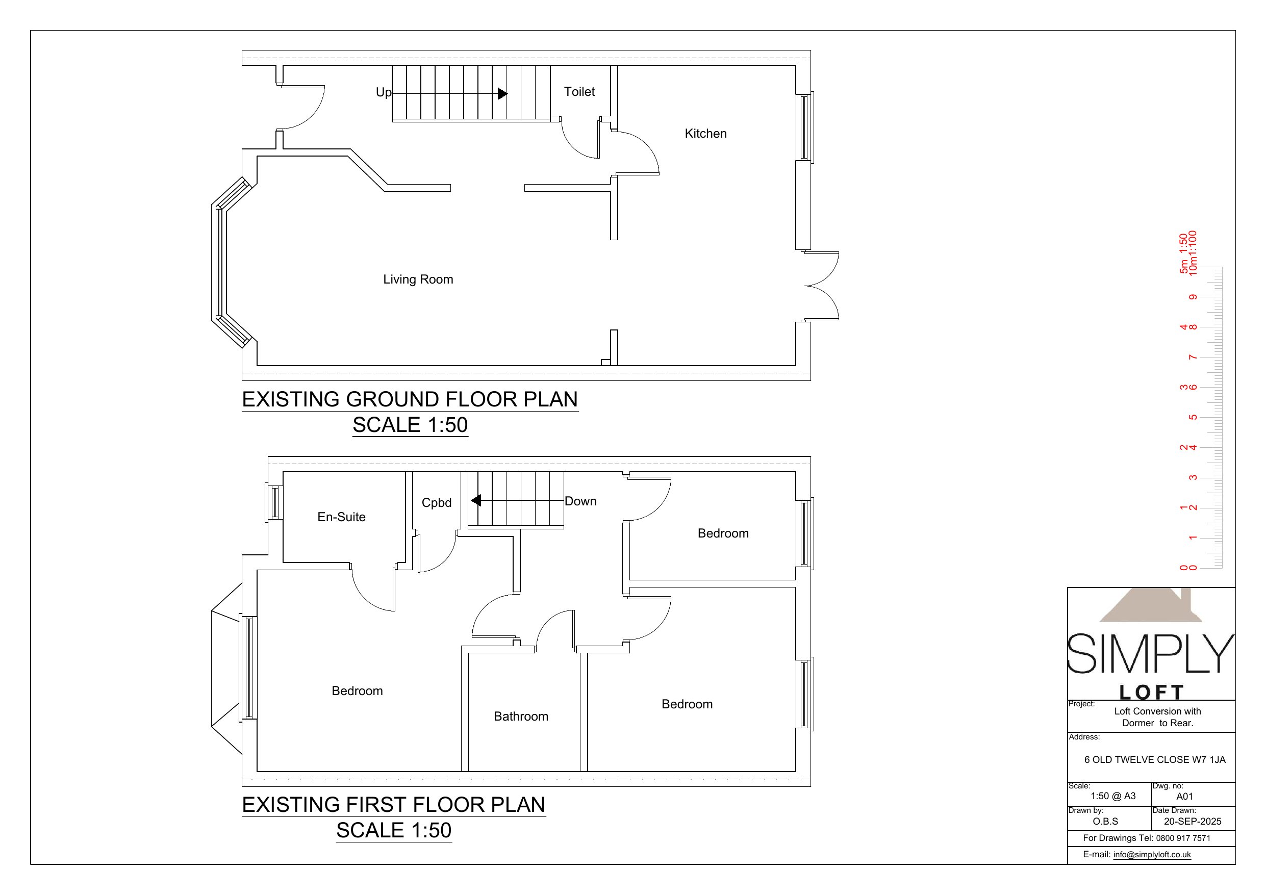
Alteration of roof from hip to gable end; rear dormer roof extension (involving conversion of roofspace to habitable use), alterations to side elevation fenestration and installation of three rooflights to front roofslope

Documents

Application Form - Without Personal Data
Archived · Original link
Draw - Mixed/Combined Plans
Archived · Original link
Fire Statement
Archived · Original link
Draw - Location Plan
Archived · Original link
Draw - Exist Site / Block Plan
Archived · Original link
Site Notice
Archived · Original link
Photo
Archived · Original link

Have your say

Your comment matters. Councils must consider every representation that raises material planning considerations.

Write a comment