← London Borough of Ealing

Status

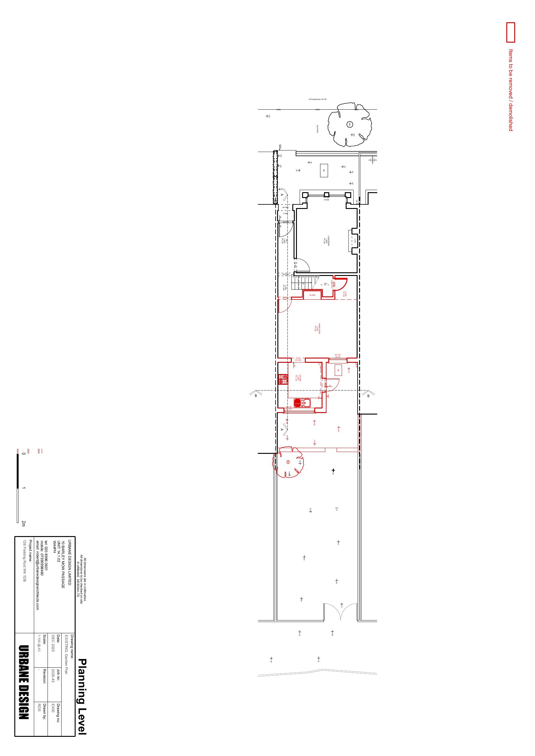
Pending Consideration House extension
Received
Last month
New homes
0

Full proposal

Single storey rear extension; associated internal and external alterations including alterations to rear fenestration (following demolition of existing structure)

Documents

Application Form - Without Personal Data
Archived · Original link
Design and Access Statement
Archived · Original link
Draw - Mixed/Combined Plans
Archived · Original link
Draw - Location Plan
Archived · Original link
Site Notice
Archived · Original link

Have your say

Your comment matters. Councils must consider every representation that raises material planning considerations.

Write a comment