← London Borough of Ealing

Status

Pending Consideration House extension
Received
Last month
New homes
0

Full proposal

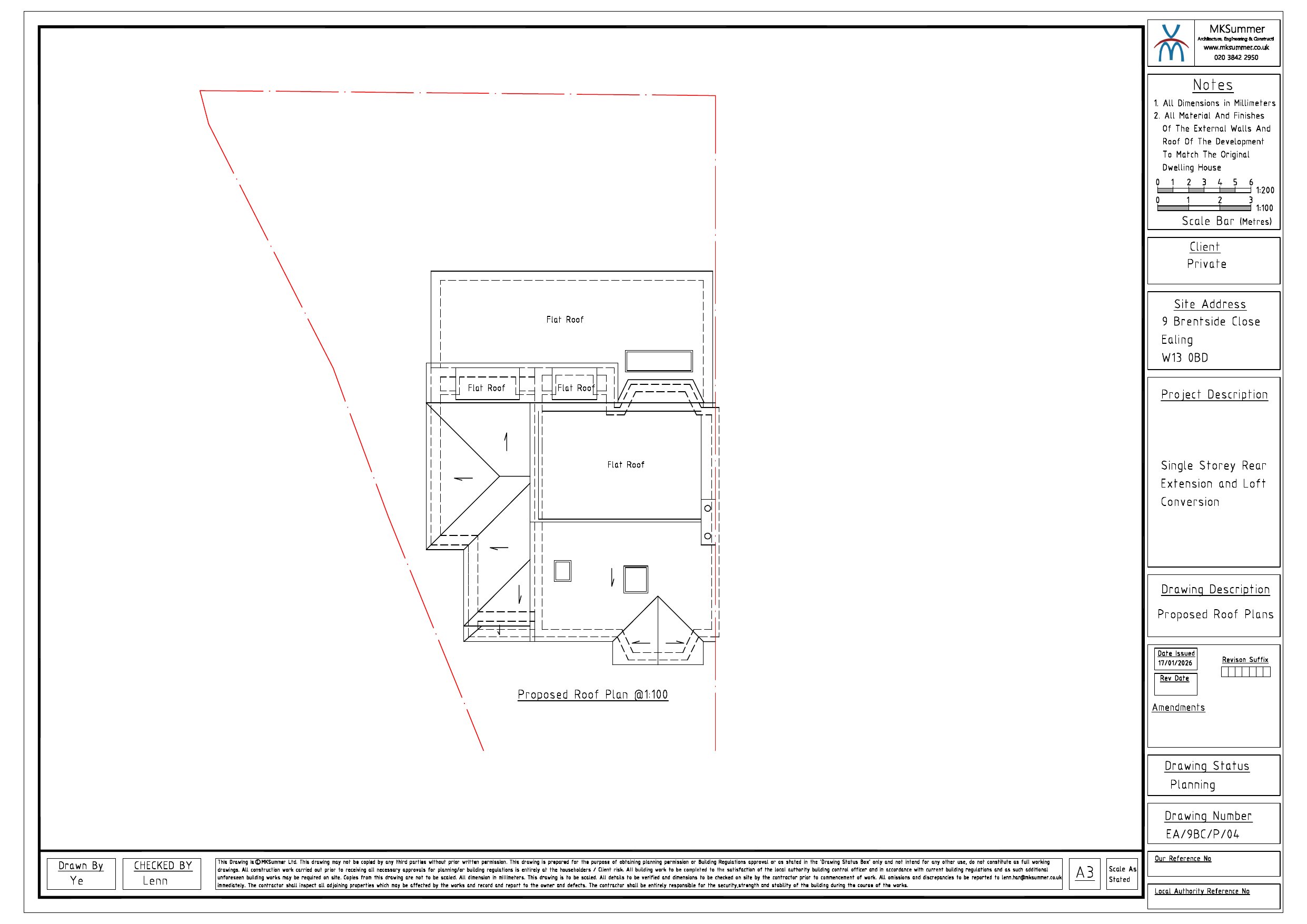
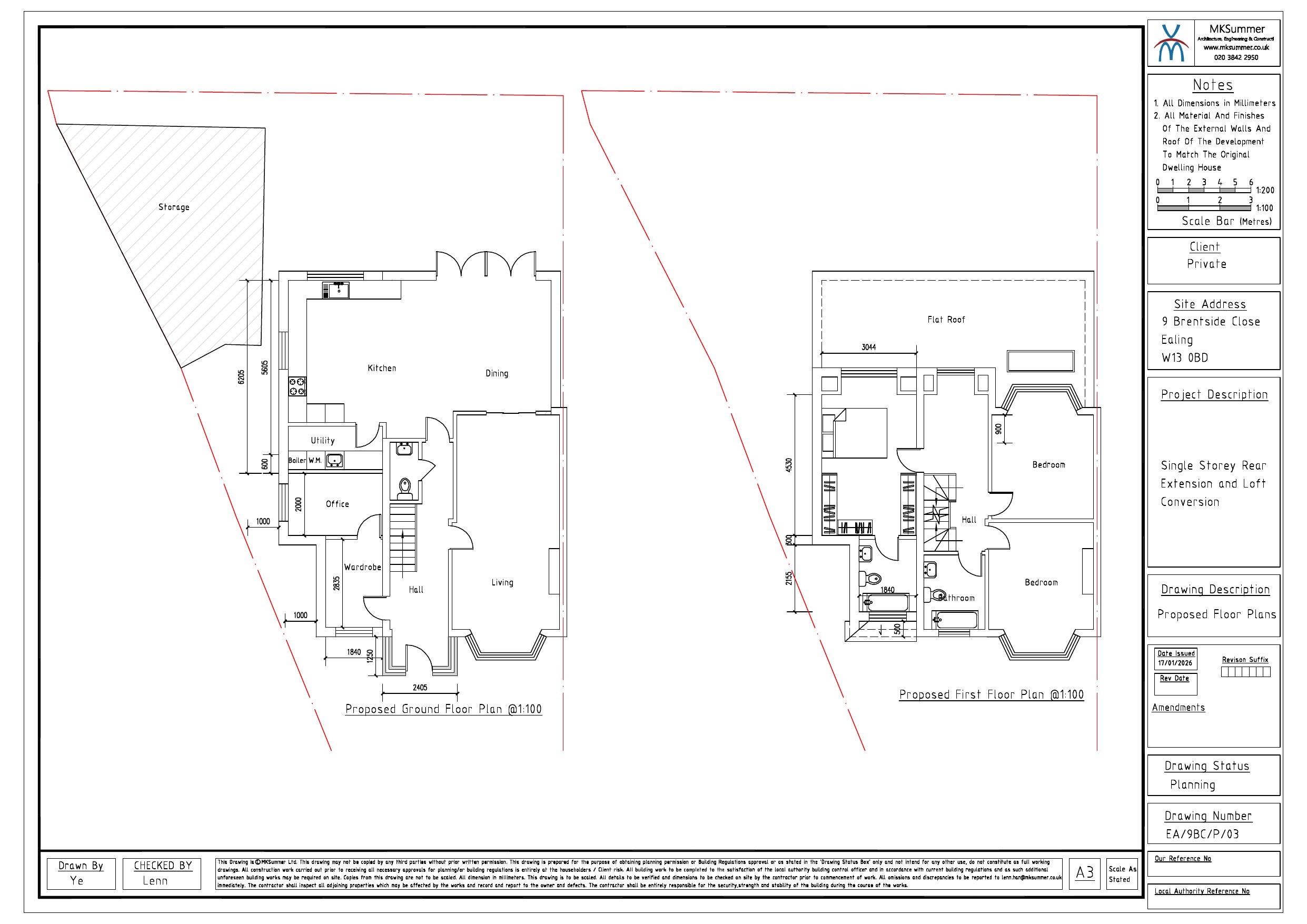
Part single; part two storey side extension; single storey rear extension; insertion of additional windows to rear elevation first floor level; front porch extension; alterations to fenestration (following partial demolition of existing rear addition)

Documents

Application Form - Without Personal Data
Archived · Original link
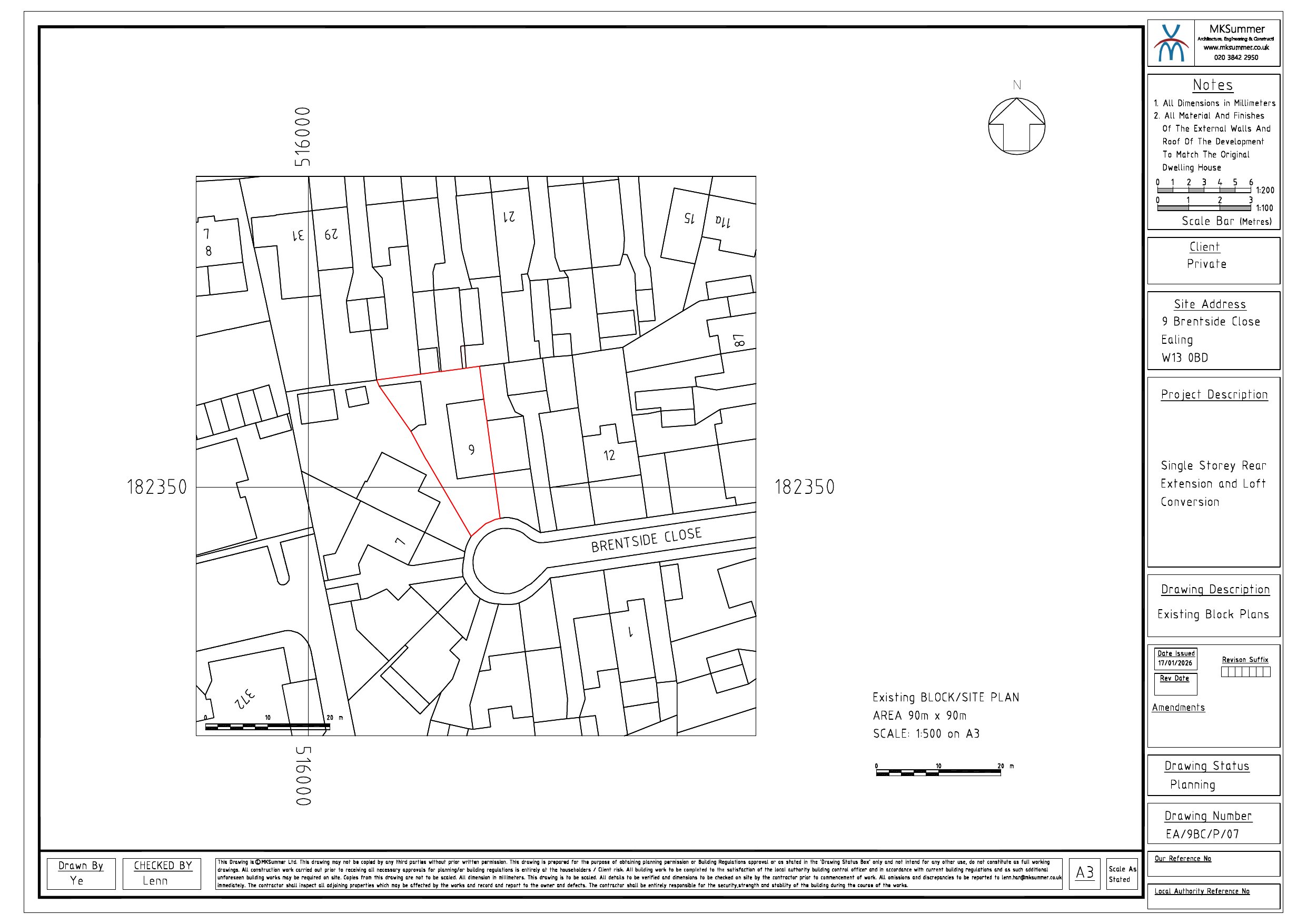
Draw - Exist Site/Block Plan
Archived · Original link
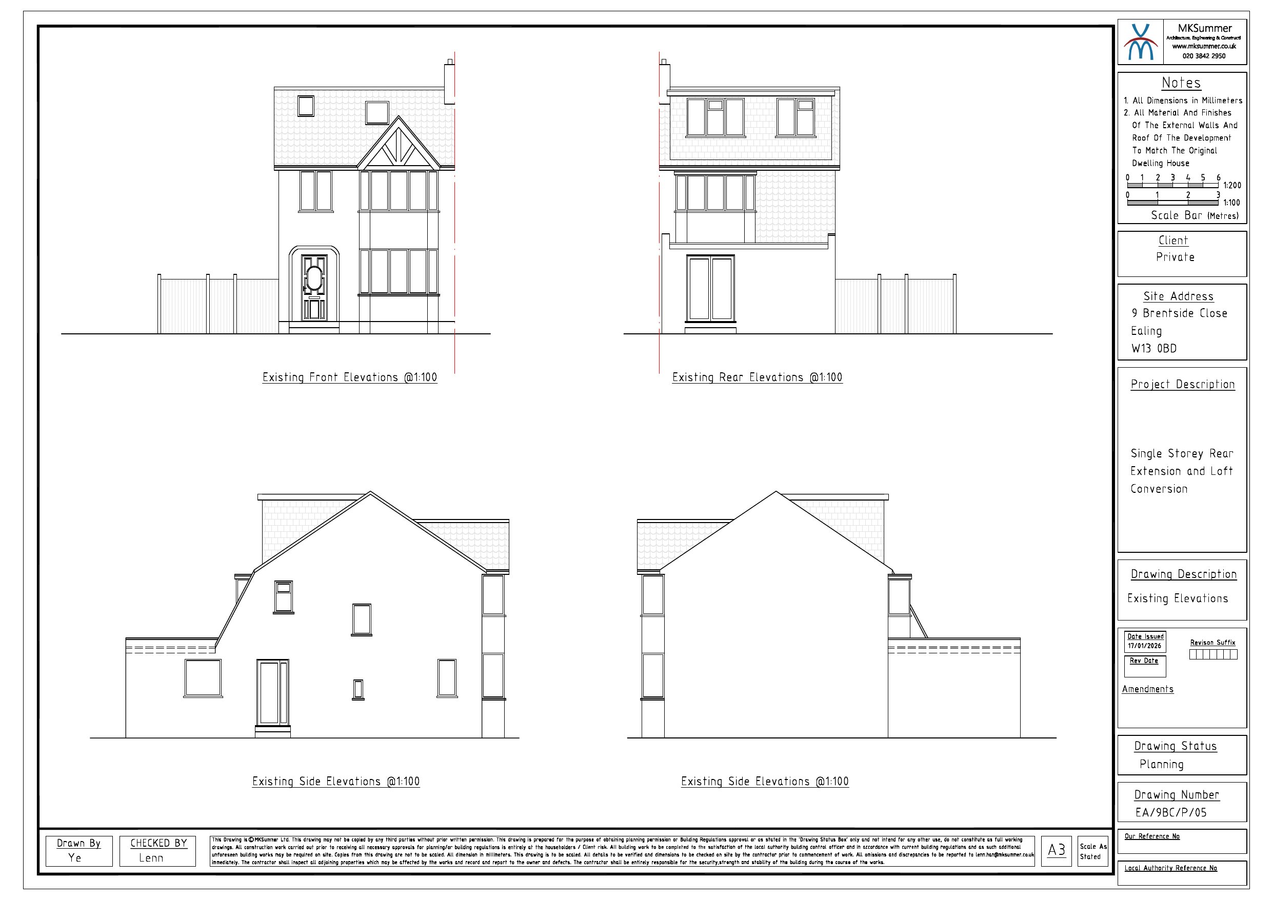
Draw - Exist Elevations
Archived · Original link
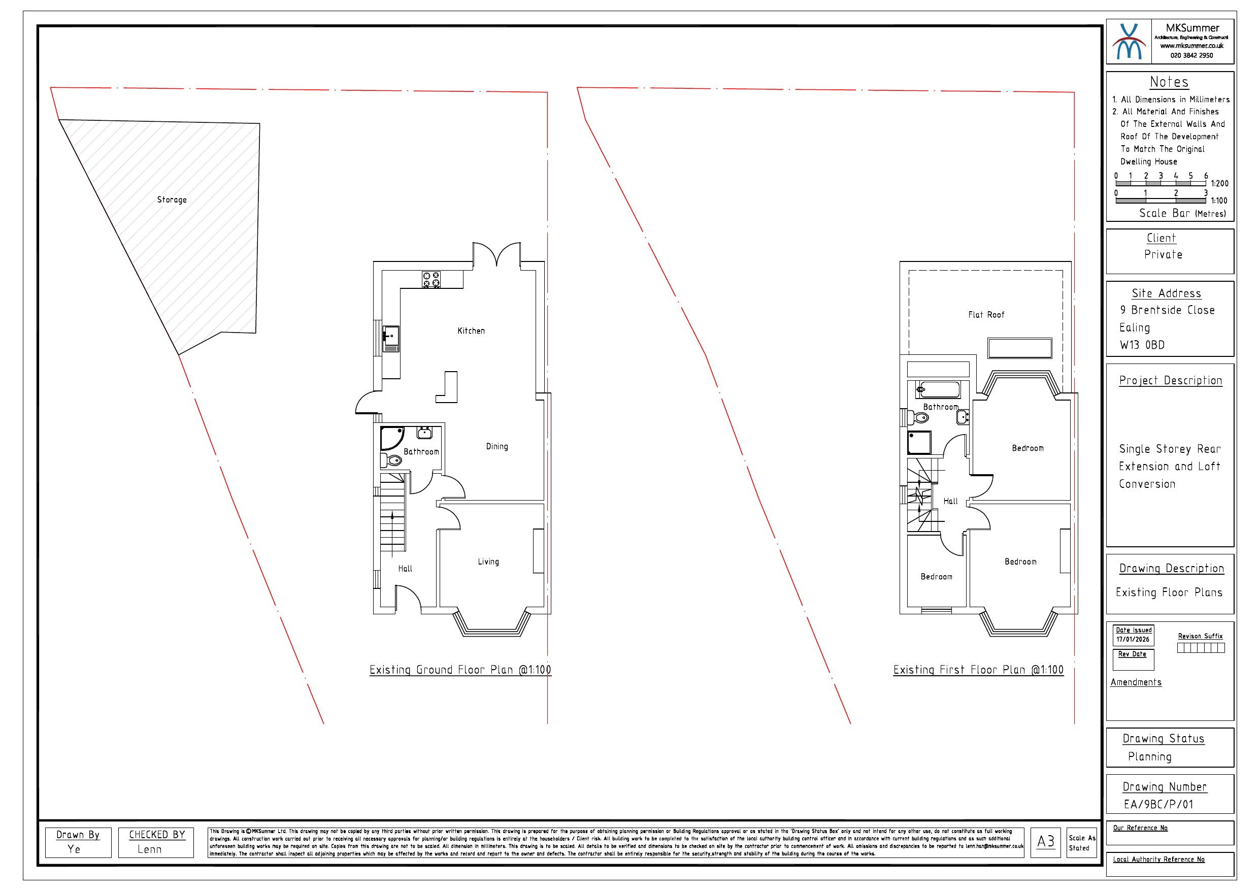
Draw - Exist Floor Plan
Archived · Original link
Draw - Exist Roof Plan
Archived · Original link
Fire Statement
Archived · Original link
Draw - Location Plan
Archived · Original link
Site Notice
Archived · Original link
Draw - Exist Site/Block Plan
Archived · Original link
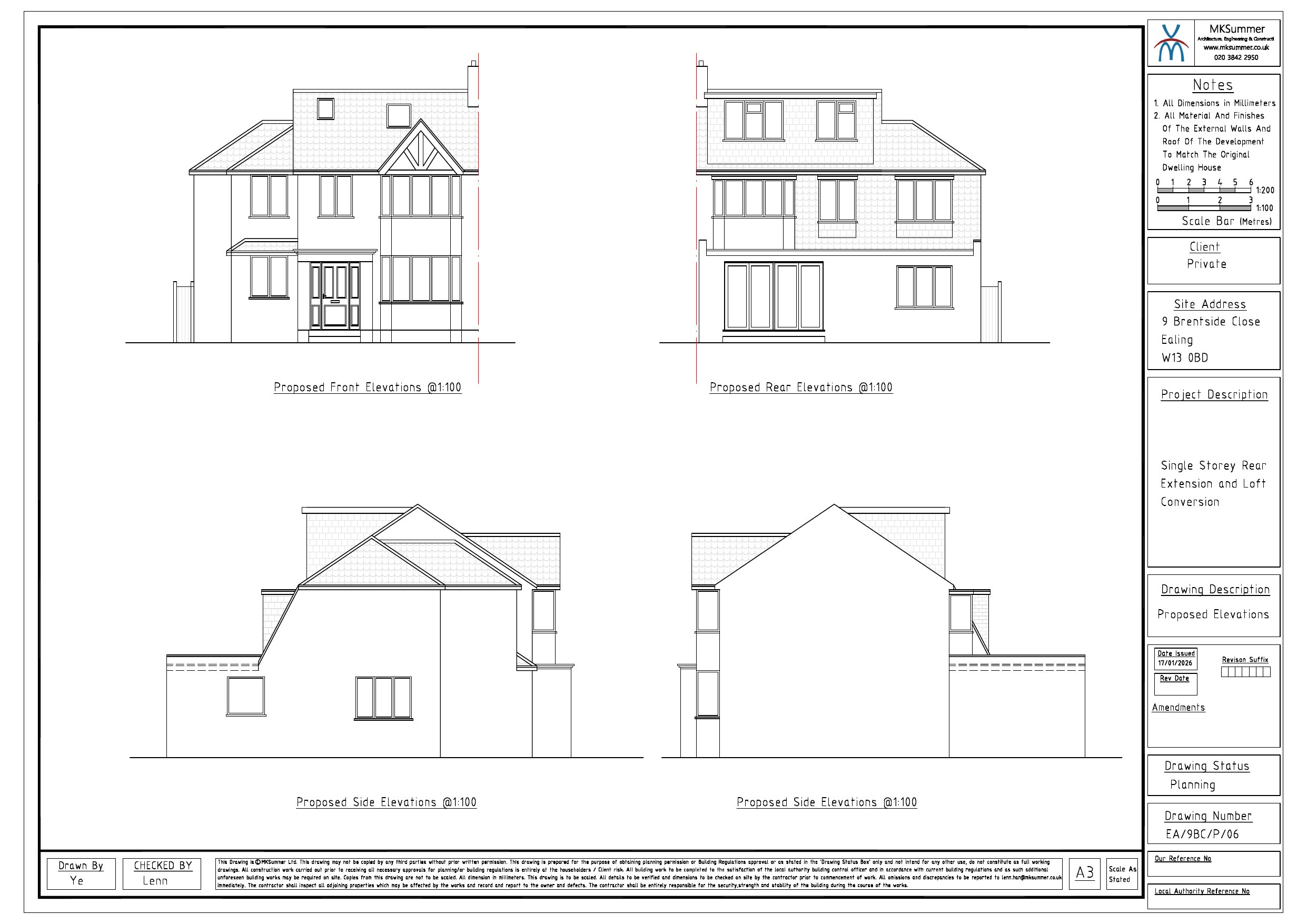
Draw - Prop Elevations
Archived · Original link
Draw - Prop Floor Plan
Archived · Original link
Draw - Prop Roof Plan
Archived · Original link

Have your say

Your comment matters. Councils must consider every representation that raises material planning considerations.

Write a comment