← London Borough of Ealing

Status

Pending Consideration House extension
Received
Last month
New homes
0

Full proposal

Installation of timber cladding to the rear elevation of the existing dwelling (to first floor level). Installation of an open slatted timber pergola/solar-shading structure within the rear garden, with a maximum height of 3.0m measured from natural ground level.

Documents

Application Form - Without Personal Data
Archived · Original link
Site Notice
Archived · Original link
Site Notice
Archived · Original link
Draw - Location Plan
Archived · Original link
Draw - Exist Site/Block Plan
Archived · Original link
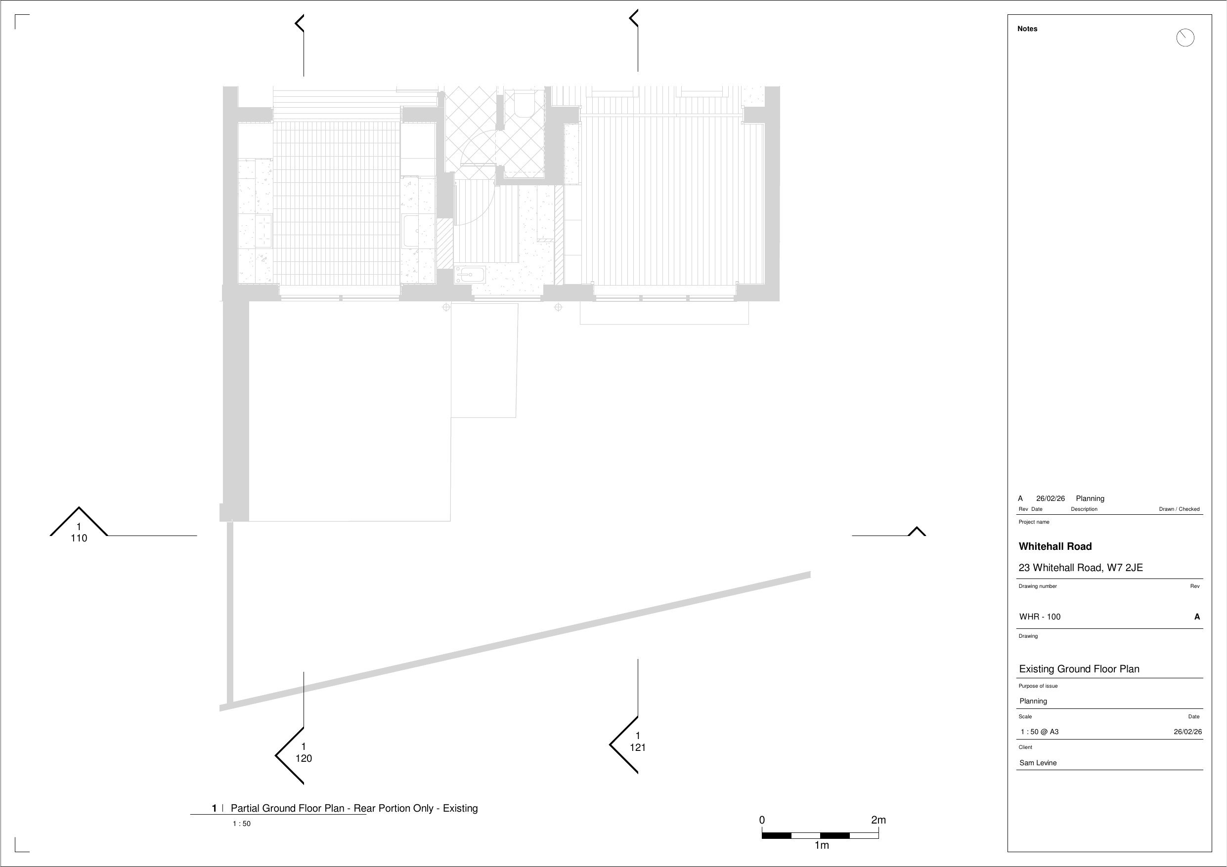
Draw - Exist Floor Plan
Archived · Original link
Draw - Exist Elevation (Rear)
Archived · Original link
Draw - Exist Section
Archived · Original link
Draw - Exist Section
Archived · Original link
Draw - Prop Elevation (Rear)
Archived · Original link
Draw - Prop Elevation (Rear)
Archived · Original link
Draw - Prop Section
Archived · Original link
Draw - Prop Section
Archived · Original link

Have your say

Your comment matters. Councils must consider every representation that raises material planning considerations.

Write a comment