← London Borough of Ealing

Status

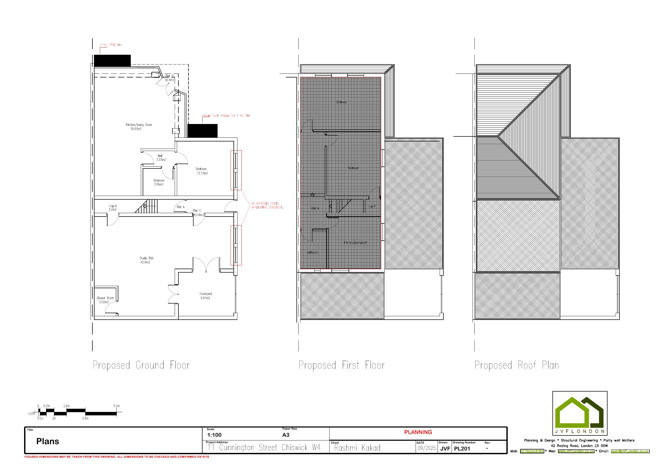
Pending Consideration Change of use
Received
Last month
New homes
2

Full proposal

Change of use from commercial unit (Use Class E) to two self-contained flats (Use Class C3) (Class MA, 56 day Prior Approval Process)

Documents

Application Form - Without Personal Data
Archived · Original link
Draw - Exist Site/Block Plan
Archived · Original link
Site Notice
Archived · Original link
Planning Statement
Archived · Original link

Have your say

Your comment matters. Councils must consider every representation that raises material planning considerations.

Write a comment