← London Borough of Ealing

Status

Pending Consideration House extension
Received
Last month
New homes
0

Full proposal

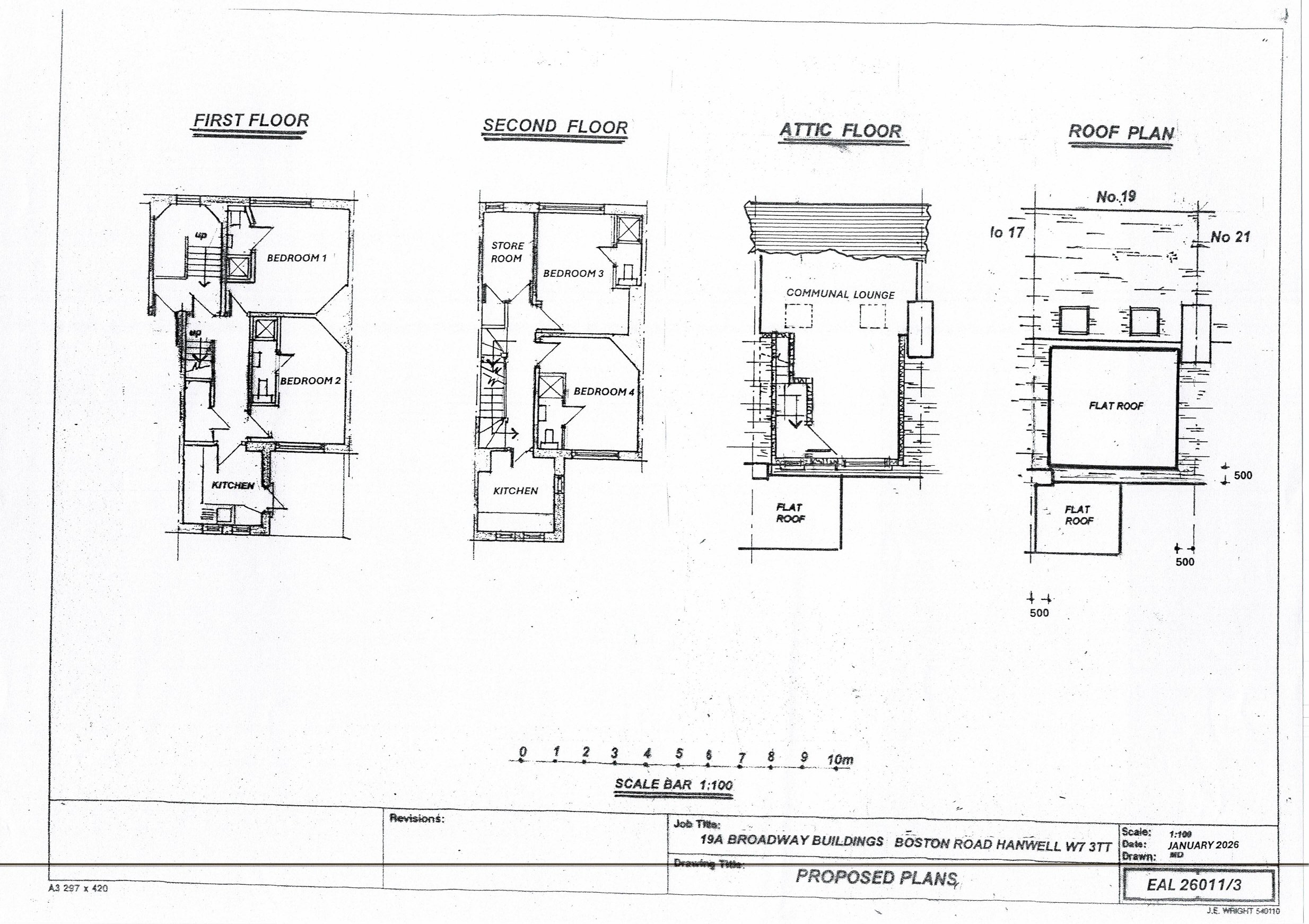
Conversion of loft space to form habitable communal lounge for HMO; rear roof extension; installation of two rooflights to front roofslope;

Documents

Site Notice
Archived · Original link
Application Form - Without Personal Data
Archived · Original link
DESIGN AND ACCESS STATEMENT FEB 26
Design and Access Statement
Not yet archived · Original link
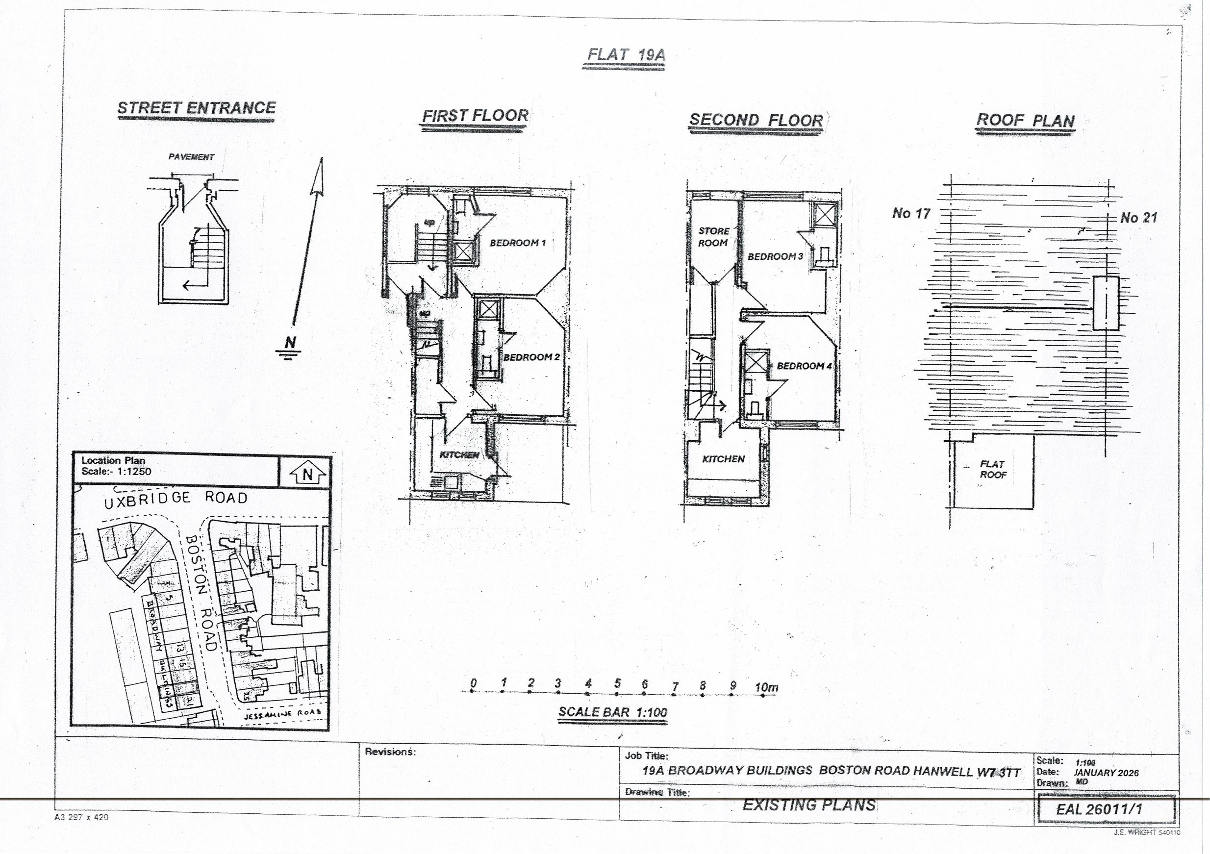
Draw - Exist Floor Plan
Archived · Original link
Drawing
Archived · Original link
FIRE SAFETY REASONABLE EXCEPTION STATEMENT 24 FEB 26
Supporting Documentation
Not yet archived · Original link
Draw - Exist Site/Block Plan
Archived · Original link
Draw - Location Plan
Archived · Original link
Site Notice
Archived · Original link
Draw - Prop Floor Plan
Archived · Original link

Have your say

Your comment matters. Councils must consider every representation that raises material planning considerations.

Write a comment