← London Borough of Ealing

Status

Pending Consideration New housing
Received
Last month
New homes
1

Full proposal

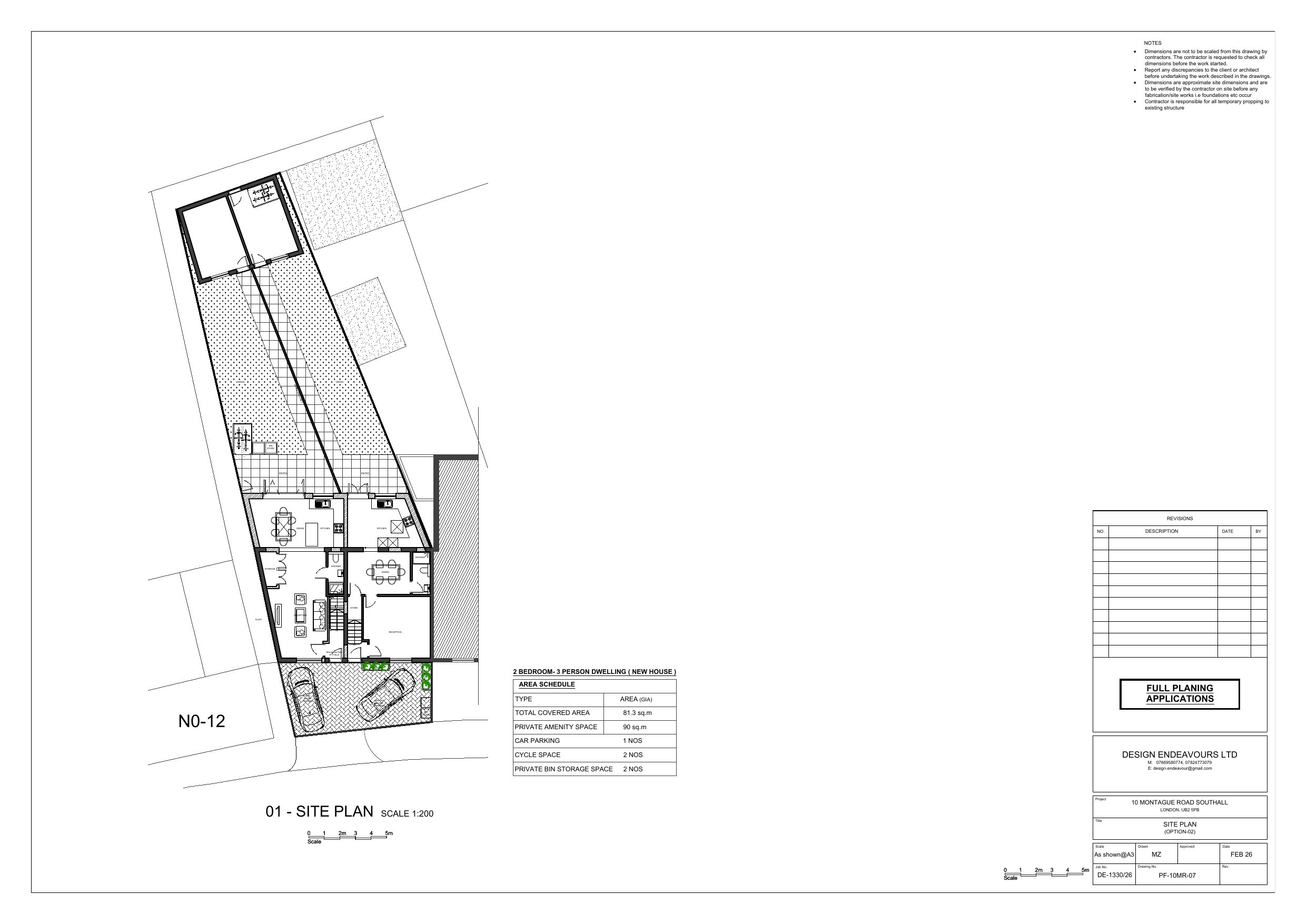
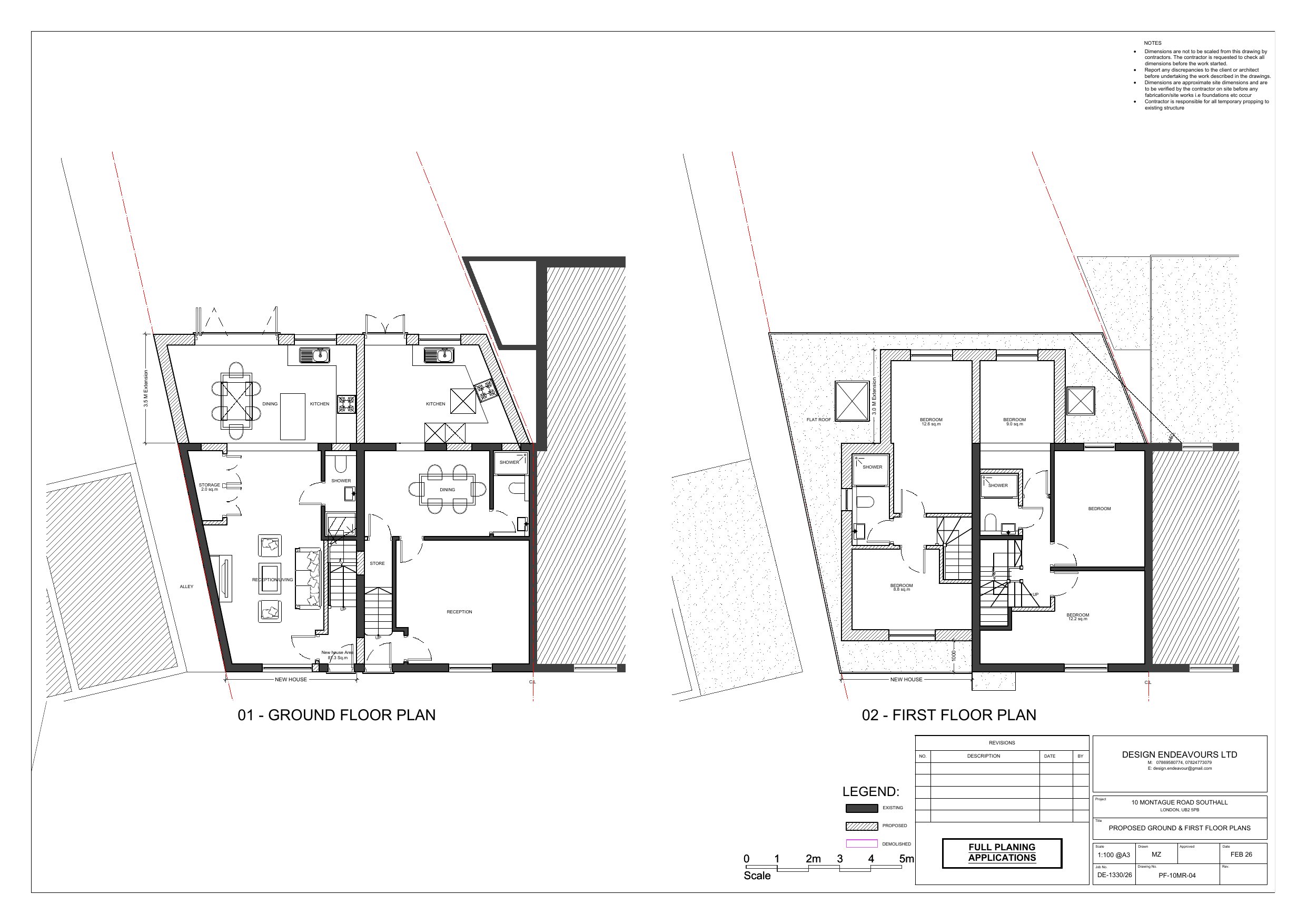
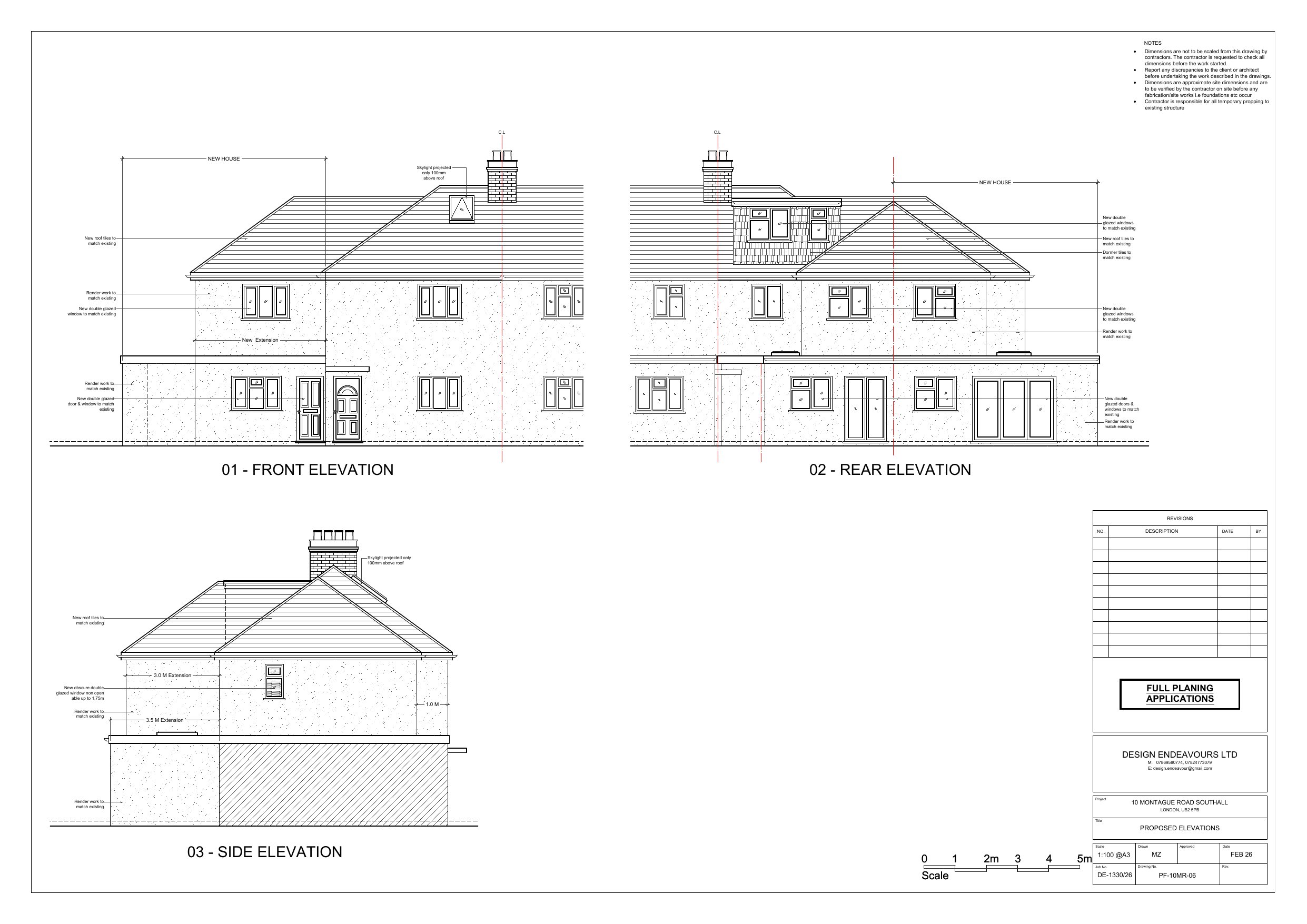
Sub-division of site for construction of an additional 2 bedroom dwellinghouse; first floor side extension, part two. part single storey rear/side extension; rear roof extension and front rooflight to existing dwelling; associated parking, refuse store and amenity space

Documents

Application Form - Without Personal Data
Archived · Original link
Site Notice
Archived · Original link
Site Notice
Archived · Original link
Draw - Location Plan
Archived · Original link
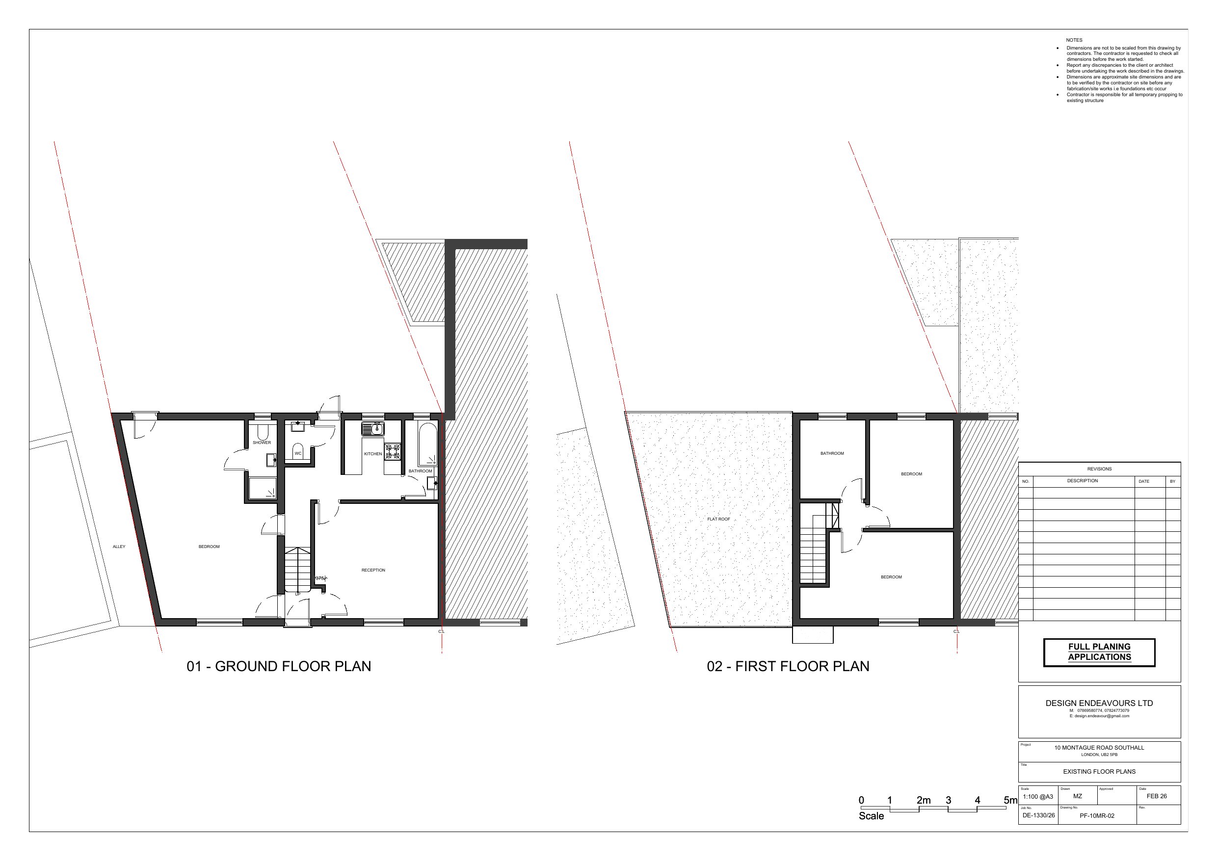
Draw - Exist Floor Plan
Archived · Original link
Draw - Exist Elevations
Archived · Original link
Draw - Prop Floor Plan
Archived · Original link
Draw - Prop Roof Plan
Archived · Original link
Draw - Prop Elevations
Archived · Original link
Draw - Exist Site/Block Plan
Archived · Original link

Have your say

Your comment matters. Councils must consider every representation that raises material planning considerations.

Write a comment