← London Borough of Ealing

Status

Pending Consideration House extension
Received
Last month
New homes
0

Full proposal

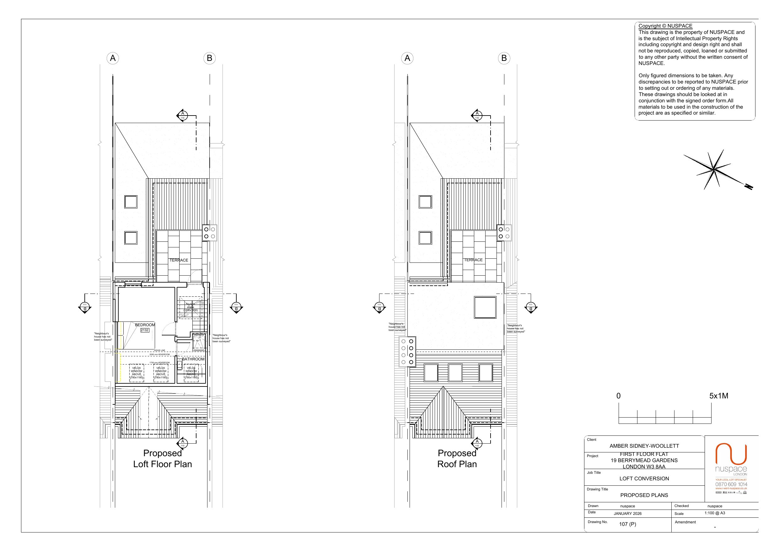
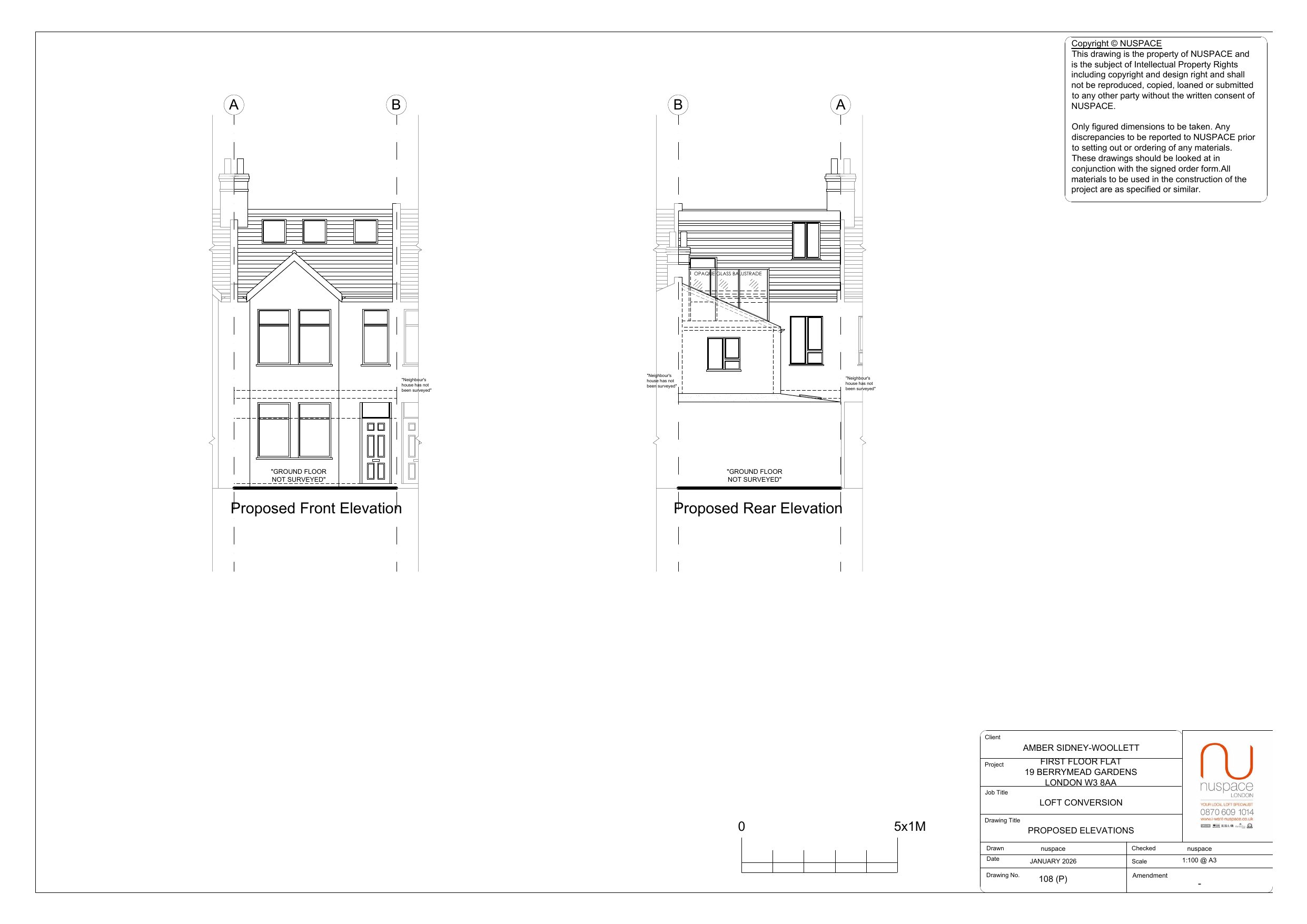
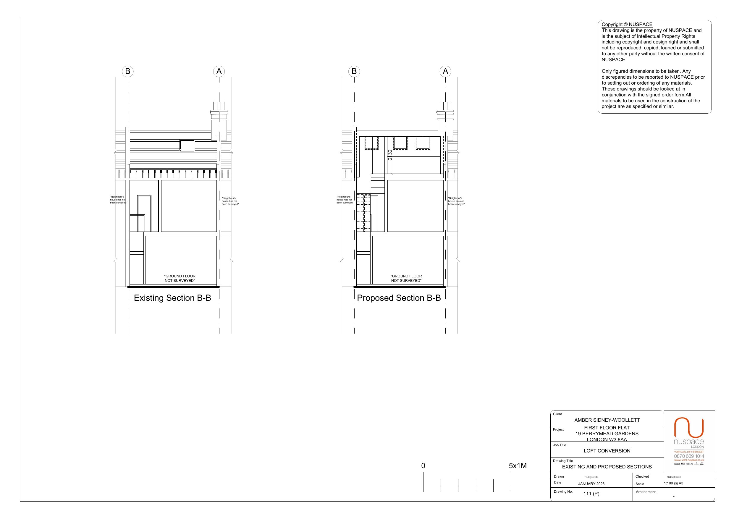
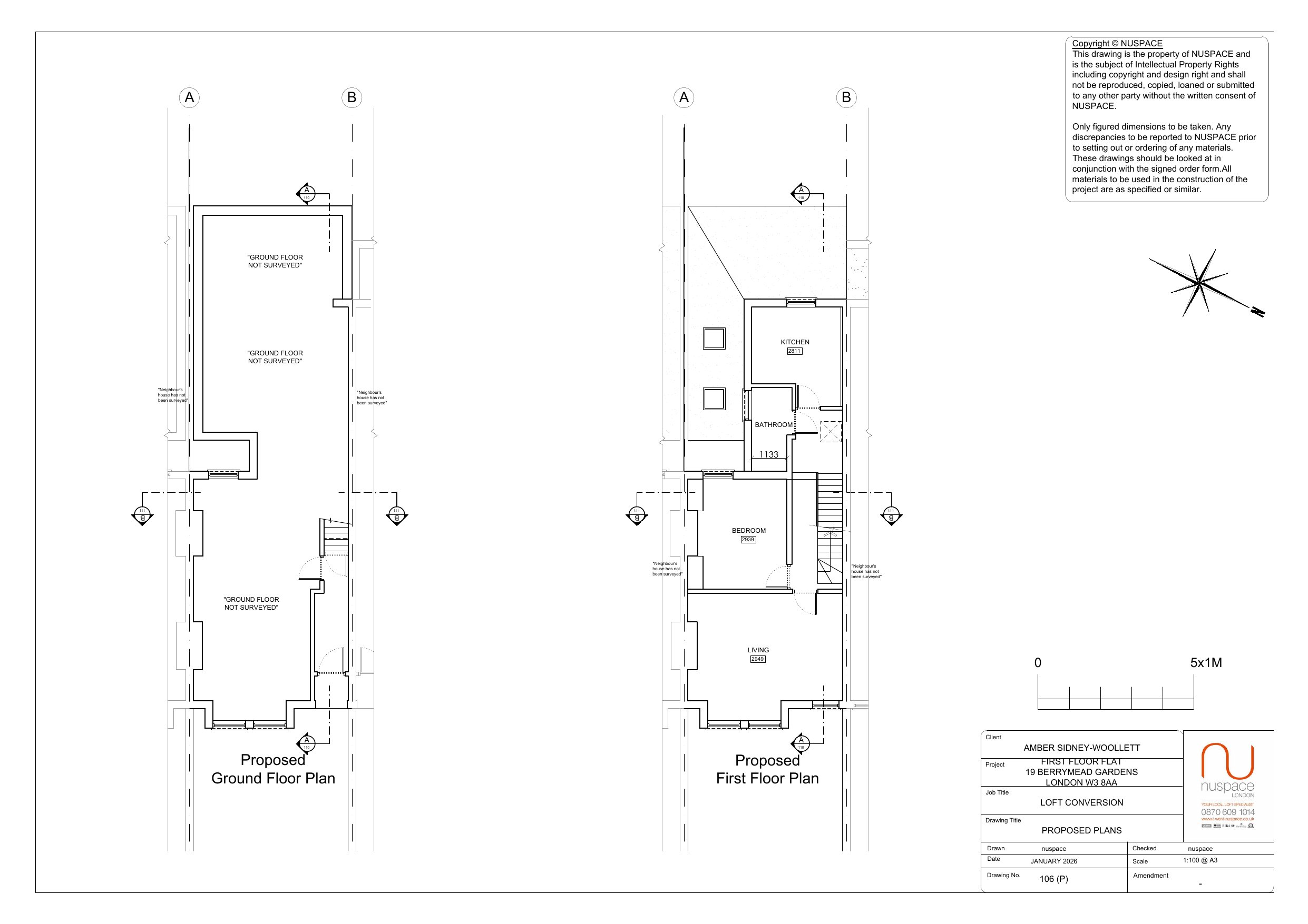
Rear roof extension to main roofslope (involving conversion of roofspace to habitable use); roof extension to rear outrigger incorporating roof terrace; and installation of three rooflights to front roofslope (maisonette)

Documents

Application Form - Without Personal Data
Archived · Original link
Draw - Exist Site / Block Plan
Archived · Original link
Draw - Exist Site / Block Plan
Archived · Original link
Draw - Exist Section
Archived · Original link
Draw - Exist Section
Archived · Original link
Draw - Exist Elevations
Archived · Original link
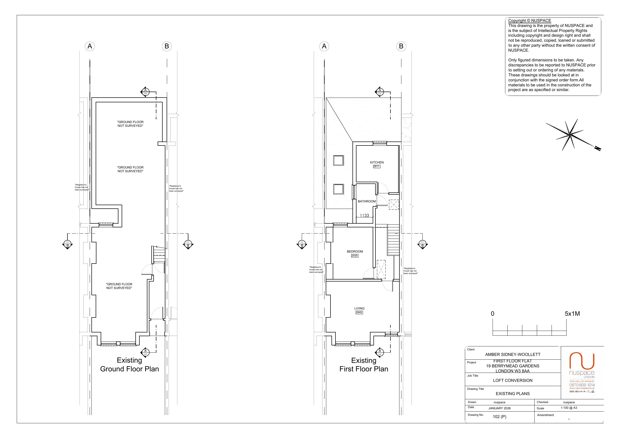
Draw - Exist Floor Plan
Archived · Original link
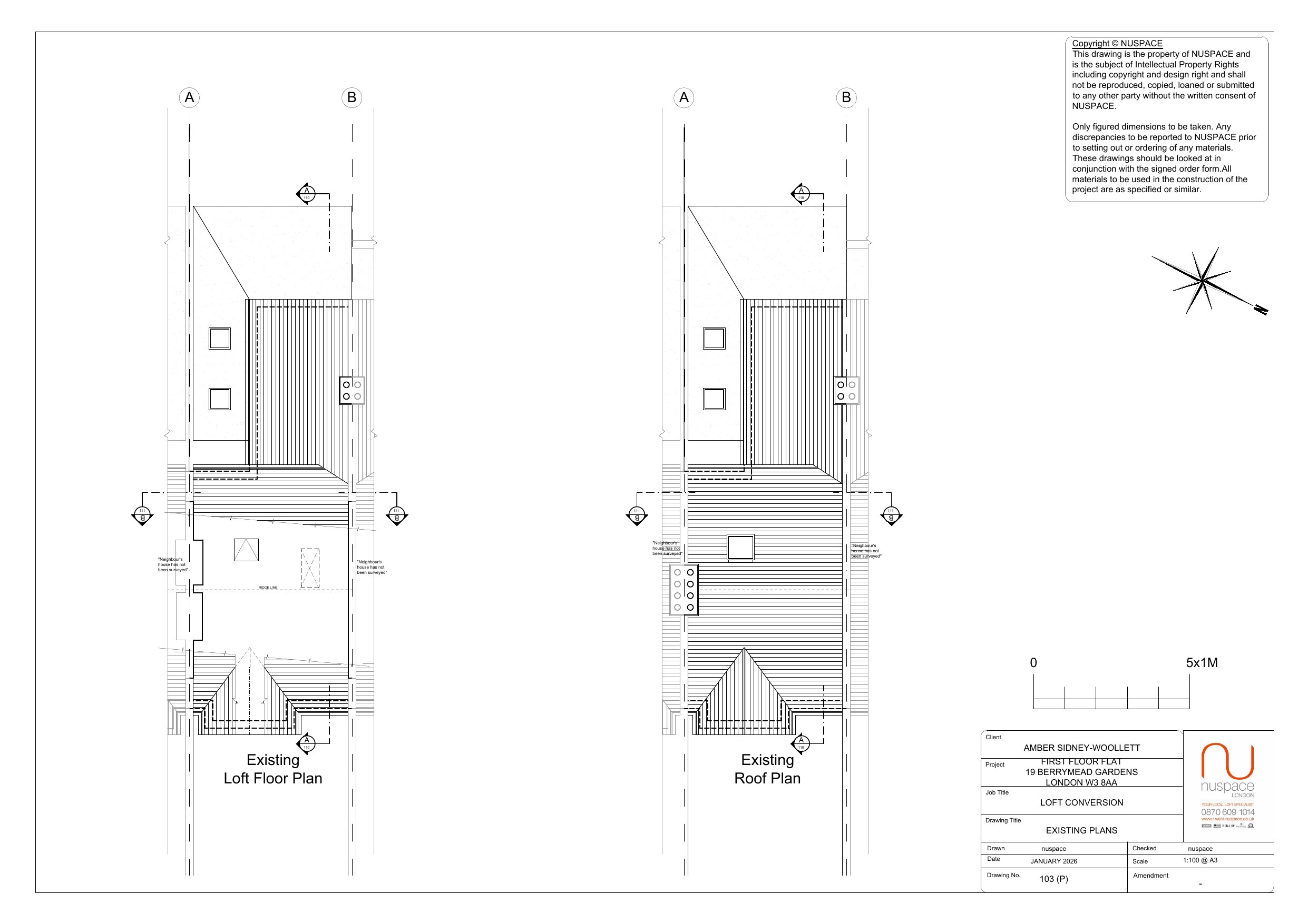
Draw - Exist Roof Plan
Archived · Original link
Draw - Exist Elevation (Side)
Archived · Original link
Draw - Location Plan
Archived · Original link
Site Notice
Archived · Original link
Draw - Prop Elevations
Archived · Original link
Draw - Prop Floor Plan
Archived · Original link
Draw - Prop Roof Plan
Archived · Original link
Draw - Prop Elevation (Side)
Archived · Original link

Have your say

Your comment matters. Councils must consider every representation that raises material planning considerations.

Write a comment