← London Borough of Ealing

Status

Pending Consideration Change of use
Received
Last month
New homes
1

Full proposal

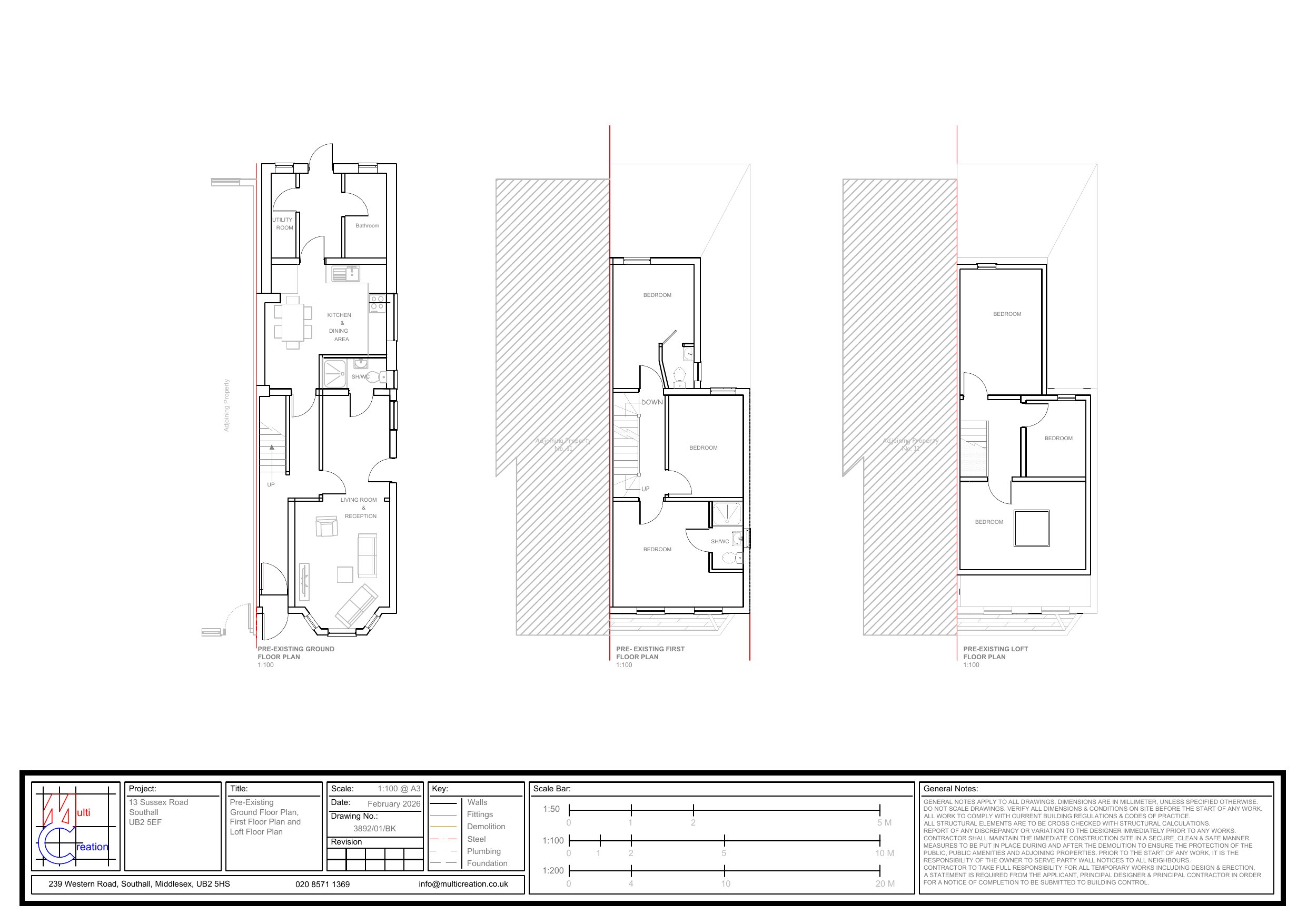
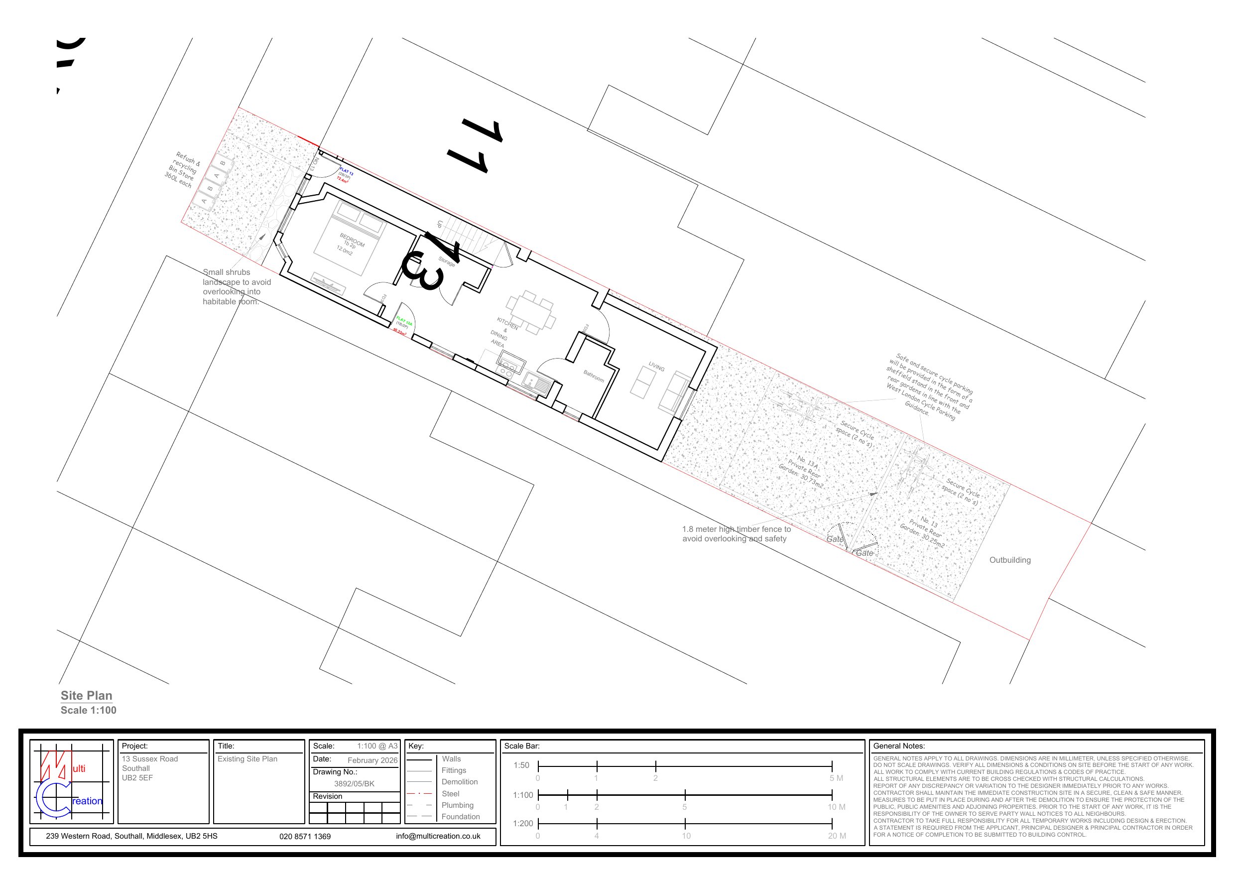
Conversion of a single dwellinghouse into two self-contained flats; front porch extension; and alterations to front, rear, and side elevations, including changes to fenestration (windows and doors) (Retrospective application)

Documents

Application Form - Without Personal Data
Archived · Original link
Drawing
Archived · Original link
Draw - Location Plan
Archived · Original link
Site Notice
Archived · Original link
Planning Statement
Archived · Original link
Drawing
Archived · Original link

Have your say

Your comment matters. Councils must consider every representation that raises material planning considerations.

Write a comment