← London Borough of Ealing

Status

Pending Consideration New housing
Received
29 days ago
New homes
1

Full proposal

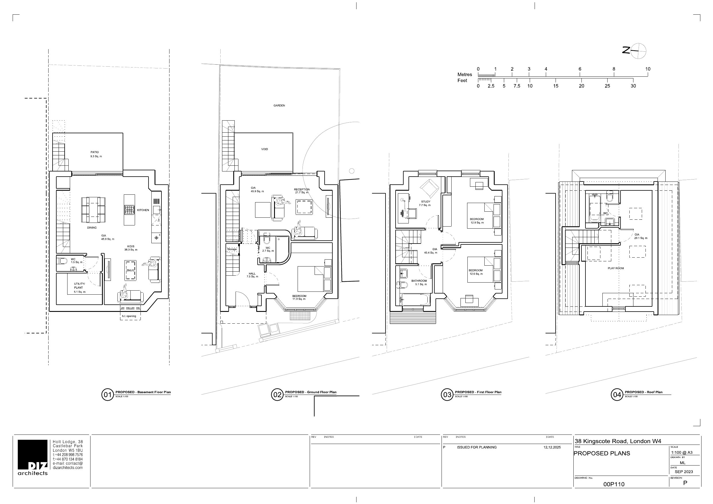
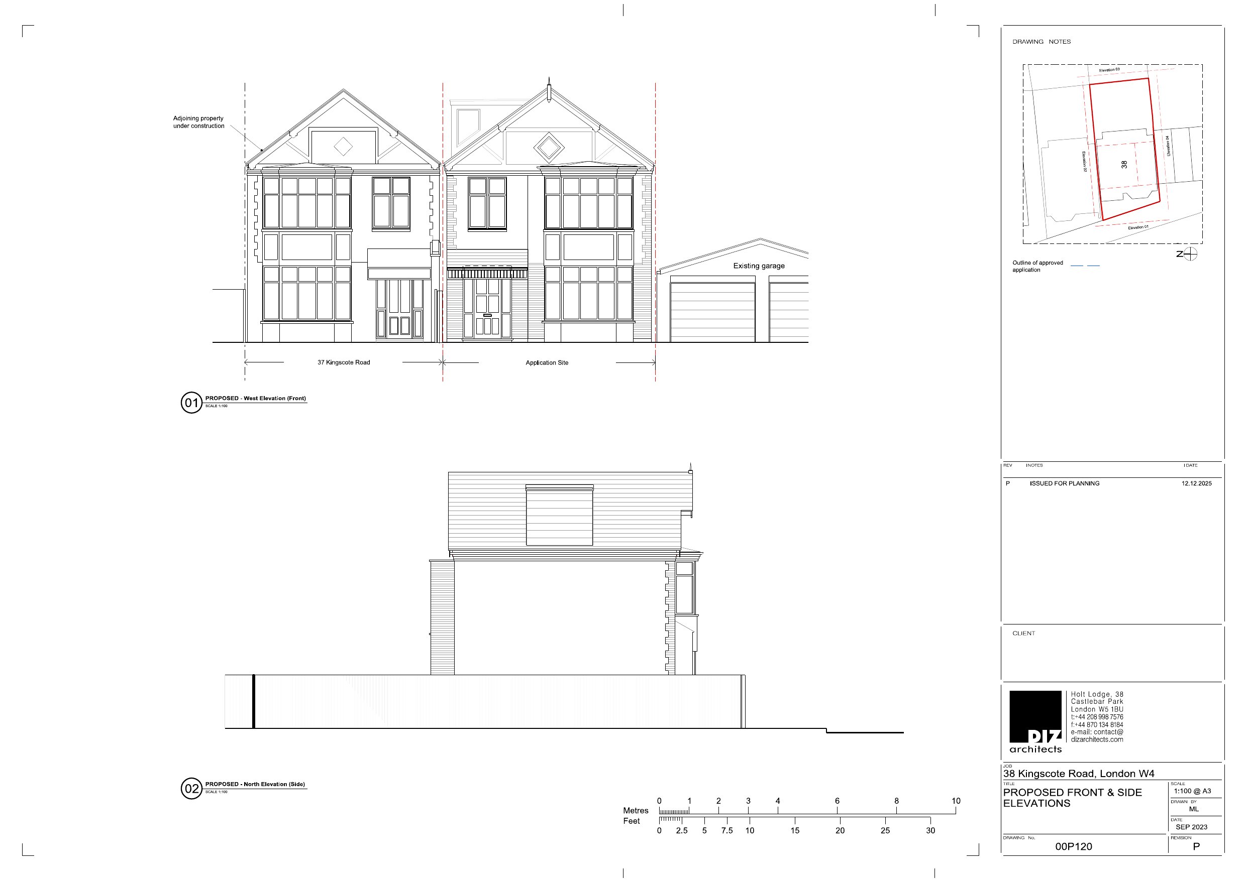
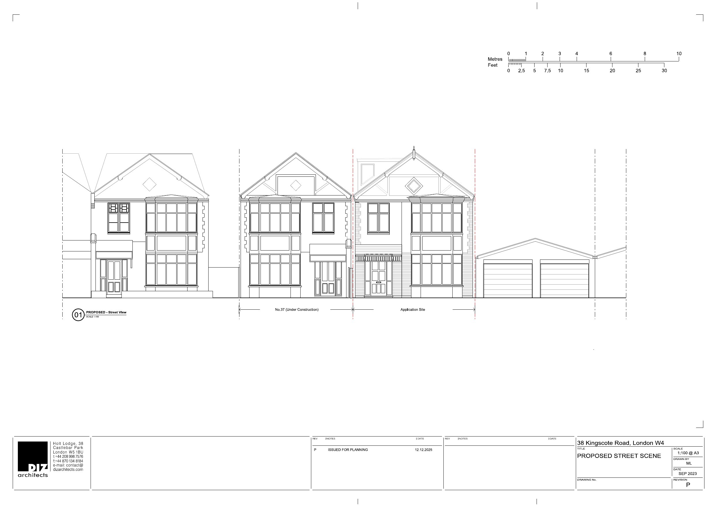
Construction of a two-storey dwellinghouse with basement and associated landscaping (following demolition of existing garage).

Documents

Site Notice
Archived · Original link
Application Form - Without Personal Data
Archived · Original link
Draw - Exist Site/Block Plan
Archived · Original link
Biodiversity Report
Archived · Original link
Daylight Assessment
Archived · Original link
Supporting Documentation
Archived · Original link
Draw - Exist Site/Block Plan
Archived · Original link
Flood Risk Assessment
Archived · Original link
Draw - Location Plan
Archived · Original link
Design and Access Statement
Archived · Original link
Site Notice
Archived · Original link
Design and Access Statement
Archived · Original link
Design and Access Statement
Archived · Original link
Draw - Exist Site/Block Plan
Archived · Original link
Drawing
Archived · Original link
Drawing
Archived · Original link
Drawing
Archived · Original link
Supporting Documentation
Archived · Original link

Have your say

Your comment matters. Councils must consider every representation that raises material planning considerations.

Write a comment