← East Cambridgeshire District Council
24/01350/FUL
East Cambridgeshire District Council
Status
Permitted
New housing
Received
30 Dec 2024
New homes
5
Summary
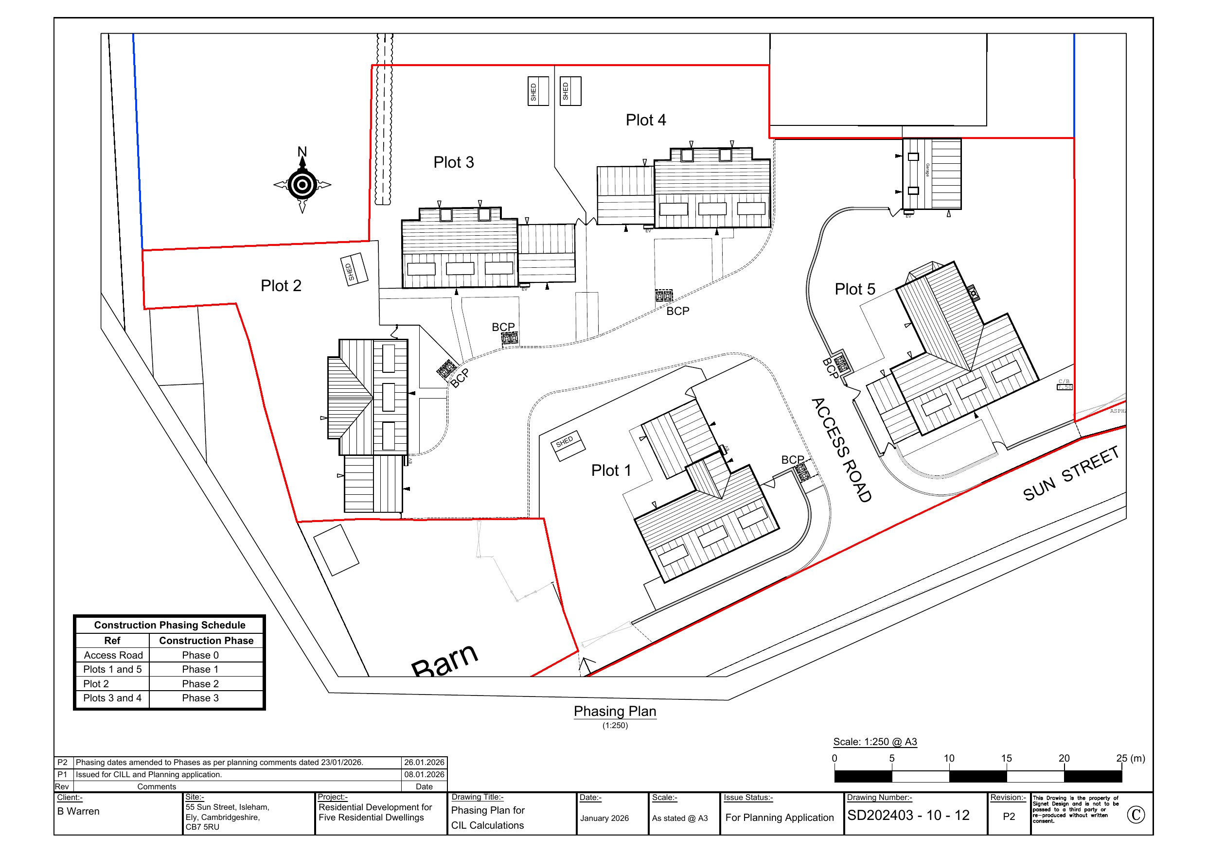
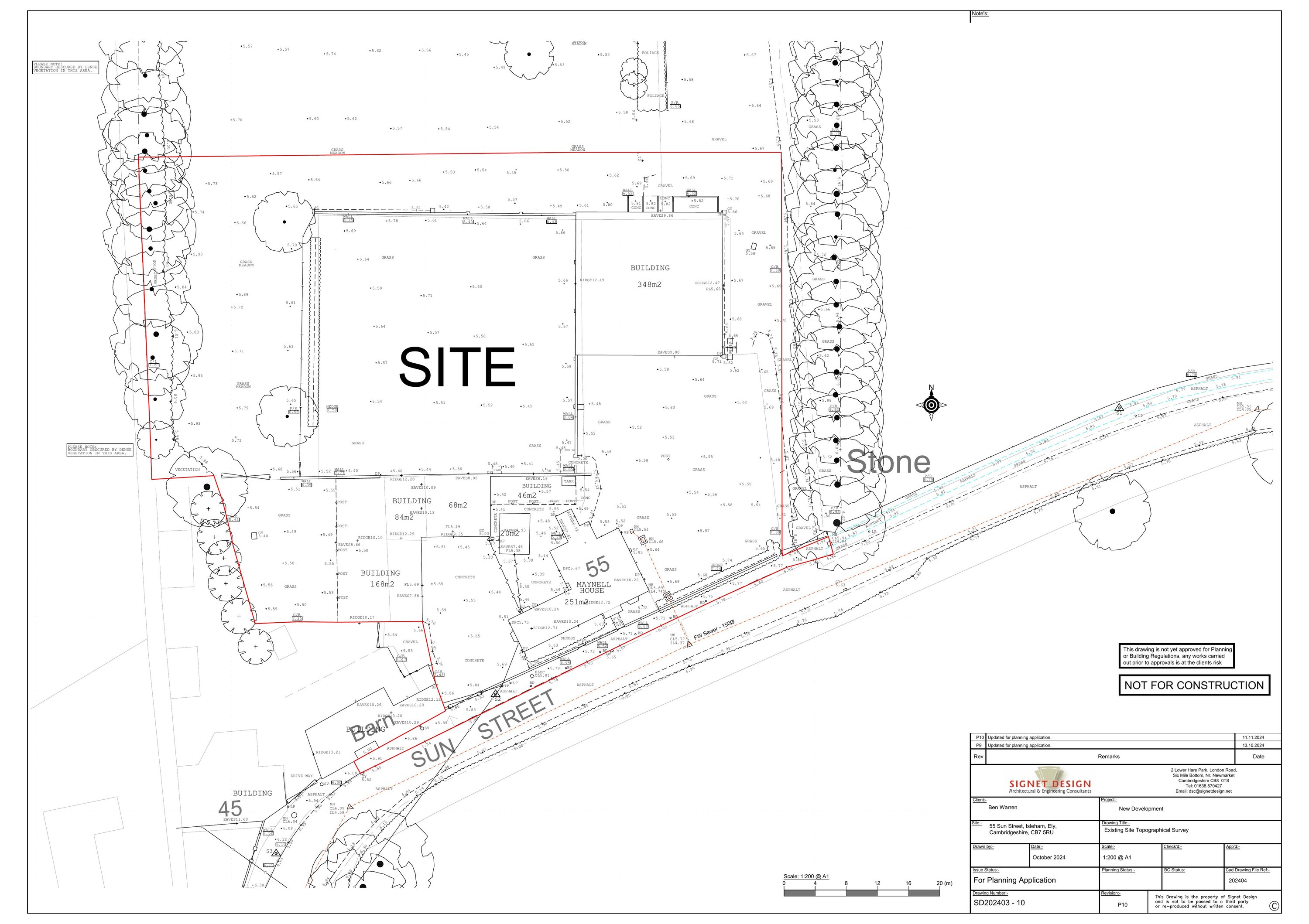
Construction of five new residential dwellings with access and associated works.
Full proposal
5 New residential dwellings, access and associated works, including the demolition of existing buildings
Documents
DC Superseded Plans/Information
Archived
· Original link
DC Superseded Plans/Information
Archived
· Original link
DC Superseded Plans/Information
Archived
· Original link
DC Approved Plans/Information
Archived
· Original link
DC Approved Plans/Information
Archived
· Original link
DC Superseded Plans/Information
Archived
· Original link
DC Approved Plans/Information
Archived
· Original link
DC Approved Plans/Information
Archived
· Original link
Refuse and Fire Tender Vehicle Tracking
DC Superseded Plans/Information
Not yet archived
· Original link
DC Superseded Plans/Information
Archived
· Original link
DC Approved Plans/Information
Archived
· Original link
Have your say
Your comment matters. Councils must consider every representation that raises material planning considerations.