← East Cambridgeshire District Council

Status

Permitted House extension
Received
17 Jan 2025
New homes
0

Full proposal

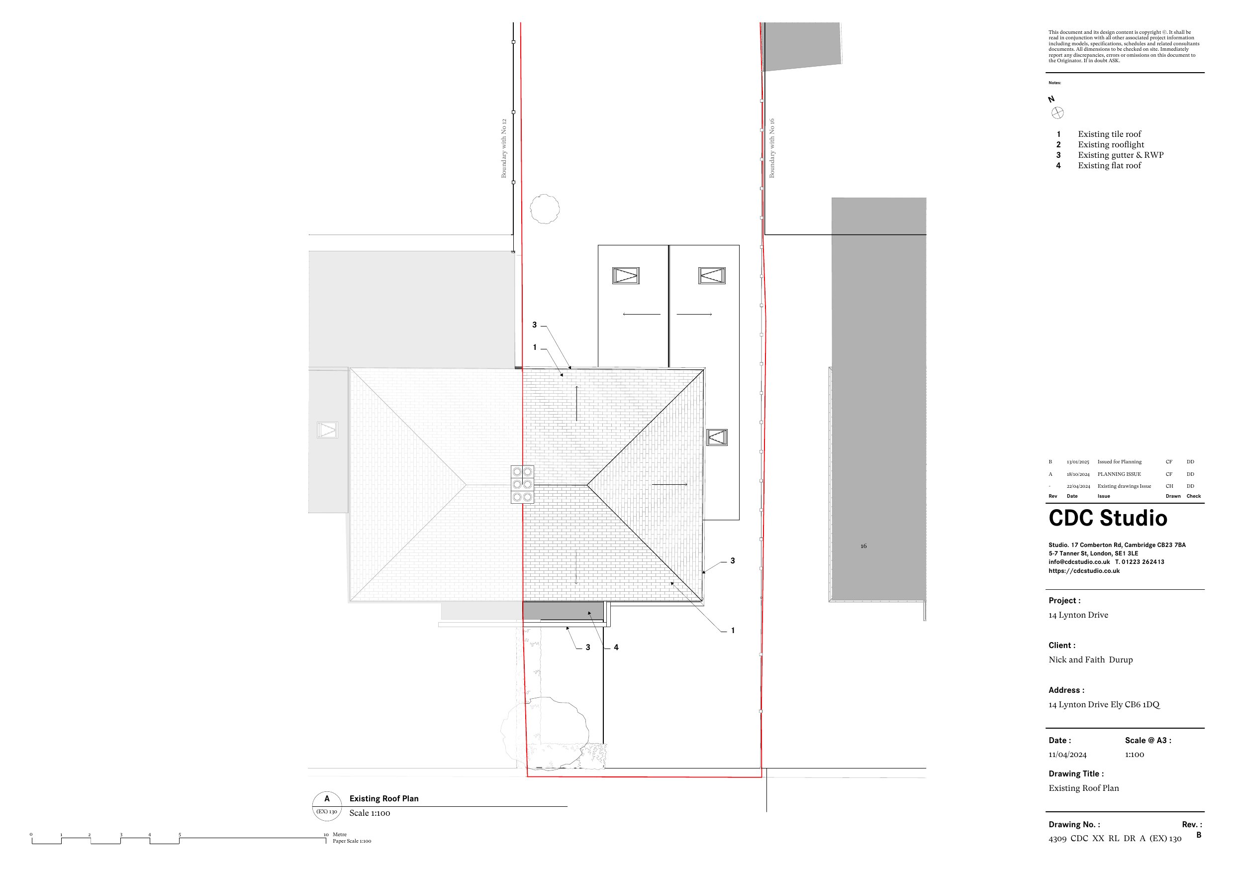
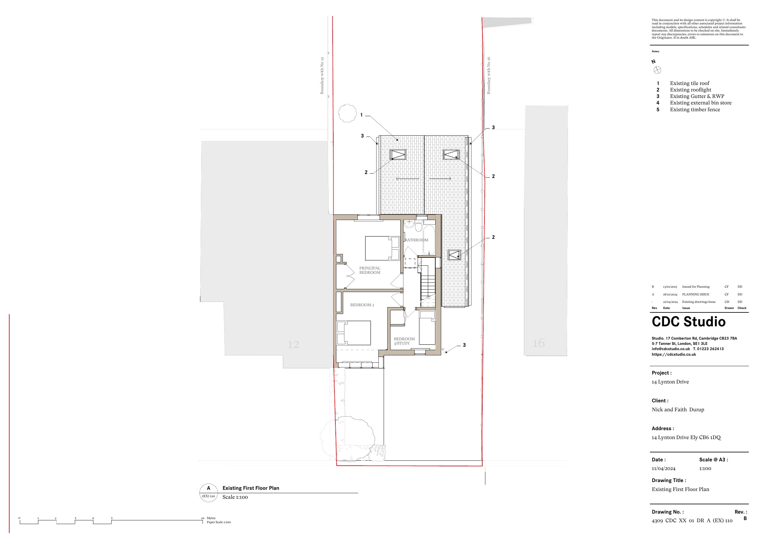
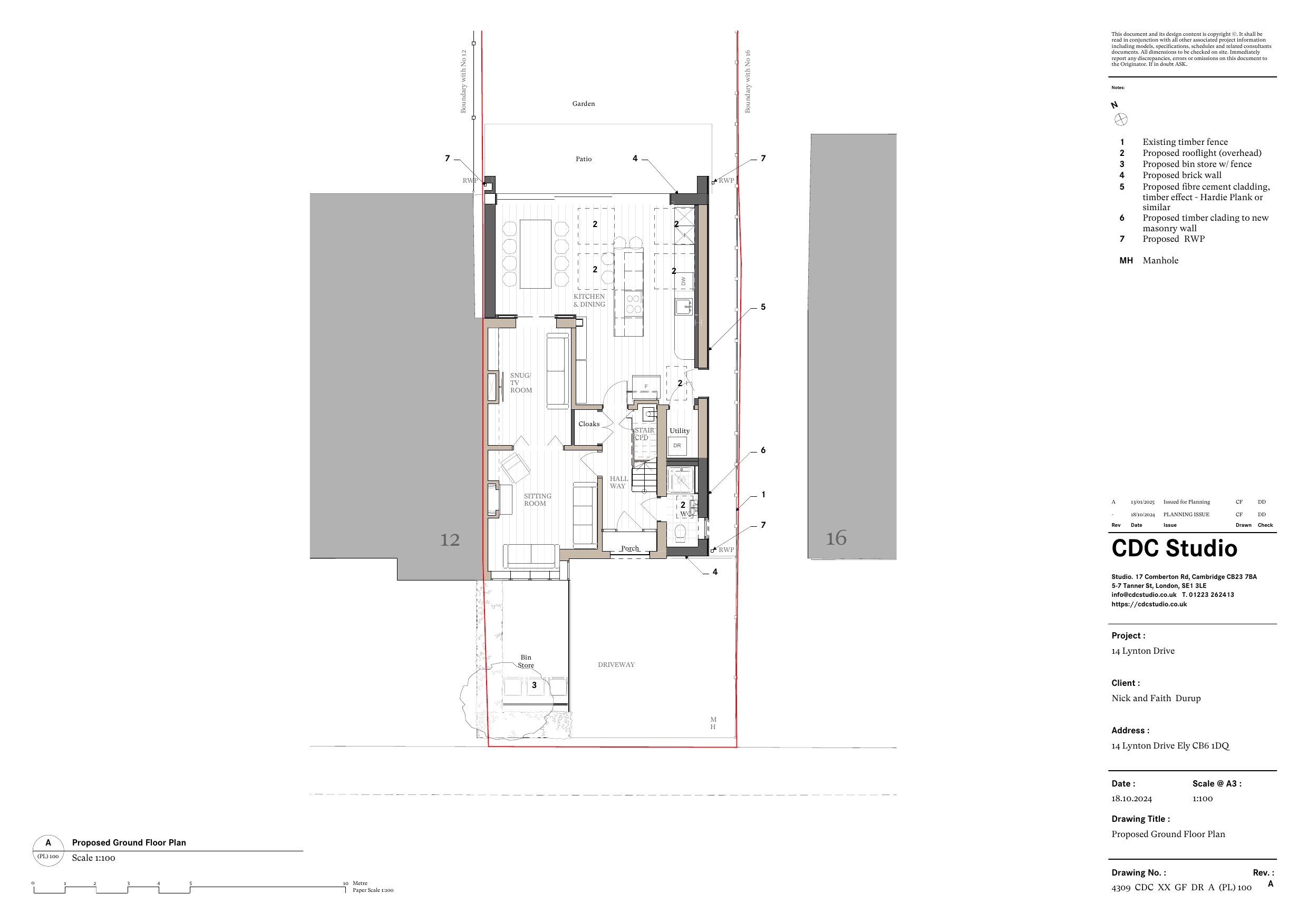
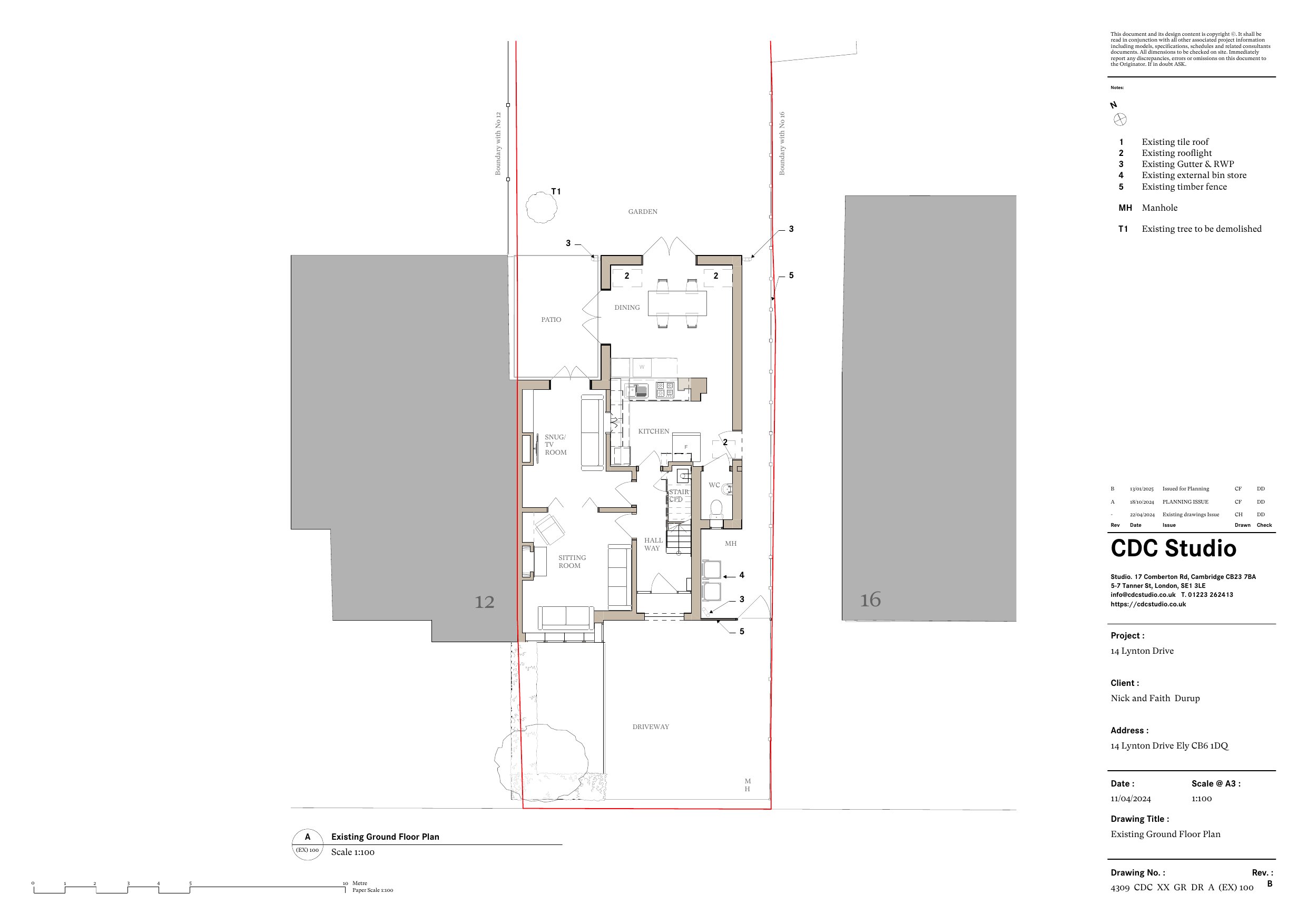
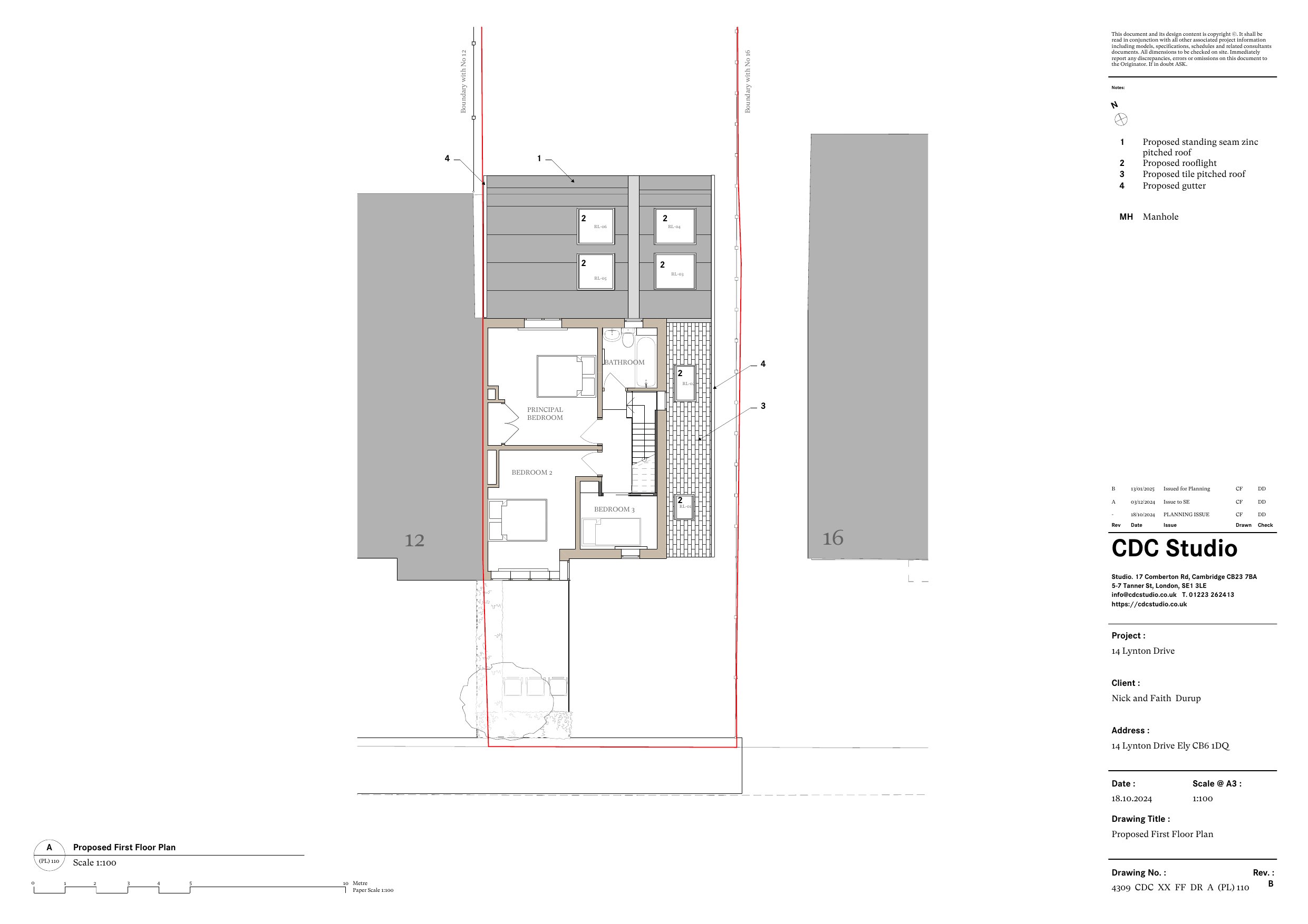
Demolition of existing rear ground floor extension, new rear ground floor extension, additional side ground floor extension and external ground floor cladding

Documents

DC Application Form
Archived · Original link
DC Consultations
Archived · Original link
DC Consultations
Archived · Original link
DC Decision
Archived · Original link
DC Plan
Archived · Original link
DC Approved Plans/Information
Archived · Original link
DC Plan
Archived · Original link
DC Approved Plans/Information
Archived · Original link
DC Neighbour Letter
Archived · Original link
DC Report
Archived · Original link
DC Approved Plans/Information
Archived · Original link
DC Approved Plans/Information
Archived · Original link
DC Approved Plans/Information
Archived · Original link
Proposed Location Plan
DC Plan
Not yet archived · Original link
DC Approved Plans/Information
Archived · Original link
DC Approved Plans/Information
Archived · Original link
DC Approved Plans/Information
Archived · Original link
DC Plan
Archived · Original link

Have your say

Your comment matters. Councils must consider every representation that raises material planning considerations.

Write a comment