← East Cambridgeshire District Council

Status

Permitted New housing
Received
06 May 2025
New homes
1

Full proposal

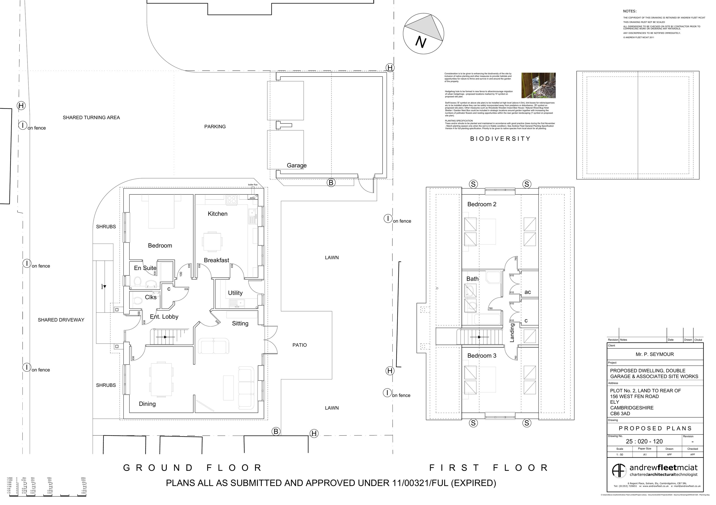
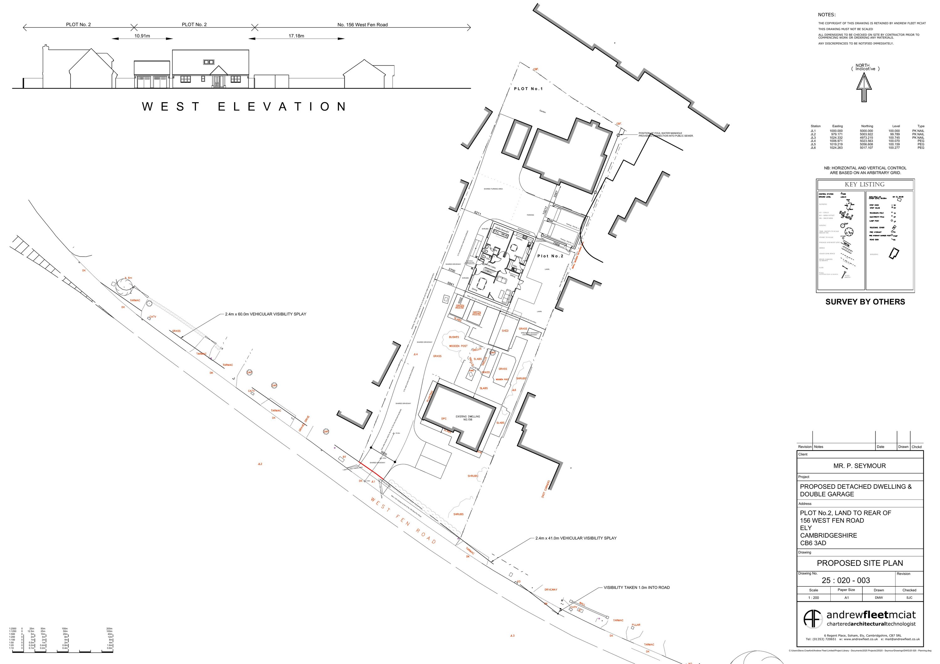
Detached three-bedrooom dwelling with detached double garage

Documents

Additional Information
DC Approved Plans/Information
Not yet archived · Original link
Additional Information
DC Approved Plans/Information
Not yet archived · Original link
Additional Information
DC Approved Plans/Information
Not yet archived · Original link
Additional Information
DC Approved Plans/Information
Not yet archived · Original link
Agreement to pre-commencement conditions and EOT
DC Correspondence
Not yet archived · Original link
Application form
DC Application Form
Not yet archived · Original link
BNG Baseline Map
DC Approved Plans/Information
Not yet archived · Original link
BNG Proposals Map
DC Approved Plans/Information
Not yet archived · Original link
Consultee Response
DC Consultations
Not yet archived · Original link
Consultee Response
DC Consultations
Not yet archived · Original link
Consultee Response
DC Consultations
Not yet archived · Original link
Decision - Permitted FUL
DC Decision
Not yet archived · Original link
DC Approved Plans/Information
Archived · Original link
Location plan
DC Approved Plans/Information
Not yet archived · Original link
Officer Report
DC Report
Not yet archived · Original link
DC Approved Plans/Information
Archived · Original link
DC Approved Plans/Information
Archived · Original link
DC Approved Plans/Information
Archived · Original link

Have your say

Your comment matters. Councils must consider every representation that raises material planning considerations.

Write a comment