← East Cambridgeshire District Council

Status

Permitted Other
Received
06 May 2025
New homes
0

Full proposal

Alterations to existing dwelling

Documents

Application form
DC Application Form
Not yet archived · Original link
Consultee Response
DC Consultations
Not yet archived · Original link
Decision - Permitted FUL
DC Decision
Not yet archived · Original link
Design & Access Statement / Plan
DC Report
Not yet archived · Original link
Existing Block Plan
DC Plan
Not yet archived · Original link
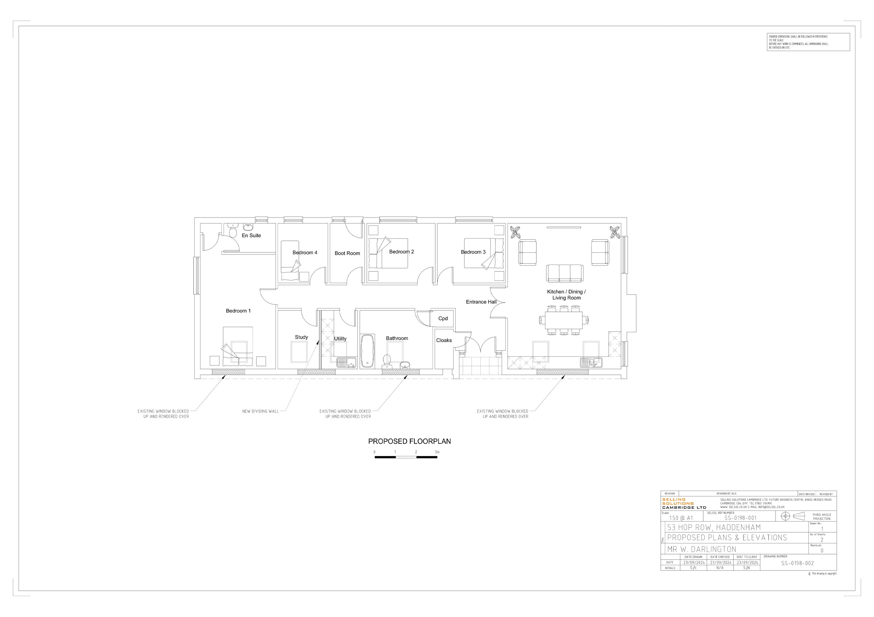
Existing Plans and Elevations
DC Plan
Not yet archived · Original link
Existing Plans and Elevations
DC Plan
Not yet archived · Original link
DC Plan
Archived · Original link
Location plan
DC Approved Plans/Information
Not yet archived · Original link
Officer Report
DC Report
Not yet archived · Original link
Proposed Block Plan
DC Approved Plans/Information
Not yet archived · Original link
DC Approved Plans/Information
Archived · Original link
DC Approved Plans/Information
Archived · Original link
DC Approved Plans/Information
Archived · Original link

Have your say

Your comment matters. Councils must consider every representation that raises material planning considerations.

Write a comment