← Back to East Cambridgeshire District Council
Application
25/01334/FUL
East Cambridgeshire District Council · IDOX
Status
Pending Consideration
Received
09 Dec 2025
New dwellings
n/a
What you can do
Take Action
Make your voice heard. Authorities need to hear from people who support new homes.
Full Proposal
Erection of 1no. detached dwelling with new vehicular access
Detail pages
- View live detail on council site
- No archived detail page available.
Documents
Application form
DC Application Form
Not downloaded
· Council link
Biodiversity/Ecological Assessment
DC Report
Not downloaded
· Council link
Biodiversity/Ecological Assessment
DC Report
Not downloaded
· Council link
Biodiversity/Ecological Assessment
DC Report
Not downloaded
· Council link
Consultee List
DC Consultations
Not downloaded
· Council link
Consultee Response
DC Consultations
Not downloaded
· Council link
Consultee Response
DC Consultations
Not downloaded
· Council link
Consultee Response
DC Consultations
Not downloaded
· Council link
Consultee Response
DC Consultations
Not downloaded
· Council link
Design & Access Statement / Plan
DC Report
Not downloaded
· Council link
EIA Screening Opinion
DC Correspondence
Not downloaded
· Council link
Existing block/roof plan, location plan
DC Plan
Not downloaded
· Council link
Existing site sections/street scene
DC Plan
Not downloaded
· Council link
Heritage Statement
DC Report
Not downloaded
· Council link
Neighbour List
DC Neighbour Letter
Not downloaded
· Council link
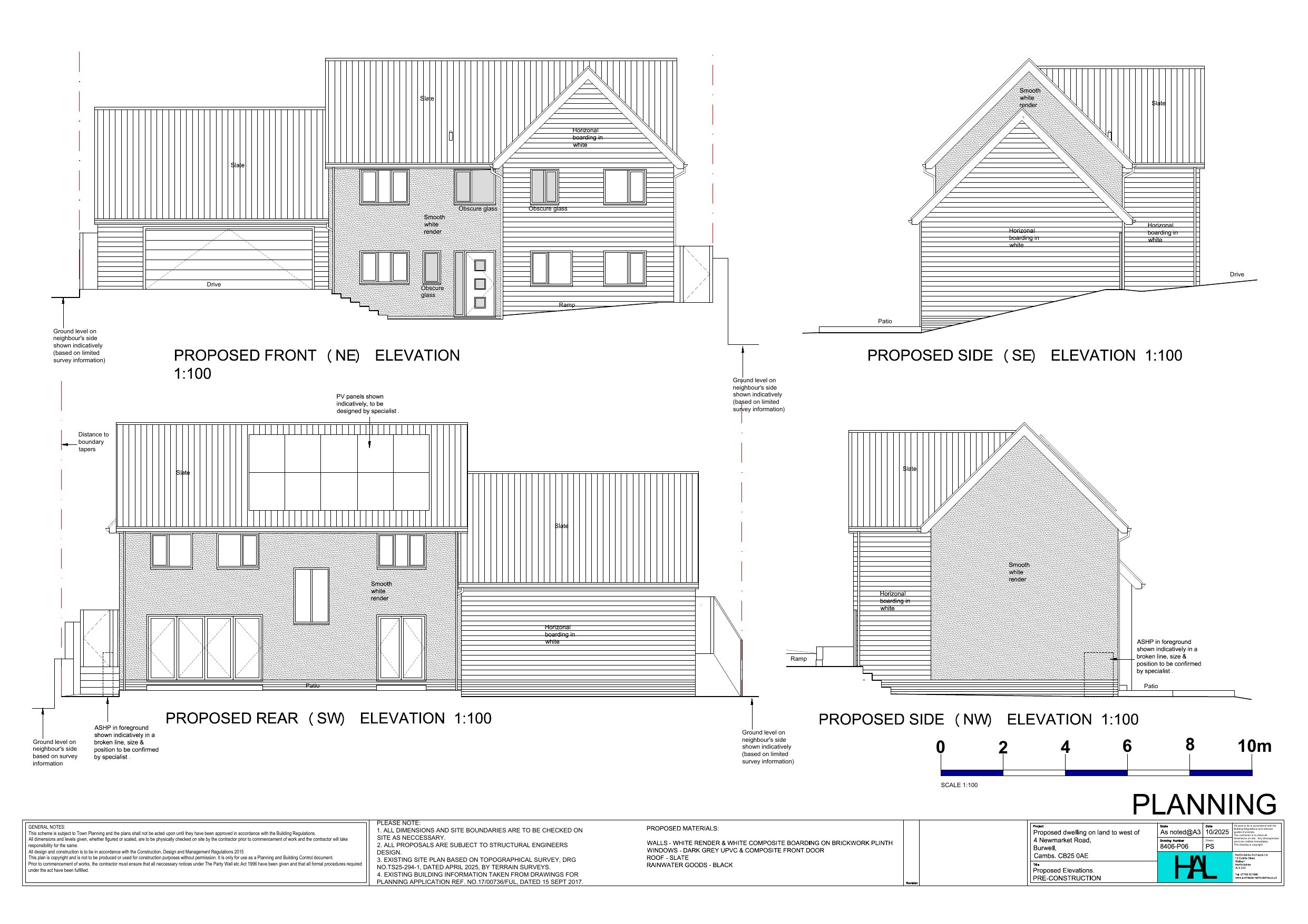
Proposed elevations
DC Plan
Not downloaded
· Council link
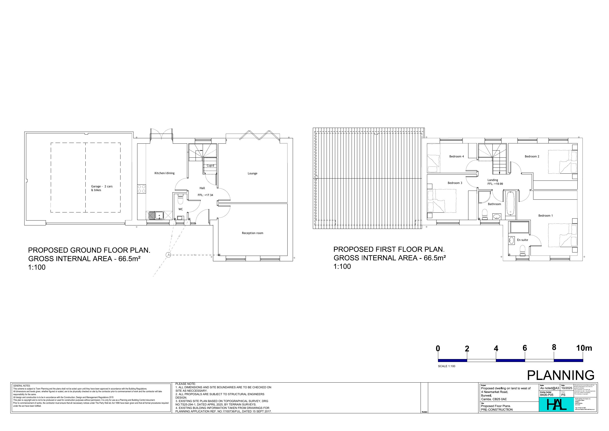
Proposed first floor
DC Plan
Not downloaded
· Council link
Proposed site sections/street scene
DC Plan
Not downloaded
· Council link
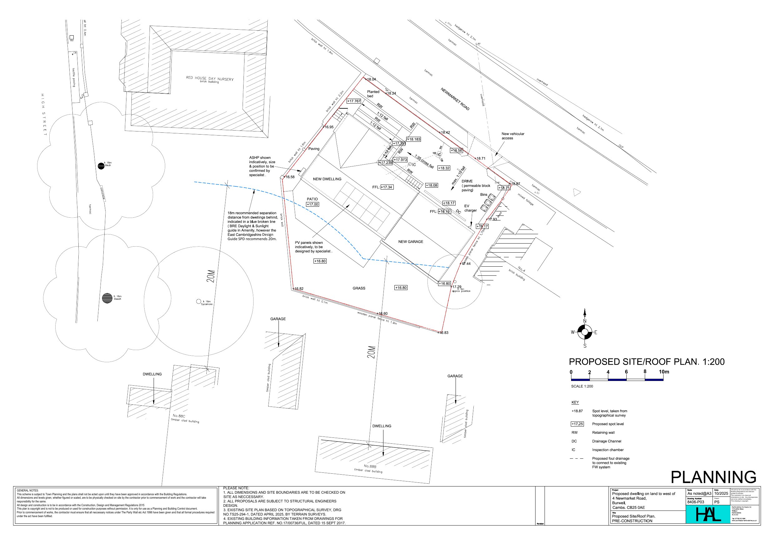
Proposed site/roof plan
DC Plan
Not downloaded
· Council link
Topographical Survey
DC Plan
Not downloaded
· Council link
Vehicular access & visibility splay
DC Plan
Not downloaded
· Council link