← East Cambridgeshire District Council

Status

Pending Consideration Change of use
Received
22 Dec 2025
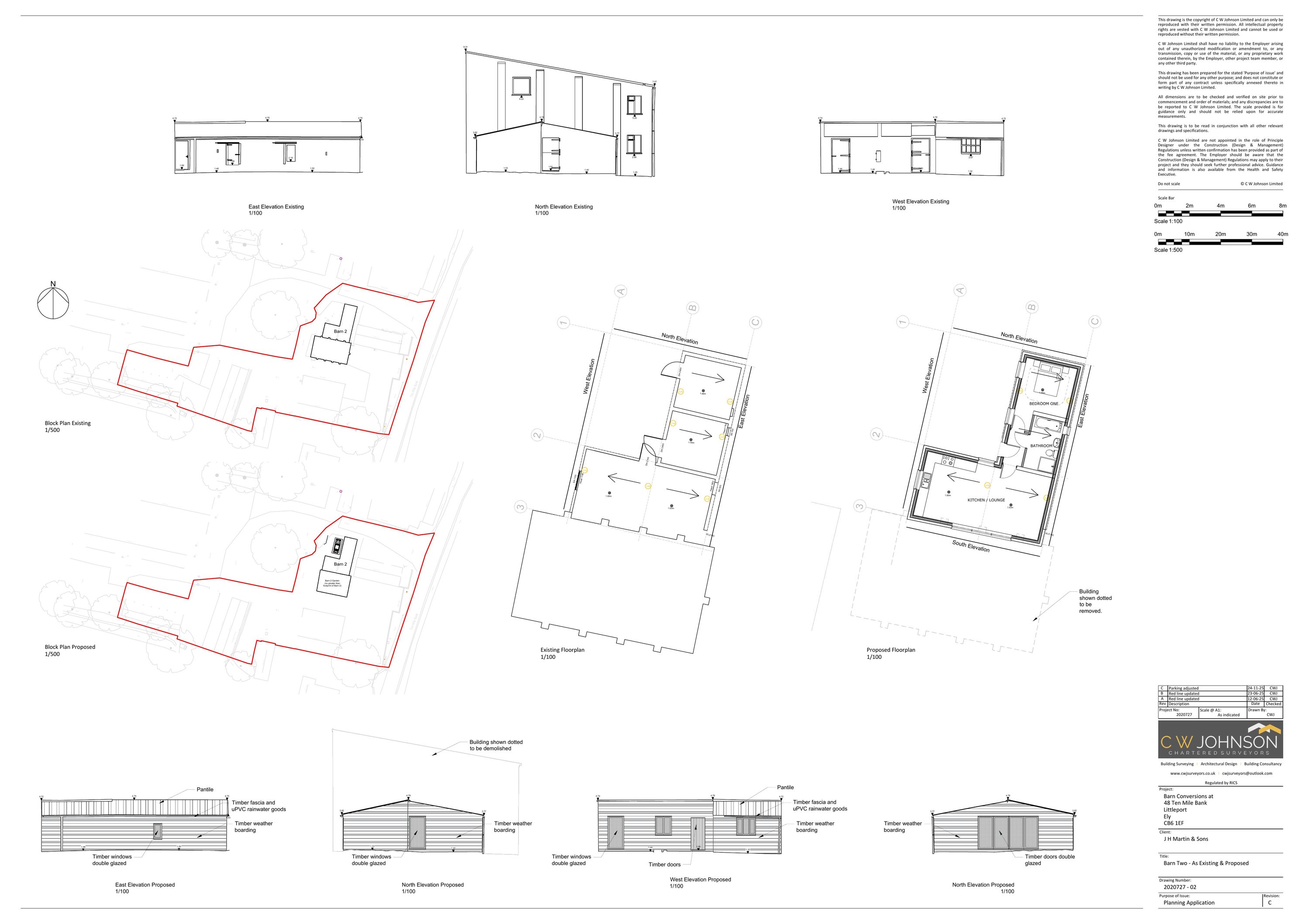
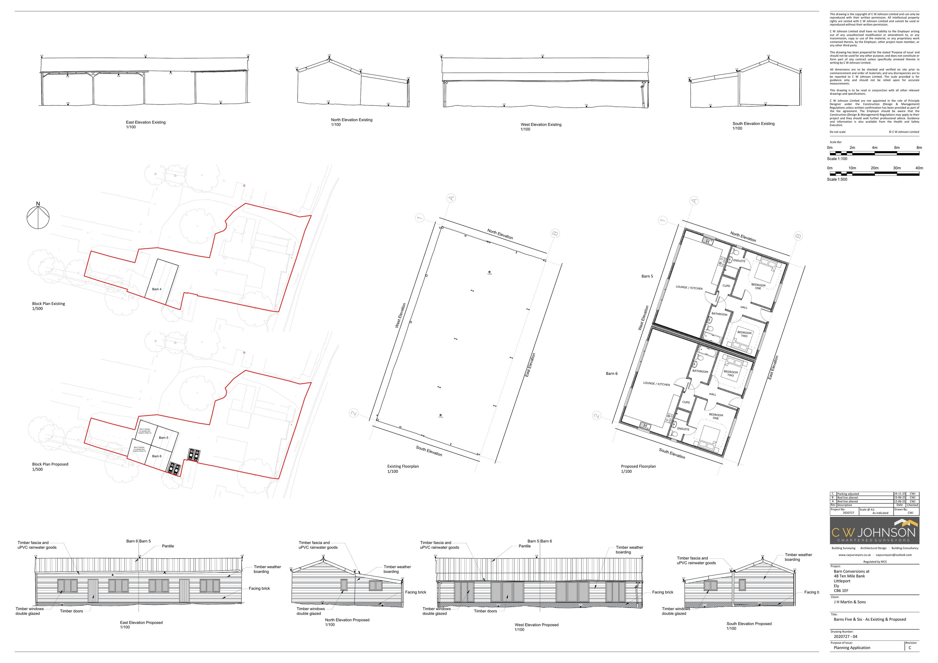
New homes
7

Full proposal

Conversion of 5 agricultural buildings to 7 new homes and associated works

Documents

DC Correspondence
Archived · Original link
DC Correspondence
Archived · Original link
DC Correspondence
Archived · Original link
DC Correspondence
Archived · Original link
DC Correspondence
Archived · Original link
DC Report
Archived · Original link
DC Report
Archived · Original link
DC Report
Archived · Original link
DC Report
Archived · Original link
DC Report
Archived · Original link
DC Application Form
Archived · Original link
DC Consultations
Archived · Original link
DC Consultations
Archived · Original link
DC Consultations
Archived · Original link
DC Consultations
Archived · Original link
DC Consultations
Archived · Original link
DC Consultations
Archived · Original link
DC Correspondence
Archived · Original link
DC Neighbour Letter
Archived · Original link
DC Report
Archived · Original link

Have your say

Your comment matters. Councils must consider every representation that raises material planning considerations.

Write a comment