← East Cambridgeshire District Council

Status

Pending Consideration Agricultural
Received
12 Jan 2026
New homes
0

Full proposal

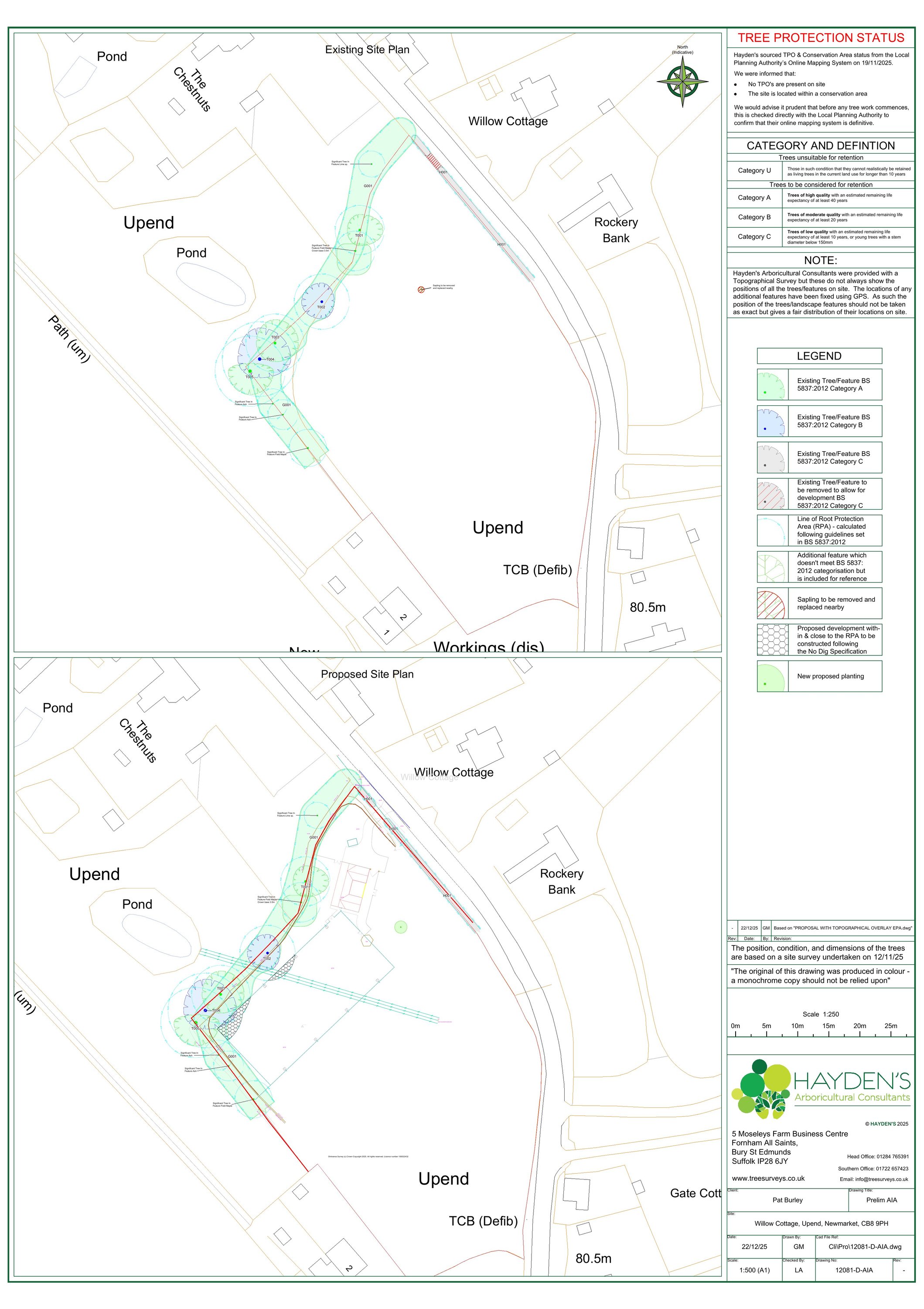
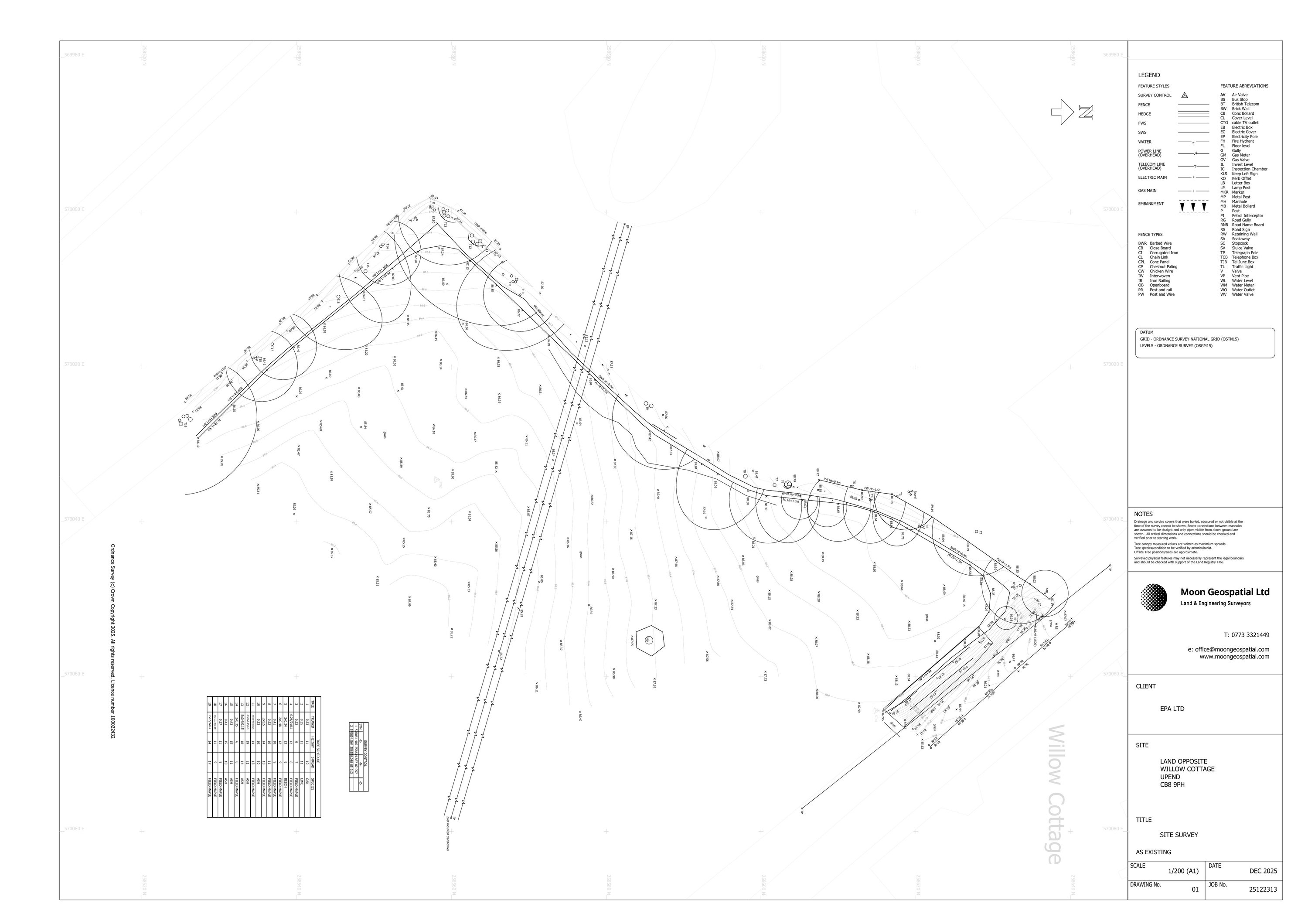
Erection of stables and associated stores and wash bay. Construction of a fenced outdoor arena with secure gated entrances and associated works. Installation of a surface water drainage grid, associated infrastructure and solar lighting. creation of new vehicular access with gate

Documents

DC Correspondence
Archived · Original link
DC Correspondence
Archived · Original link
DC Correspondence
Archived · Original link
DC Correspondence
Archived · Original link
DC Correspondence
Archived · Original link
DC Correspondence
Archived · Original link
DC Correspondence
Archived · Original link
DC Correspondence
Archived · Original link
DC Correspondence
Archived · Original link
DC Correspondence
Archived · Original link
DC Report
Archived · Original link
DC Correspondence
Archived · Original link
DC Report
Archived · Original link
DC Report
Archived · Original link
Additional Information
DC Report
Not yet archived · Original link
Additional Information
DC Report
Not yet archived · Original link
DC Report
Archived · Original link
DC Report
Archived · Original link
DC Application Form
Archived · Original link
DC Consultations
Archived · Original link
DC Consultations
Archived · Original link
Consultee Response
DC Consultations
Not yet archived · Original link
Consultee Comment
Archived · Original link
DC Consultations
Archived · Original link
DC Consultations
Archived · Original link
Consultee Response
DC Consultations
Not yet archived · Original link
DC Consultations
Archived · Original link
DC Plan
Archived · Original link
DC Contributor
Archived · Original link
DC Contributor
Archived · Original link
DC Contributor
Archived · Original link
DC Contributor
Archived · Original link
DC Consultations
Archived · Original link
DC Contributor
Archived · Original link
DC Contributor
Archived · Original link
DC Contributor
Archived · Original link
DC Contributor
Archived · Original link
DC Neighbour Letter
Archived · Original link
DC Contributor
Archived · Original link
Neighbour Response
DC Contributor
Not yet archived · Original link
DC Contributor
Archived · Original link
DC Contributor
Archived · Original link
DC Contributor
Archived · Original link
DC Photo
Archived · Original link
DC Plan
Archived · Original link
DC Plan
Archived · Original link
DC Plan
Archived · Original link

Have your say

Your comment matters. Councils must consider every representation that raises material planning considerations.

Write a comment