← East Cambridgeshire District Council
26/00195/ERN
East Cambridgeshire District Council
Status
Pending Consideration
Change of use
Received
Last month
New homes
0
Full proposal
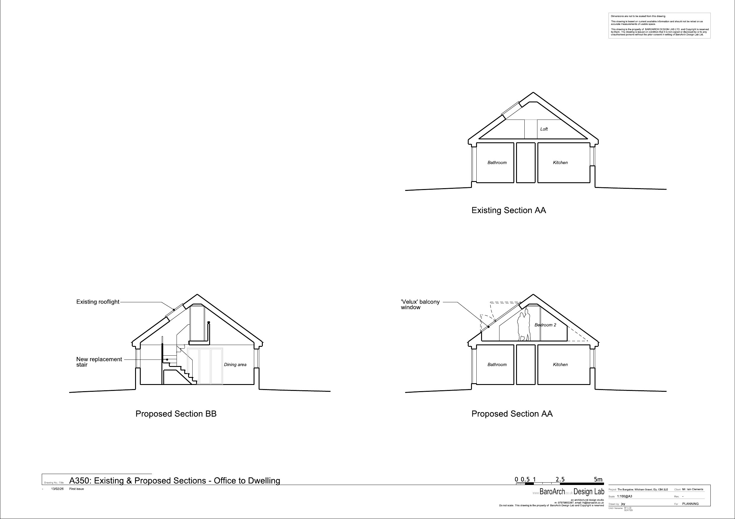
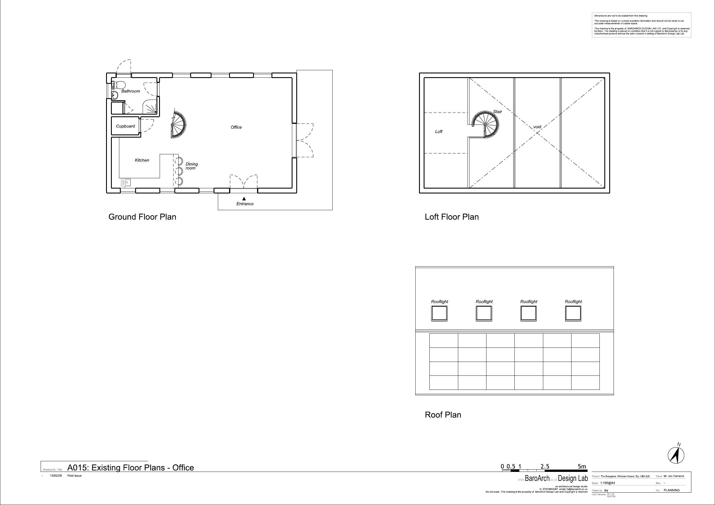
To convert a building for an office use to a dwelling, which requires to add new bigger roof windows and one side window
Documents
Have your say
Your comment matters. Councils must consider every representation that raises material planning considerations.